Öxnalækjarvegur 2
01-0103 · 810 Hveragerði



173 dagar á sölu
22.800.000 kr
410.072 kr/m²
BYR fasteignasala kynnir í einkasölu ÖXNALÆKJARVEGUR 2 geymsla nr. 3, HVERAGERÐI. Smellið hér fyrir staðsetningu.
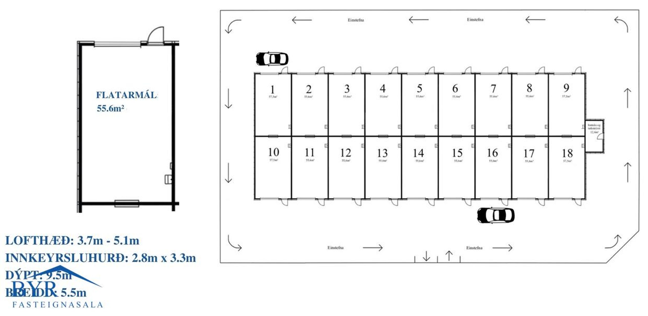
Öxnlækjarvegur 2 er geymsluhúsnæði á einni hæð sem er skipt niður í 18 geymslur. Húsið stendur á afgirtri lóð, rafmagnshlið er í aðkomu.
Birt stærð eignar er 55.6 m² samkvæmt skráningu HMS.
** Innkeyrsluhurð er 2,8 m á breidd og 3,3 m á hæð, með mótor.
** Gólfflötur er u.þ.b. 5.5 metrar á breidd og u.þ.b. 9.5 metrar á dýpt.
** Lofthæð er fremst u.þ.b. 3.7 metrar og innst u.þ.b. 5.0 metrar
** Tengill fyrir 3-fasa rafmagn
** Uppsett milliloft
** Vsk-kvöð
Nánari upplýsingar hjá BYR fasteignasölu | byr@byrfasteignasala.is | 471 2858 |
Áhvílandi vsk-kvöð er á eigninni og miðast söluverð eignar við yfirtöku á vsk-kvöð.
Ef kaupandi tekur EKKI yfir vsk-kvöð er kaupverð hennar kr. 25.870.000.
Frágangur utanhúss: Húsið eru uppbyggt með forsteyptum einingum. Útveggir eru klæddir með grárri láréttri báruklæðningu.
Þak er yleiningar þak, hvítt að innan og utan. Plan er malbikað. Engin skilgreind bílastæði eru á lóðinni.
Gönguhurð með gleri og gluggi fyrir ofan eru úr PVC plasti, hvítt að lit.
Innkeyrsluhurð er 2,8 m á breidd og 3,3 m á hæð, með mótor. Gólfflötur er u.þ.b. 5.5 metrar á breidd og u.þ.b. 9.5 metrar á dýpt.
Lofthæð er fremst u.þ.b. 3.7 metrar og innst u.þ.b. 5.0 metrar
Frágangur innanhúss: Gólf með gráu epoxylakki. Sér rafmagnsmælir og tengitafla í rýminu.
Lagnir eru utanáliggjandi. Þriggja fasa tengill. Ofn er í rýminu. Uppsett milliloft er í rýminu.
Inntök rafmagns eru í sameign/tæknirými og er sér mælir fyrir hvert geymslurými og einn mælir fyrir sameign sem er tæknirými og útiljós.
Hitaveita er í sameign og er mælir í tæknirými. Skolvaskur (plast) með blöndunartækjum, gólfniðurfall og aukastútur/tenging í gólfi fyrir salerni.
Loftræsting: Opnanlegur gluggi fyrir ofan gönguhurð og ferskloftsventli (innloft) fyrir ofan glugga. Einnig er útsogsvifta.
Brunavarnir: Steyptir veggir eru á milli notaeininga og uppfylla allar kröfur um brunavarnir.
Ekki er gert ráð fyrir brunakerfi í húsinu. Sjálflýsandi út merki við flóttaleið.
Lóðin Öxnalækjarvegur 2 er sameiginleg leigulóð í eigu Hveragerðisbæjar.
Girðing er á lóðamörkum og rafmagnshlið í aðkomu. Ekki er gert ráð fyrir sorphirðu á svæðinu.
Eignin er í útleigu.
Áhvílandi virðisaukaskattskvöð er á eigninni og miðast söluverð eignar við yfirtöku kaupanda á virðisaukaskattskvöð.
Kaupandi yfirtekur virðisaukaskattskvöð þ.e. leiðréttingarskylda vegna eftirstöðva tímabils samkvæmt 14. gr. reglugerðar nr. 192/1993,
að u.þ.b. fjárhæð kr. 3.070.000.
Ef kaupandi tekur yfir vsk-kvöð er kaupverð kr. 22.800.000. Ef kaupandi tekur EKKI yfir virðisaukaskattskvöð verður kaupverð hennar kr. 25.870.000.
Við kaup á eigninni án yfirtöku á vsk-kvöð sér seljandi um að greiða upp vsk-kvöð og aflýsa henni fyrir útgáfu afsals.
ALLAR NÁNARI UPPLÝSINGAR Á SKRIFSTOFU s. 471-2858 | byr@byrfasteignasala.is
Elín Káradóttir, löggiltur fasteignasali og eigandi – elin@byrfasteignasala.is
Hrönn Bjargar Harðardóttir, löggiltur fasteignasali / stílisti - hronn@byrfasteignasala.is
Opið alla virka daga milli kl. 09:00-16:00.
Um skoðunarskyldu:
Lög um fasteignakaup nr. 40/2002 er kveða á um ríka skoðunarskyldu kaupenda á fasteignum.
Byr fasteignasala skorar því á væntanlega kaupendur að kynna sér vel ástand fasteigna fyrir kauptilboðsgerð og leita til þar til bærra sérfræðinga um nánari skoðun.
Gjöld sem kaupandi þarf að greiða af vegna kaupanna:
1. Stimpilgjald af kaupsamningi - 0.8% af heildarfasteignamati fyrir einstaklinga / 1.6% fyrir lögaðila
2. Þinglýsingargjald af kaupsamningi, veðskuldabréfi, o.fl. - kr. 3.800 af hverju skjali.
3. Lántökugjald lánastofnunar – sjá gjaldskrá viðkomandi lánveitanda.
4. Umsýslugjald til fasteignasölu kr. 69.900 m.vsk.
5. Ef um nýbyggingu er að ræða greiðir kaupandi skipulagsgjald, 0,3% af brunabótamáti, þegar það er lagt á.
www.byrfasteign.is | Miðvangur 2-4, 700 Egilsstaðir | Byr fasteignasala

Dýpri greining á Húsasjá
- Verðmat fasteignar
- Sölusaga og verðþróun
- Samanburður við sambærilegar eignir






