Kumlamýri 20
01-0101 · 225 Garðabæ



107 dagar á sölu
159.900.000 kr
870.915 kr/m²
Eignamiðlun kynnir:
Afar fallegt og vel skipulagt 5 herbergja parhús í nýju og spennandi hverfi á Álftanesi. Húsið er staðsteypt á tveimur hæðum og skilast það fullbúið að innan með fullfrágenginni lóð og innkeyrsla hellulögð með snjóbræðslu.
****AFHENDIST FULLBÚIÐ AÐ INNAN SEM UTAN.****
Bókið skoðun í síma 776-2150 eða alfred@eignamidlun.is
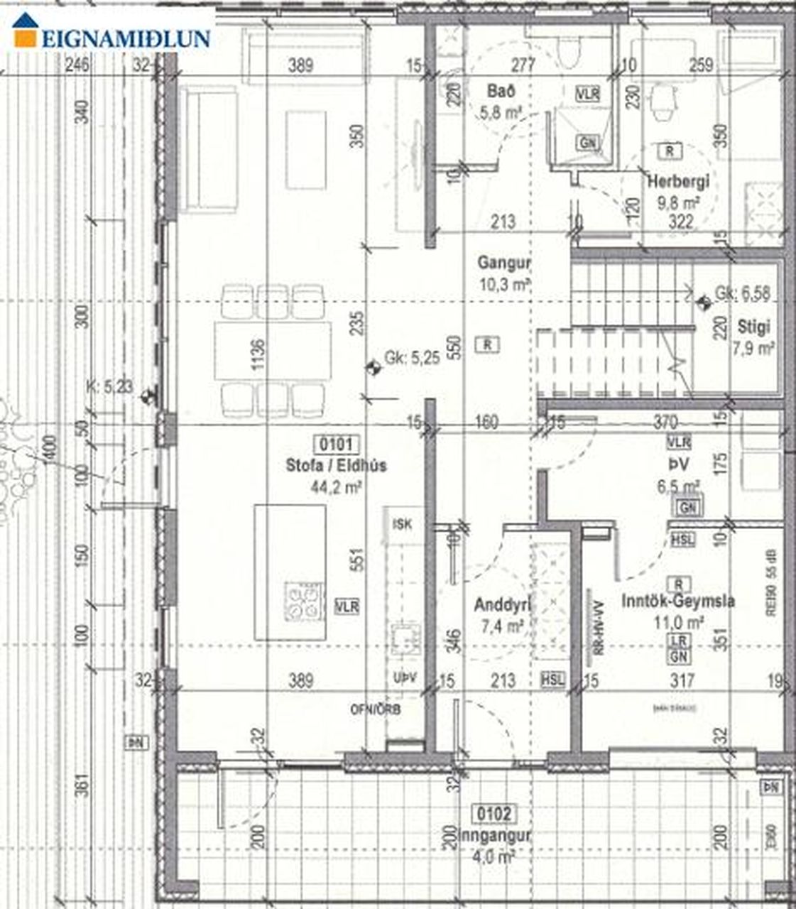
Eignin skiptist í
Neðri hæð: 120,9 fm
Forstofa, geymsla með bílskúrshurð, þvottahús, baðherbergi, eitt svefnherbergi, stofa og eldhús í björtu alrými þar sem gert er ráð fyrir rúmgóðu eldhúsi með eyju, útgengt er út á stóran og skjólgóðan pall frá eldhúsi.
Efri hæð: 62,7 fm, gólfflötur stærri.
Hjónaherbergi með fatarherbergi og útgengi á rúmgóðar svalir, tvö svefnherbergi og baðherbergi.
Nánari lýsing :
Neðri hæð :
Forstofa : Gengið inn um sérinngang með fataskápum
Eldhús og stofa : Samliggjandi eldhús og stofa, fullbúið eldhús með eyju. Útengi er út á pall.
Svefnherbergi I - 9,8 fm með opnanlegum glugga og fataskáp.
Baðherbergi I - með opnanlegum glugga, rúmgóðri innréttingu og walk in sturtu.
Þvottahús - með skolvask innréttingu og tengi fyrir þvottavél og þurrkara
Innbyggður geymsluskúr - gengið inn af þvottahúsi, með bílskúrshurð.
Efri hæð :
Gengið upp teppalagðann stiga
Svefnherbergi II - 10,8 fm með opnanlegum glugga og fataskáp.
Svefnherbergi III - 11,7 fm mep opnanlegum glugga og fataskáp, frábært útsýni til suðurs.
Hjónaherbergi IIII - með fataherbergi og útgengi á svalir.
Baðherbergi II - með opnanlegum glugga, rúmgóðri innréttingu og walk in sturtu.
Gólfefni : Parket og flísar.
Útveggir: Húsið er staðsteypt á tveimur hæðum, einangrað að innan.
Gluggar: ál/tré kerfi og glerjaðir með K-gleri.
Þak: Þak er báruklætt timburvirki
Hitakerfi: Gólfhiti.
Lóð : Fullfrágengin með sólpalli.
Nánari upplýsingar veita :
Alfreð B. Valencia aðstoðarmaður fasteignasala, í síma 776-2150, tölvupóstur alfred@eignamidlun.is
Kjartan Hallgeirsson Löggiltur fasteignasali, í síma 824-9093, tölvupóstur kjartan@eignamidlun.is
***
Ábyrg þjónusta í áratugi. Eignamiðlun var stofnuð 1957 og er elsta starfandi fasteignasala á Íslandi. Reynsla, heiðarleiki og þekking á fasteignamarkaðnum eru grunnur að farsælum viðskiptum.
Eignamiðlun Grensásvegi 11, 108 Reykjavík - Opið frá kl. 9-17 mánudaga til fimmtudaga og 9-16 á föstudögum.
Heimasíða Eignamiðlunar
Eignamiðlun á Facebook

Dýpri greining á Húsasjá
- Verðmat fasteignar
- Sölusaga og verðþróun
- Samanburður sambærilegra eigna































