Asparskógar 1
01-0103 · 300 Akranesi



87 dagar á sölu
59.900.000 kr
809.459 kr/m²
Valfell fasteignamiðlun og ráðgjöf sími 570-4824.
Til afhendingar strax- sérinngangur og suðursólpallur.
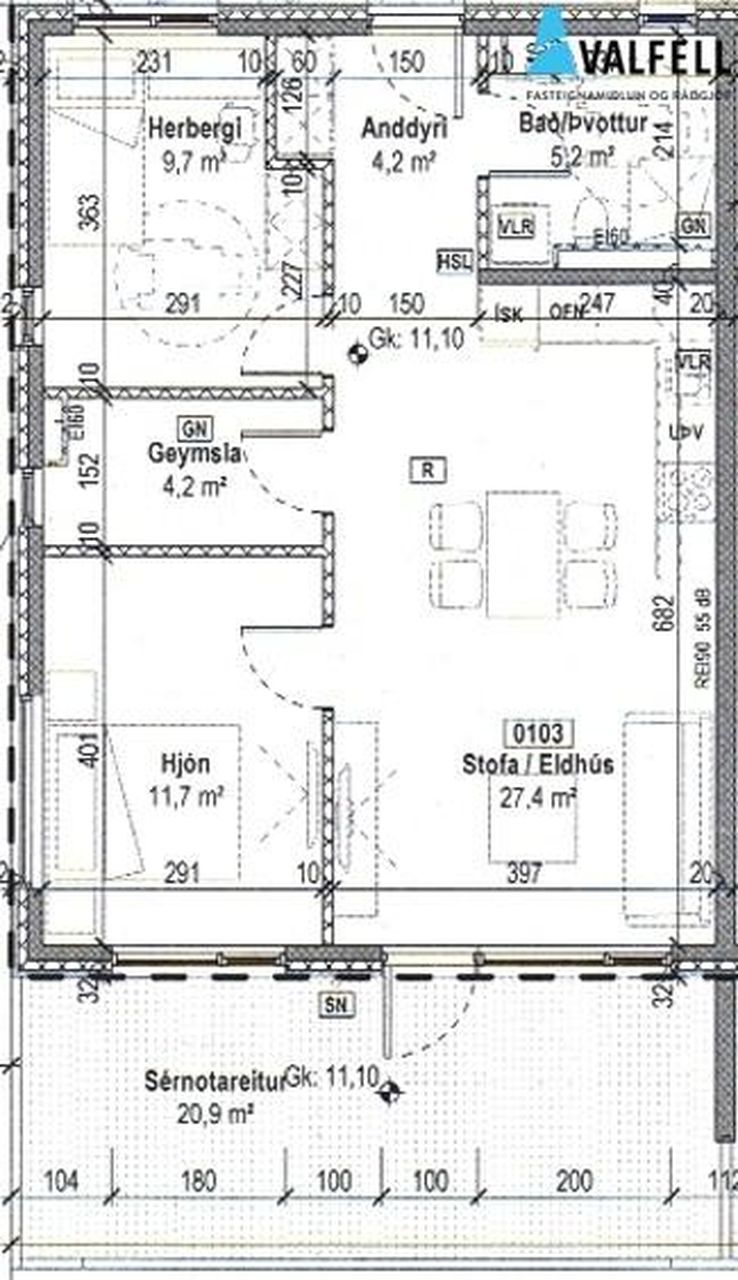
Falleg björt og vel skipulögð 74 fm 3ja herbergja endaíbúð á 1. hæð með sérinngangi. Íbúðinni fylgir stór suður sólpallur u.þ.b. 20 fm með skjólveggjum. Innan íbúðar eru tvö rúmgóð svefnherbergi með parketi á gólfum, fataskápur í báðum herbergjum. Forstofa með fataskáp og parket á gólfi. Flísalagt baðherbergi, sturta, upphengt wc, innrétting, handklæðaofn og gluggi á baði, tengi fyrir þvottavél og þurrkara.
Geymslan innan íbúðar er flísalögð með hillum (tengi fyrir þvottavél og þurrkara). Alrými sem samanstendur af eldhúsi með fallegri innréttingu, innbyggð uppþvottavél og ísskápur fylgir með og stofu / borðstofu með parketi á gólfum. Úr stofu er gengið út á 20 fm suður sólpall með skjólgirðingu.
Í sameign er hjóla og vagnageymsla á jarðhæð.
Byggt af Þ.G. verk 2023, tveggja hæða fjölbýlishús. Sorptunnuskýli við bílastæði á vesturhlið. Rafhleðslustöðvar settar upp 2024.Allar nánari uppl. veitir Hákon á hakon@valfell.is

Fáðu nýja innsýn á Húsasjá
- Verðmat fasteignar
- Sölusaga og verðþróun
- Samanburður sambærilegra eigna

















