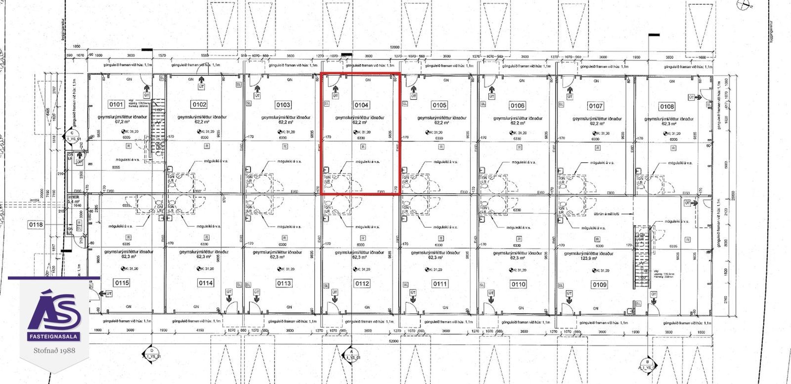
Borgahella 1C
01-0104 · 221 Hafnarfirði



52 dagar á sölu
34.900.000 kr
536.923 kr/m²
65,0 fm geymslu- og iðnaðarbil við Borgahellu 1, 221 Hafnarfirði.
Engin vsk-kvöð er á húsnæðinu.
- Möguleiki á að setja upp salernisaðstöðu.
- Burðarbitar með festingum fyrir milliloft fylgir með.
- Lofthæðin er 5,6m frá útvegg til 7,0m við mæni
- Hörmann innkeyrsluhurð, 4,5x3,6 m
- Burðargrind hússins er úr límtré.
- Quad Core samlokueiningar frá Kingspan.
- Sameiginlegur hitakostnaður.
- Hitað upp með gólfhita.
- Sér rafmagnstafla og 3ja fasa rafmagn.
- Innveggir einangraðir og gipsklæddir með spónar/krossviðar plötum að innanverðu, sparslaði og málaðir af málarameistara skv. seljanda.
- Gólf staðsteypt.
Vönduð eign sem býður upp á skemmtilega möguleika og góð staðsetning þar sem stutt er í alla helstu þjónustu.
Nánari upplýsingar veitir Arnór Daði Eiríksson löggiltur fasteignasali í síma 777-0939 / arnor@as.is
Ás fasteignasala er rótgróið fyrirtæki sem hefur veitt alla almenna þjónustu í fasteignaviðskiptum frá árinu 1988.
www.facebook.com/asfasteignasala
www.instagram.com/as_fasteignasala
www.as.is

Dýpri greining á Húsasjá
- Verðmat fasteignar
- Sölusaga og verðþróun
- Samanburður sambærilegra eigna














