Hnjúkamói 10
01-0202 · 815 Þorlákshöfn



28 dagar á sölu
49.400.000 kr
700.709 kr/m²
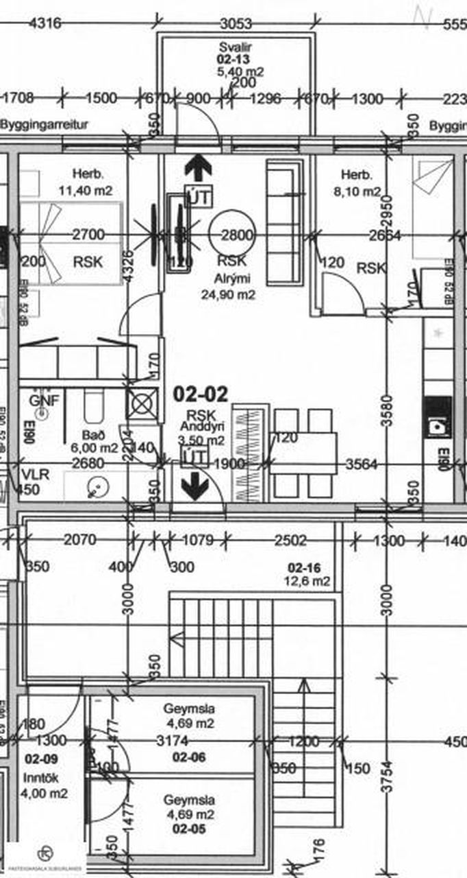
Fasteignasala Suðurlands (s 483 3424 ) kynnir í einkasölu: Hnjúkamóa 10, Íbúð 0202. Falleg 3ja herbergja íbúð á efri hæð auk 6.7 m2 sér geymslu.
Íbúðin er með sérinngangi. Á sameiginlegri lóð eru leiktæki fyrir börn og bekkur á notalegu útisvæði.
** Bóka má skoðun og fá allar nánari upplýsingar í síma 483 3424 og á fastsud@gmail.com **
Eignin skiptist svo:
* Anddyri með fataskáp.
* 2 rúmgóð svefnherbergi með góðum fataskápum.
* Stofu þaðan sem utangengt er á góðar svalir.
* Eldhús með innréttingu frá HTH, helluborði, bakaraofn og háf frá AEG ásamt ísskáp og uppþvottavél.
* Baðherbergi með flísum á gólfi og veggjum að hluta, upphengdu salerni, snyrtilegri innréttingu og sturtu.
* Tengi fyrir þvottavél er á baðherbergi.
* Nýtt harðparket er á öllum gólfum og flísar á baði.
* Sér útigeymsla fylgir íbúðinni. Ekki er sameiginleg hjóla-og vagnageymsla í húsinu.
* Bílastæði er malbikað. * Lagnaleið er að bílastæði fyrir hleðslustöð.
FASTEIGNASALA SUÐURLANDS HEFUR VEITT VANDAÐA OG GÓÐA ÞJÓNUSTU SÍÐAN 2003 !
Fasteignasala Suðurlands, Unubakka 3b, Þorlákshöfn.
Heimasíða fasteignasölunnar: https://www.eignin.is/
Í Þorlákshöfn er þjónustustig mjög gott - hagnýtar upplýsingar:
Verslun og þjónusta: Hér má m.a. finna:
KRÓNU VERSLUN
Apótekarann.
Rakarstofu Kjartans (facebook: kjartan rakari)
Vínbúðina.
Veitingastaðina: Thai Sakhon Restaurant (facebook: thai sakhon restaurant)
Skálann, sem jafnframt er sölustaður Orkunnar. Einnig er hér ÓB-stöð.
Caffe Bristól.
Hér er mjög góð heilsugæsla.
Hér er tannlæknir.
Í Ráðhúsi bæjarins eru, auk skrifstofu sveitarfélagsins:
Mjög gott bókasafn (facebook: Bæjarbókasafn Ölfuss) Landsbankinn
Tómstundir og afþreying:
Íþróttaiðkun í Þorlákshöfn er gríðarlega öflug og þá helst meðal barna og unglinga og er aðstaða til íþróttaiðkunar öll til mikillar fyrirmyndar.
Frá fjögurra ára aldri er í boði að iðka fótbolta (aegirfc.is), fimleika (facebook: fimleikadeild Þórs), körfubolta (facebook: Þór Þorlákshöfn) og frjálsar, ásamt því að iðkaður er badminton. Hér er svo einnig Litli íþróttaskólinn á vegum fimleikadeildarinnar fyrir börn frá eins árs aldri.
Motorcrossá braut rétt utan við bæinn.
Hestamennska (facebook: hestamannafélagið háfeti) með fallegum reiðleiðum allt um kring
Golf (facebook: golfklúbbur Þorlákshafnar) á rómuðum golfvelli sem staðsettur er í jaðri byggðarinnar, rétt við sjávarsíðuna.
Í íþróttamiðstöðinni er mjög góð líkamsræktar-aðstaða þar sem hægt er að komast í einka- þjálfun, spinning, hóptíma, líkamsrækt fyrir eldri borgara o.m.fl. Þar er að finna góða sundaðstöðumeð útilaug, heitum pottum, vaðlaug og skemmtilegri innilaug fyrir fjölskyldufólk. Jógastúdíó (Jógahornið). Öflug sjúkraþjálfun.
Afþreying er hér af ýmsum toga:
hér má meðal annars finna: Fallegt útivistarsvæði við vitann með útsýnispalli og göngustíg meðfram bjarginu í einstakri náttúrufegurð. Heilsustíg má finna í bænum þar sem líkamsræktartæki eru við göngu/hlaupastíga.
Hér er æðisleg strönd sem mikið er mikið notuð til útivistar og þar má oft sjá menn á brimbrettum, en slíkt er gott að stunda hér. Í sjónum við útsýnispallinn er einn vinsælasta staður til brimbrettaiðkunar á Íslandi.
Blackbeach tours (www.blackbeachtours.is) er afþreyingar fyrirtæki sem býður upp á fjórhjólaferðir bæði í fjöruna og um hraunið, RIB bátaferðir meðfram bjarginu og adrenalínferðir, snekkjuleigu og sjóstöng og jógaferðir úti í náttúrunni.
Einnig er hér: Öflugt leikfélag (facebook: leikfélag ölfuss).
Hinir ýmsu kórar (facebook: Tónar og Trix, Kyrjukórinn, ofl.) Einn stærsti Kiwanisklúbbur landsins (facebook: Kiwanisklúbburinn Ölver) O.sfr. o.s.frv.
** Allar helstu fréttir úr sveitafélaginu má finna á www.hafnarfrettir.is

Fáðu nýja innsýn á Húsasjá
- Verðmat fasteignar
- Sölusaga og verðþróun
- Samanburður sambærilegra eigna






















