Arnarholtsvegur 9
Lóð · 604 Akureyri



233 dagar á sölu
3.900.000 kr
Sumarhúsalóð á Hjalteyri – Draumatækifæri með geggjuðu útsýni!
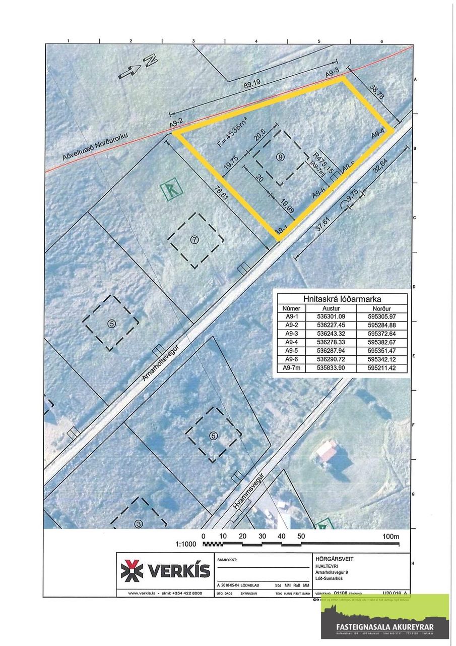
Til sölu er glæsileg 4.536 m² sumarhúsalóð á Hjalteyri – stað sem sameinar ró og fegurð við líflegt og skapandi samfélag. Hér færðu einstakt útsýni yfir Eyjafjörð, kyrrðina frá náttúrunni og samt aðgang að stað þar sem alltaf er eitthvað spennandi í gangi.
Lóðin er í frábæru og friðsælu hverfi, með góðum aðgangi og stutt í rafmagn og vatn. Þetta er tilvalinn staður fyrir þá sem vilja byggja draumasumarhúsið sitt í fallegu umhverfi – þar sem þú getur bæði slakað á og notið þess sem Hjalteyri hefur upp á að bjóða.
Samkvæmt skipulagi má byggja sumarhús á lóðinni – nánari upplýsingar um byggingarmagn fást hjá seljanda.
Ef þig langar í frábæran stað fyrir sumarhús, með útsýni sem tekur andann frá manni og góðum nágrönnum – þá er þetta eitthvað fyrir þig!
Frístundahús skulu vera að hámarki 140 m² og að lágmarki 30 m² á einni hæð. Þakform er frjálst. Hámarkshæð húsa er 5,5 m. Ekki eru gerðar sérstakar kröfur um form og útlit umfram almennar gæðakröfur í kafla 3.1.1. í DEILISKIPULAG HJALTEYRAR 26. febrúar 2018, Ekki er heimiluð föst búseta á svæðum fyrir frístundahús. Svæðið verður tengt fráveitu íbúðarbyggðarinnar.
Upplýsingar veitir Arnar s. 773-5100 eða arnar@fastak.is Allar frekari upplýsingar veitir
Arnar 773 5100 arnar@fastak.is
Um skoðunar- og aðgæsluskyldu:
Í lögum um fasteignakaup nr. 40/2002 er kveðið á um ríka skoðunarskyldu kaupenda á fasteignum. Fasteignasala Akureyrar hvetur því
væntanlega kaupendur til að kynna sér gaumgæfilega ástand fasteigna fyrir kauptilboðsgerð og leita til þar til bærra fagmanna um nánari skoðun ef með þarf.
Forsendur söluyfirlits:
Söluyfirlit er samið af fasteignasala í samræmi við ákvæði laga nr. 70/2015. Þær upplýsingar sem fram koma í söluyfirliti þessu eru sóttar í opinberar skrár, til seljanda sjálfs og eftir atvikum til húsfélags. Seljandi veitir upplýsingar um eign í samræmi við upplýsingaskyldu laga um fasteignakaup nr. 40/2002. Fasteignasali sannreynir að þær upplýsingar séu réttar með sjónskoðun á eigninni. Fasteignasali getur ekki fullyrt um ástand og eiginleika þeirra hluta fasteigna sem ekki eru aðgengilegir og sjást ekki berum augum, t.d. lagnir, dren, skólp og þak.

Dýpri greining á Húsasjá
- Verðmat fasteignar
- Sölusaga og verðþróun
- Samanburður sambærilegra eigna


