Nónhamar 4
01-0301 · 221 Hafnarfirði



53 dagar á sölu
66.900.000 kr
836.250 kr/m²
Fasteignasalan Hraunhamar glæsilega nýlega og bjarta 3 herbergja 80fm endaíbúð á þriðju hæð (efstu) í litlu vönduðum fjölbýli við Nónhamar 4 í Hafnarfirði. Byggaðili Bygg ehf. (Gunnar og Gylfi)
*** Laus við kaupsamning ***
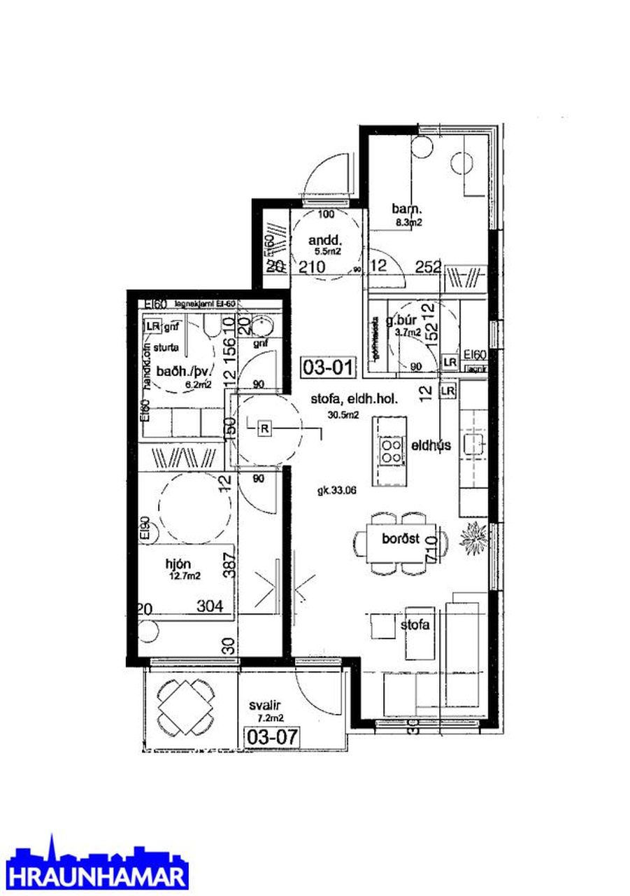
Lýsing eignarinnar:
Forstofa með fataskápum.
Björt stofa og þaðan er utangengt út á svalir.
Eldhús með smekklegri innréttingu frá GKS, eyju með eldunartæki frá AEG.
Rúmgott hjónaherbergi með fataskápum.
Herbergi með fataskáp.
Flísalagt baðherbergi með innréttingu, þvottaaðstöðu, sturtu.
Geymsla innan eignar
Harðparket á gólfum.
Frábær staðsetning í nýju hverfi í Hamranesinu þar sem stutt er í alla helstu þjónustu, en þar má nefna leik-,grunn-, og tónlistarskóla, matvörubúðir, fallega náttúru og margt fleira.
Nánari upplýsingar:
Einar Örn Ágústsson, löggiltur fasteignasali, s. 888-7979, einar@hraunhamar.is
Helgi Jón Harðarson, sölustjóri s. 893-2233, helgi@hraunhamar.is
Gjöld sem kaupandi þarf að standa straum af vegna kaupanna:
1. Stimpilgjald af kaupsamningi, fyrstu kaup (0,4%), almenn kaup (0,8%), lögaðilar (1,6%) af heildarfasteignamati.
2. Þinglýsingargjald af kaupsamningi, veðskuldabréfi, mögulegu veðleyfi o.fl. – kr. 2.700 kr. af hverju skjali.
3. Lántökugjald lánastofnunar er skv. verðskrá viðkomandi lánastofnunar.
4. Umsýslugjald til fasteignasölu skv. þjónustusamningi
Hraunhamar er elsta fasteignasala Hafnarfjarðar, stofnuð 1983.
Hraunhamar, í farabroddi í 40 ár. – Hraunhamar.is
Smelltu hér til að fá frítt söluverðmat.

Dýpri greining á Húsasjá
- Verðmat fasteignar
- Sölusaga og verðþróun
- Samanburður við sambærilegar eignir
























