Hrafnaborg 10E
01-0105 · 190 Vogum



58 dagar á sölu
53.900.000 kr
788.012 kr/m²
Smelltu hér Vertu tilbúin(n) þegar rétta eignin birtist – Fáðu tilboð í söluferlið - Skráðu eignina þína í dag og tryggðu þér forskotið.
ALLT fasteignasala kynnir í einkasölu eignina:
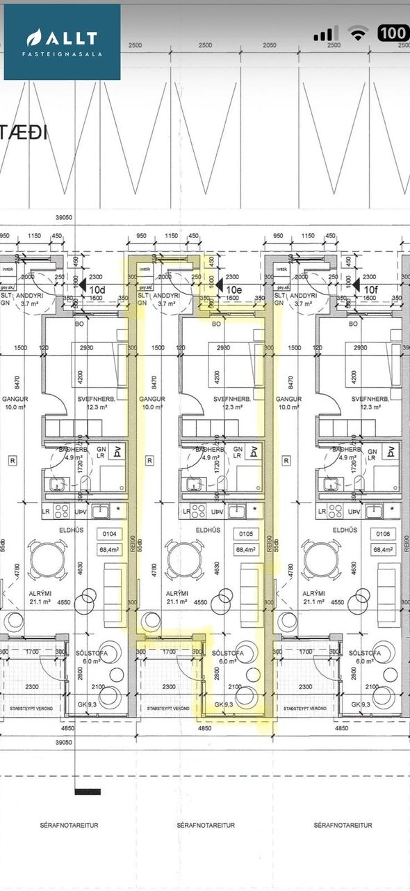
Hrafnaborg 10e, 190 Vogar. Falleg og björt 2. herbergja 68,4 fm raðhús á einni hæð með mikilli lofthæð sem gerir húsið einsaklega bjart og skemmtilegt.
Eignin samanstendur af anddyri, svefnherbergi, baðherbergi, eldhúsi, stofu ásamt góðu geymslulofti yfir baðherbergi.
Aðeins er 15 mín akstur í Hafnarfjörðinn.
Nánari upplýsingar veitir/veita:
Jóna Björg Jónsdóttir Löggiltur fasteignasali, í síma 560-5506, tölvupóstur jona@allt.is
Dísa Edwards Löggiltur fasteignasali, í síma 560-5510, tölvupóstur disa@allt.is.
* Gólfsíðir gluggar í alrými.
* Aukin lofthæð
* Corian steinn með innfelldri handlaug á baðherbergi
* Vandað 16mm plankaparket á gólfi og 60x60 flísar á baði og anddyri.
* Danfoss stýrikerfi fyrir gólfhita
* Lagnaleið fyrir rafmagnshleðslu út á bílastæði
* Lagnaleið fyrir heitan pott
* Lagt fyrir snjóbræðslu að framan
* Gott geymsluloft er yfir baðherbergi
Nánari lýsing eignar:
Anddyri: flísalagt með góðum hvítum fataskáp.
Svefnherbergi: með parketi á gólfi og hvítum fataskáp. Stigi er uppí rúmgott geymsluloft sem er yfir öllu baðherberginu.
Baðherbergi: er flísalagt í hólf og gólf, stór sturta, upphengt salerni, falleg hvít innrétting. Tengi fyrir þvottavél og þurrkara.
Eldhús: er opið inn í stofu með fallegri innréttingu, vönduðum tækjum og innbyggð uppþvottavél og ísskápur. Parket á gólfi.
Stofa: með parketi á gólfi og útgengt út á verönd til suðurs.
Bílastæði: eru malbikuð og fylgja eigninni tvö stæði fyrir framan húsið. Búið er að leggja fyrir snjóbræðslu en á eftir að tengja þær.
Lóð: er tyrfð og afgirt.
Vertu tilbúin(n) þegar rétta eignin birtist – skráðu eignina þín í dag og tryggðu þér forskotið.
ALLT fasteignasala er staðsett á eftirfarandi stöðum:
Hafnargötu 62, 230 Reykjanesbæ - Reykjavíkurveg 66, 220 Hafnarfirði
Kostnaður kaupanda:
1. Af gjaldskyldum skjölum skal greiða 0,8% af fasteignamati ef kaupandi er einstaklingur, fyrstukaupendur 0,4% og 1,6% af fasteignamati ef kaupandi er lögaðili.
2. Þinglýsingargjald á hvert skjal er kr. 3.800.
3. Lántökugjald fer eftir verðskrá lánastofnunar hverju sinni.
4. Umsýslugjald til ALLT fasteignasölu er kr. 69.440 m/vsk.
5. Sé um nýbyggingu um að ræða greiðir kaupandi skipulagsgjald, 0,3% af brunabótamati, þegar það er lagt á.
Skoðunar- og aðgæsluskylda kaupanda:
Í lögum um fasteignakaup nr. 40/2002 er kveðið á um ríka skoðunarskyldu kaupenda á fasteignum. ALLT fasteignasala vill beina því til væntanlegs kaupanda að kynna sér ástand fasteignar vel við skoðun og fyrir tilboðsgerð. Ef þurfa þykir er ráðlagt að leita til sérfræðifróðra aðila. Forsendur söluyfirlits: Söluyfirlit þetta er samið af fasteignasala til samræmis við lög um sölu fasteigna og skipa nr. 70/2015. Upplýsingar þær sem koma fram í söluyfirliti þessu eru sóttar í opinberar skrár, frá seljanda og eftir atvikum til húsfélags. Seljandi veitir upplýsingar um eignina til samræmis við upplýsingaskyldu sína sbr. lög um fasteignakaup nr. 40/2002. Fasteignasali sannreynir að upplýsingar séu réttar með sjónskoðun á eigninni. Fasteignasali getur ekki fullyrt um ástand og eiginleika þeirra hluta fasteignar sem ekki eru aðgengilegir og sjást ekki með berum augum, eins og t.d. lagnir, dren, skólp og þak.
Vertu tilbúin(n) þegar rétta eignin birtist – Fáðu tilboð í söluferlið - Skráðu eignina þína í dag og tryggðu þér forskotið.

Dýpri greining á Húsasjá
- Verðmat fasteignar
- Sölusaga og verðþróun
- Samanburður sambærilegra eigna

























