Bugðufljót 17D
03-0103 · 270 Mosfellsbæ



12 dagar á sölu
69.900.000 kr
446.075 kr/m²
** Hafðu samband og bókaðu tíma fyrir skoðun - Svanþór Einarsson, löggiltur fasteignasali - svanthor@fastmos.is eða 698-8555 - Theodór Emil Karlsson, löggiltur fasteignasali - teddi@fastmos.is eða 690-8040 - Steingrímur Benediktsson, löggiltur fasteignasali - steingrimur@fastmos.is eða 862-9416 **
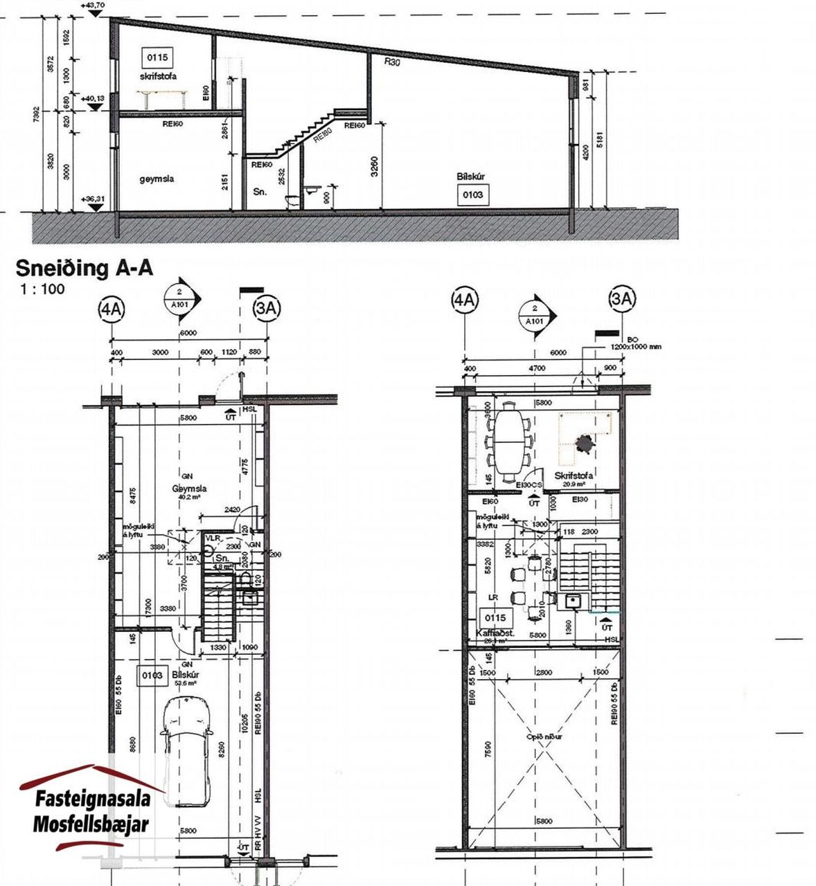
Fasteignasala Mosfellsbæjar kynnir: Nýlegt og vandað atvinnuhúsnæði á stórri lóð við Bugðufljót 17D á Tungumelum í Mosfellsbæ. Eignin er 156,7 m2, þar af atvinnurými 108,0 m2 og milliloft um 48,7 m2. Tvær inngönguhurðir og tvær stórar innkeyrsluhurðir (4,2X4 m og 3X3 m). Tvö bílastæði fyrir framan innkeyrslu hurð og tvö bílastæði á baklóð. Húsið er reist úr forsteyptum einingum frá BM Vallá.
Smelltu hér til að fá söluyfirlit sent strax.
Nánari lýsing eignar: Neðri hæð: Í dag er sanum skipt upp í tvö rými með epoxý á gólfi. Rúmgott salerni með vegghengdu salerni og epoxý á gólfi. Gólfhiti. Tvær innkeyrsluhurðar og tvær inngönguhurðar.
Sigi upp á milliloftið með handriði og hvíldarpalli. Efri hæð: Skiptist í tvö rými með parketi á gólfi. kaffistofa með innréttingu og skrifstofa. Sér hiti og rafmagn er í rýminu. Áhvílandi er á eigninni vsk kvöð og miðast söluverð við að kaupandi yfirtaki kvöðina.
Nánar um húsið: Útveggjaeiningar eru frá Smellinn samlokueiningar með VÖLUN að utanverðu, veðurkáða 7 sm, einangrun 10 sm og burðarveggur 15 sm. Þakið eru yleiningar (Sandwich) og límtré. Annarhver milliveggur milli bila eru steinsteyptar einingar og annarhver er yleiningar. Yfirborð steyptra veggja að innan er grófpússað eða ómeðhöndlaðir úr steypumótum frá Smellin. Yfirborð yleiningar er lakkað málmyfirborð. Bílaplan er fullfrágengið malbikuð/hellulögð með niðurföllum, olíuskilju og sorpaðstöðu.
Verð kr. 69.900.000,-
Um skoðunar- og aðgæsluskyldu:
Í lögum um fasteignakaup nr. 40/2002 er kveðið á um ríka skoðunarskyldu kaupenda á fasteignum. Fasteignasala Mosfellsbæjar skorar því á væntanlega kaupendur að kynna sér vel ástand fasteigna fyrir kauptilboðsgerð og leita til þar til bærra sérfræðinga um nánari skoðun ef með þarf.
Forsendur söluyfirlits:
Söluyfirlit er samið af fasteignasala í samræmi við ákvæði laga nr. 70/2015. Þær upplýsingar sem fram koma í söluyfirliti þessu eru sóttar í opinberar skrár, til seljanda sjálfs og eftir atvikum til húsfélags. Seljandi veitir upplýsingar um eign í samræmi við upplýsingaskyldu laga um fasteignakaup nr. 40/2002. Fasteignasali sannreynir að þær upplýsingar séu réttar með sjónskoðun á eigninni.
Fasteignasali getur ekki fullyrt um ástand og eiginleika þeirra hluta fasteigna sem ekki eru aðgengilegir og sjást ekki berum augum, t.d. lagnir, dren, skólp og þak.
Gjöld sem kaupandi þarf að greiða vegna kaupa:
1. Stimpilgjald af kaupsamningi sem er hlutfall af fasteignamati. Stimpilgjald er 0,8% fyrir einstaklinga (0,4% við fyrstu kaup) og 1,6% fyrir lögaðila.
2. Þinglýsingargjald af kaupsamningi, veðskuldabréfum, veðleyfum o.fl. Þinglýsingargjald er kr. 3.800,- fyrir hvert skjal.
3. Lántökugjald lánastofnunar - er skv. gjaldskrá viðkomandi lánastofnunar.
4. Umsýslugjald til fasteignasölu skv. kauptilboði.
5. Þegar um nýbyggingu er að ræða greiðir kaupandi skipulagsgjald, 0,3% af endanlegu brunabótamáti, þegar það er lagt á af viðkomandi sveitarfélagi.

Dýpri greining á Húsasjá
- Verðmat fasteignar
- Sölusaga og verðþróun
- Samanburður sambærilegra eigna


















