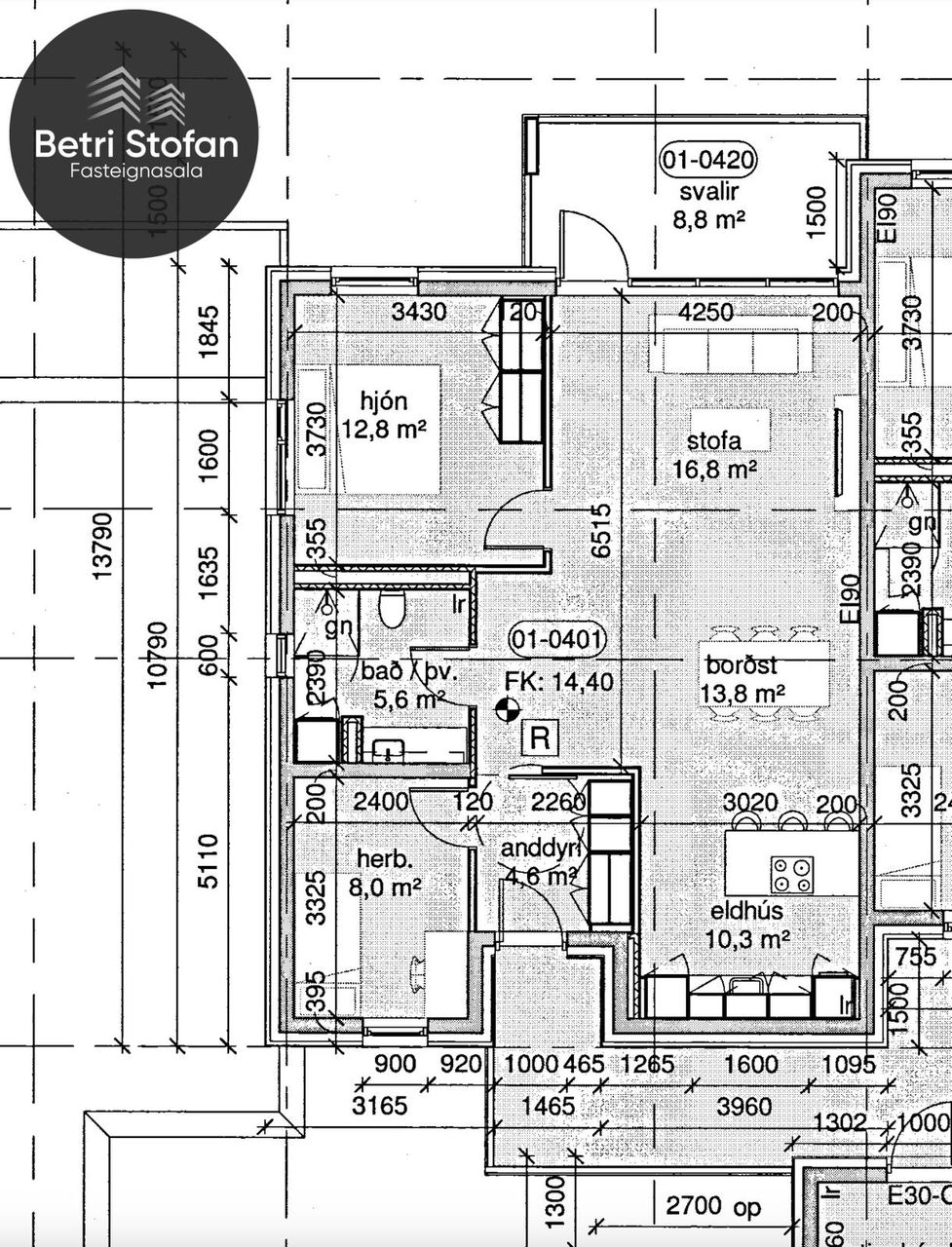
Hafnarbraut 12E
01-0401 · 200 Kópavogi



44 dagar á sölu
81.900.000 kr
852.237 kr/m²
Betri Stofan og Jason Ólafsson sími 7751515 kynna: Hafnarbraut 12E, íbúð 401, 3ja herbergja endaíbúð á 4. og efstu hæð með útsýni í nýlegu fjölbýli á Kársnesi. Íbúðinni fylgir bílastæði með hleðslustöð í lokuðum bílakjallara og sérgeymsla.
Eignin er vel skipulögð með aukinni lofthæð.
Fasteignamat er kr. 81.550.000-
https://vimeo.com/fasteignamyndbond/hafnarbraut12e
Forstofa með góðu skápaplássi og flísum á gólfi.
Eldhús hvít innrétting með eyju. Tæki eru frá AEG og Electrolux, innbyggð uppþvottavél og ísskápur.
Stofa með parketi, gólfsíðir gluggar og útgengt út á rúmgóðar svalir til vesturs.
Hjónaherbergi með parketi, glugga á tvo vegu og góðum fataskápum.
Herbergi með parketi og fataskáp.
Baðherbergi með sturtu, flísum á gólfi og hluta veggja. Hvít innrétting, handklæðaofn og gluggi með opnanlegu fagi. Stæði fyrir þvottavél og þurrkara.
Sameiginleg vagna og hjólageymsla í sameign.
Sérgeymsla sem er skráð: 8,1 fm
Rólegt hverfi með fallegum gönguleiðum og stutt er í skóla, leikskóla, Sky Lagoon og alla helstu þjónustu. Auk þess mun Fossvogsbrúin sem er í byggingu tengja svæðið við útivistarperlur Nauthólsvíkur og Öskjuhlíðar. Íbúð á efstu hæð með útsýni.
Allar nánari upplýsingar gefur :
Jason Kristinn Ólafsson lögg. fasteignasali sími: 775-1515 eða jason@betristofan.is löggiltur fasteignasali.
Gjöld sem kaupandi þarf að standa straum af ef að kaupum verður:
1. Stimpilgjald af fasteignamati fasteignar er 0.8%, en 0,4% fyrir fyrstu kaup og 1,6% fyrir lögaðila.
2. Þinglýsingargjald: kaupsamningi, skuldabréfi, veðleyfi, afsali o.s.frv. er kr. 3.800 af hverju skjali.
3. Lántökukostnaður samkvæmt verðskrá viðkomandi lánastofnunar.
4. Umsýslugjald til fasteignasölu skv. gjaldskrá.
Skoðunarskylda kaupanda:
Í lögum um fasteignakaup nr. 40/2002 er kveðið á um ríka skoðunarskyldu kaupenda á fasteignum. Betri Stofan fasteignasala bendir væntanlegum kaupendum á að kynna sér vel ástand fasteigna við skoðun og fyrir tilboðsgerð og ef þurfa þykir að leita til sérfræðinga um nánari ástandsskoðun.

Dýpri greining á Húsasjá
- Verðmat fasteignar
- Sölusaga og verðþróun
- Samanburður sambærilegra eigna































