Stuðlaskarð 3A
02-0101 · 221 Hafnarfirði



90 dagar á sölu
78.900.000 kr
872.788 kr/m²
Hraunhamar fasteignasala og Glódís Helgadóttir löggiltur fasteignasali kynna: Fallega og rúmgóða þriggja herbergja íbúð með sérinngangi í góðu fjórbýli við Stuðlaskarð 3, Hafnarfirði. Rúmgóð ca 30 fm verönd með heitum potti fylgir íbúðinni. Frábært staðsetning í Skarðshlíðarhverfinu þar sem stutt er í skóla og leikskóla.
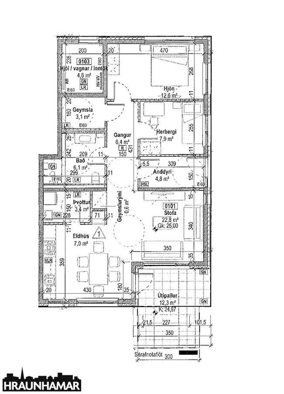
Íbúðin er skráð 90,4 fm skv. HMS.
Húsið var byggt af Byggingarfélaginu BYGG.
- Sérinngangur
- Góð lofthæð
- Verönd með heitum potti
- Tvö merkt bílastæði
Nánari lýsing:
Forstofa með fataskáp.
Gott hol, skápur þar.
Eldhús með smekklegri og rúmgóðri innréttingu frá Brúnás og eldunartæki frá AEG. Stæði fyrir ísskáp við hliðina á þvottaherbergishurðinni.
Fín borðstofa.
Björt og falleg stofa, þaðan er utangengt út á rúmgóða ca 30 fm verönd sem snýr í suðvesturátt.
Rúmgott hjónaherbergi með fataskápum.
Fínt barnaherbergi með fataskáp.
Rúmgott flísalagt baðherbergi með innréttingu með handlaug, upphengdu salerni, sturtuklefa og handklæðaofn.
Inn af eldhúsinu er þvottahús með innréttingu og skolvask.
Geymsla innan íbúðar.
Gólfefni eru parket og flísar.
Sameiginleg hjóla- og vagnageymsla.
Tvö merkt bílastæði á bílaplani fylgja íbúðinni og er búið að tengja fyrir bílarafhleðslustöð.
Þetta er falleg og vel skipulögð íbúð sem vert er að skoða. Mjög gott aðgengi.
Nánari upplýsingar veitir Glódís Helgadóttir löggiltur fasteignasali í s. 659-0510 eða á netfangið glodis@hraunhamar.is
Skoðunarskylda:
Í lögum um fasteignakaup nr. 40/2002 er kveðið á um ríka skoðunarskyldu kaupenda á fasteignum. Hraunhamar fasteignasala vill benda væntanlegum kaupendum á að kynna sér vel ástand fasteigna fyrir kauptilboðsgerð og ef þurfa þykir að leita til sérfræðinga fyrir nánari ástandsskoðun.
Gjöld sem kaupandi þarf að standa straum af vegna kaupanna:
1. Stimpilgjald af kaupsamningi, fyrstu kaup (0,4%), almenn kaup (0,8%), lögaðilar (1,6%) af heildarfasteignamati.
2. Þinglýsingargjald af kaupsamningi, veðskuldabréfi, mögulegu veðleyfi o.fl. – kr. 3.800 kr. af hverju skjali.
3. Lántökugjald lánastofnunar er skv. verðskrá viðkomandi lánastofnunar.
4. Umsýslugjald til fasteignasölu skv. þjónustusamningi
Hraunhamar er elsta fasteignasala Hafnarfjarðar, stofnuð 1983.
Hraunhamar, í fararbroddi í rúm 40 ár. – Hraunhamar.is

Dýpri greining á Húsasjá
- Verðmat fasteignar
- Sölusaga og verðþróun
- Samanburður sambærilegra eigna




























