Bakkastígur 20
01-0102 · 260 Reykjanesbæ



347 dagar á sölu
74.900.000 kr
439.554 kr/m²
Smelltu hér Vertu tilbúin(n) þegar rétta eignin birtist – Fáðu tilboð í söluferlið - Skráðu eignina þína í dag og tryggðu þér forskotið.
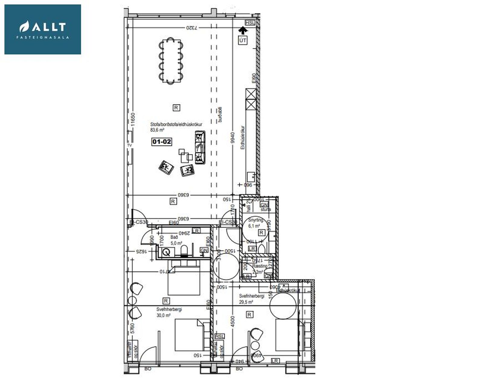
ALLT fasteignasala kynnir í einkasölu eignina Bakkastígur 20, 260 Reykjanesbær, nánar tiltekið eign merkt 01-02, fastanúmer 250-8413 birt stærð 170.4 fm.
BYGGINGARÉTTUR Skv eignaskiptayfirlýsingu þá er fjallað um sérafnotaflöt D, tilheyrir eignarhlut 0102 F2508413 og eignarhlut 0103 F2508414 til helminga 50/50 og hafa einir heimild til að nýta og byggja á lóðinni sunnan við bygginguna komið til þess heimild frá byggingaryfirvöldum og greiða þa allann þann kostnað sem því fylgir.
Mikil tækifæri ****** Úr stofunni er útgengi út á malarplan sem hægt væri að afstúka og setja afþreyingar tæki sbr sauna og heitan pott og njóta Faxaflóans.
Um er að ræða 170,4 m2 atvinnuhúsnæði sem búið er að breyta í íbúð fyrir skammtímaútleigu með frábæru sjávarútsýni Gegnum stóra glugga á gafli. Möguleikar eru að stúka meira niður rými t.d fyrir skrifstofur.
Komið er inn í stórt anddyri með fleyttu gólfi.
Stofa, borðstofa og eldhús eru í opnu björtu rými með parket á gólfi. Stórir gluggar eru í stofunni með frábæru sjávarútsýni. Úr stofunni er útgengi út á verönd sem hægt væri að afstúka og setja afþreyingar tæki sbr sauna og heitan pott og njóta Faxaflóans.
Eldhús hefur snýrtilega svarta innréttingu.
Svefnherbergið er rúmgott með parket á gólfi.
Baðherbergi er með fleyttu gólfi, sturtu, salerni og baðherbergisinnréttingu.
Þvottahús er með fleyttu gólfi. Þar er skolvaskur.
Íbúðin er mjög glæsileg, fallegt sjávarútsýni er að vestanmegin, en þar eru stórir gluggar sem snúa út að sjó.
Plan fyrir framan er malbikað.
Að sunnanmegin við húsið er 990 m2 jarðvegsskipt byggingarlóð sem mathluti 102 á 50% eignarhluta í.
Allar nánari upplýsingar veitir:
Páll Þorbjörnsson lgf í síma 560-5501 og á netfanginu pall@allt.is
Vertu tilbúin(n) þegar rétta eignin birtist – skráðu eignina þín í dag og tryggðu þér forskotið.
ALLT fasteignasala er staðsett á eftirfarandi stöðum:
Hafnargötu 91, 230 Reykjanesbæ - Þverholti 2, 270 Mosfellsbæ
Kostnaður kaupanda:
1. Af gjaldskyldum skjölum skal greiða 0,8% af fasteignamati ef kaupandi er einstaklingur, fyrstukaupendur 0,4% og 1,6% af fasteignamati ef kaupandi er lögaðili.
2. Þinglýsingargjald á hvert skjal er kr. 2.700.
3. Lántökugjald fer eftir verðskrá lánastofnunar hverju sinni.
4. Umsýslugjald til ALLT fasteignasölu er kr. 69.440 m/vsk.
5. Sé um nýbyggingu um að ræða greiðir kaupandi skipulagsgjald, 0,3% af brunabótamati, þegar það er lagt á.
Skoðunar- og aðgæsluskylda kaupanda:
Í lögum um fasteignakaup nr. 40/2002 er kveðið á um ríka skoðunarskyldu kaupenda á fasteignum. ALLT fasteignasala vill beina því til væntanlegs kaupanda að kynna sér ástand fasteignar vel við skoðun og fyrir tilboðsgerð. Ef þurfa þykir er ráðlagt að leita til sérfræðifróðra aðila. Forsendur söluyfirlits: Söluyfirlit þetta er samið af fasteignasala til samræmis við lög um sölu fasteigna og skipa nr. 70/2015. Upplýsingar þær sem koma fram í söluyfirliti þessu eru sóttar í opinberar skrár, frá seljanda og eftir atvikum til húsfélags. Seljandi veitir upplýsingar um eignina til samræmis við upplýsingaskyldu sína sbr. lög um fasteignakaup nr. 40/2002. Fasteignasali sannreynir að upplýsingar séu réttar með sjónskoðun á eigninni. Fasteignasali getur ekki fullyrt um ástand og eiginleika þeirra hluta fasteignar sem ekki eru aðgengilegir og sjást ekki með berum augum, eins og t.d. lagnir, dren, skólp og þak.
Vertu tilbúin(n) þegar rétta eignin birtist – Fáðu tilboð í söluferlið - Skráðu eignina þína í dag og tryggðu þér forskotið.

Fáðu nýja innsýn á Húsasjá
- Verðmat fasteignar
- Sölusaga og verðþróun
- Samanburður sambærilegra eigna























