Reynihlíð 10A
01-0102 · 604 Akureyri



40 dagar á sölu
129.900.000 kr
711.781 kr/m²
Fasteignasalan Hvammur 466 1600
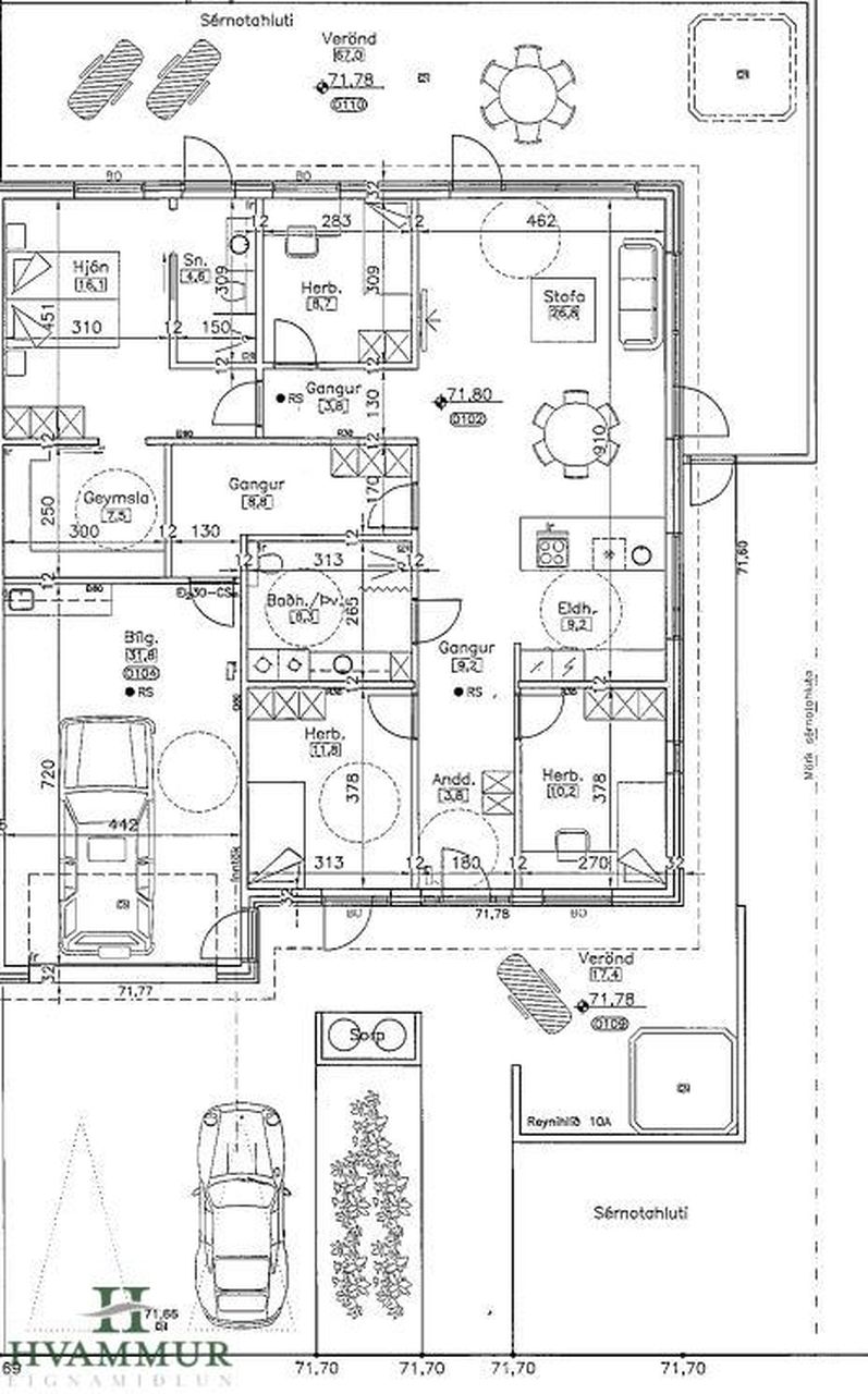
Reynihlíð 10a - Falleg og vel skipulögð 5 herbergja parhúsaíbúð á einni hæð með bílskúr í Hörgársveit - stærð 182,5 m², þar af er bílskúr skráður 35,4 m²
Eignin skiptist í forstofu, eldhús og stofu í einu alrými, hjónasvítu með fataherbergi og baðherbergi, þrjú barnaherbergi, baðherbergi, þvottahús, geymsluloft og bílskúr.
Forstofa er með flísum á gólfi og hvítum fataskápum.
Eldhús, falleg hvít innrétting með grárri borðplötu. Mjög gott skápa- og bekkjarpláss. Ísskápur og uppþvottavél eru innfelld í innréttingu og fylga með við sölu eignar.
Stofa og eldhús eru í einu opnu og björtu alrými með aukinni lofthæð. Harðparket er á gólfum, dúkur í lofti og innfelld lýsing. Í stofu eru stórir gólfsíðir gluggar bæði til tveggja átta og gönguhurðar út á steypta verönd.
Barnaherbergin eru þrjú, öll með harðparketi á gólfi og hvítir fataskápum. Stærð herbergja er skv. teikningum 8,7 - 10,2 og 11,8 m²
Hjónasvítan er með harðparketi á gólfi, vel innréttuðu fataherbergi og baðherbergi með hurð út á verönd þar sem er heitur pottur. Flísar eru á gólfi á baðherberginu, upphengt wc, hvít innrétting, walk-in sturta og handklæðaofn. .
Aðalbaðherbergið er með flísum á gólfi og með Fibo trespo plötum á veggjum að stærstum hluta. Svört innrétting, upphengt wc, handklæðaofn, baðkar og walk-in sturta.
Þvottahús er með harðparketi á gólfi og þar er stór hvít innrétting með bekk og vaska og þar er jafnframt innfelldur frystiskápur í innréttingu sem fylgi með við sölu. Við endann á þvottahúsinu er lítið geymsluloft.
Bílskúr er skráður 35,4 m² að stærð, flísalagður og með dökkri innréttingu. Rafdrifinn opnari er á innkeyrsluhurð en einnig er sér gönguhurð. Hleðslustöð fylgir með við sölu. Gengið er í gengum þvottahúsið þegar farið er inn í bílskúr.
Garðurinn er snyrtilegur. Framan við húsið er steypt bílastæði og steypt verönd með skjólveggum. Steypt stétt er með hluta af austurhliðinni að verönd sem liggur með hluta af austurhliðinni og allri norðurhliðinni. Þar eru steyptir skjólveggir og heitur pottur.
Annað
- Dúkar eru í loftum í alrými, baðherbergjum og hjónaherbergi.
- Innfelld lýsing er í helstu rýmum.
- Gólfhiti er í allri íbúðinni.
- Varmaskiptir.
- Stýring fyrir heitan pott.
- Hitalagnir eru í bílaplani og verönd.
- Ljósleiðari er kominn inn og tengdur.
- Eignin er í einkasölu.
Um skoðunar- og aðgæsluskyldu:
Í lögum um fasteignakaup nr. 40/2002 er kveðið á um ríka skoðunarskyldu kaupenda á fasteignum. Fasteignasalan Hvammur skorar því á væntanlega kaupendur að kynna sér vel ástand fasteigna fyrir kauptilboðsgerð og leita til þar til bærra sérfræðinga um nánari skoðun ef með þarf.
Forsendur söluyfirlits:
Söluyfirlit er samið af fasteignasala í samræmi við ákvæði laga nr. 70/2015. Þær upplýsingar sem fram koma í söluyfirliti þessu eru sóttar í opinberar skrár, til seljanda sjálfs og eftir atvikum til húsfélags. Seljandi veitir upplýsingar um eign í samræmi við upplýsingaskyldu laga um fasteignakaup nr. 40/2002. Fasteignasali sannreynir að þær upplýsingar séu réttar með sjónskoðun á eigninni. Fasteignasali getur ekki fullyrt um ástand og eiginleika þeirra hluta fasteigna sem ekki eru aðgengilegir og sjást ekki berum augum, t.d. lagnir, dren, skólp og þak.

Dýpri greining á Húsasjá
- Verðmat fasteignar
- Sölusaga og verðþróun
- Samanburður sambærilegra eigna
























