Jöfursbás 11B
01-0101 · 112 Reykjavík



151 dagar á sölu
46.297.000 kr
958.530 kr/m²
**** FÉLL Á FYRIRVARA ****
**** KOMIN AFTUR Í SÖLU ****
Hrafnkell á Lind kynnir þessa björtu og vel skipulögð tveggja herbergja íbúð á jarðhæð.
Íbúðin er með sérinngang og verönd til suðurs.
Fyrirhugað fasteignamat 2026 er kr. 48.350.000-.
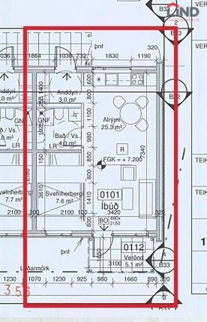
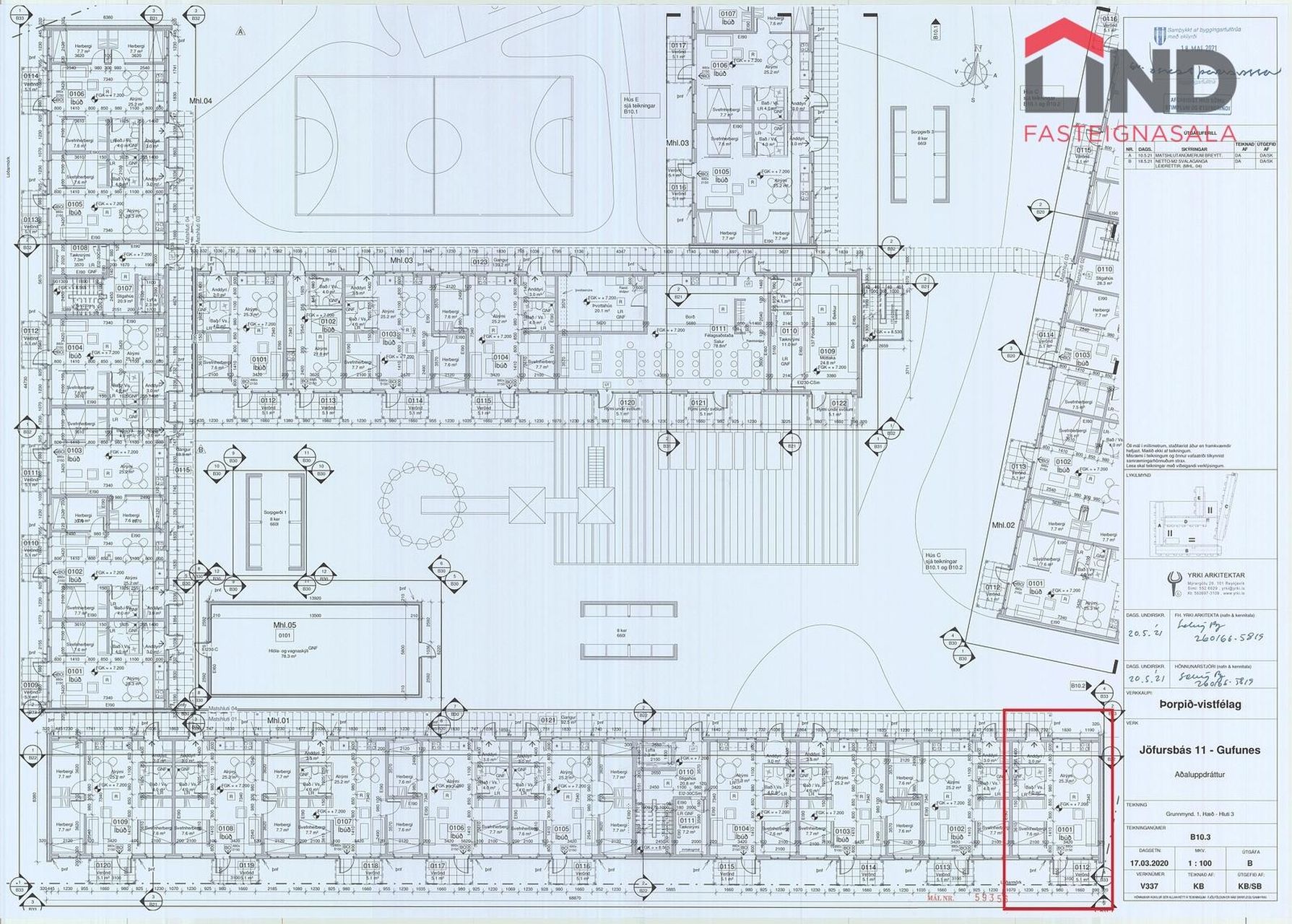
Íbúð merkt 101 við Jöfursbás 11B í Gufunesinu í Reykjavík.
Íbúðin er skráð 48,3 fm á stærð og eru allir fermetrar innan eignar
Nánari upplýsingar og bóka skoðun:
Hrafnkell P. H. Pálmason Löggiltur fasteignasali, í síma 690 8236, tölvupóstur hrafnkell@fastlind.is
Nánari lýsing:
Forstofan er með góðum skáp, opnu fatahengi og flísum á gólfi.
Stofan og eldhúsið mynda opið og bjart alrými þar sem útgengt er á sérafnotaflöt til suðurs.
Eldhúsið er með góðri innréttingu, innbyggð uppþvottvél og rými fyrir ísskáp. Góðir efri skápar og parketi á gólfi.
Hjónaherbergið er með góðum fataskápum og parket á gólfi. Gluggi til suðurs.
Baðherbergi með walk in sturtu, vaskaskáp, speglaskáp og upphengt salerni. Flísar á gólfi og rými fyrir þvottavél og þurrkara.
Sameiginlegt þvottahús er í sameign með vélum sem húsfélagið á.
Hjólageymslan er sameiginleg.
Salur í eigu húsfélagsins sem mögulegt er að fá afnot af.
Einnig hægt að fá afnot af grænmetisgarði á vegum húsfélagsins.
Lind fasteignasala ehf kynnir eignina Jöfursbás 11, 112 Reykjavík, nánar tiltekið eign merkt 01-01, fastanúmer 250-5298 ásamt öllu því sem eigninni fylgir, þar með talið tilheyrandi lóðar og sameignarréttindi.
Eignin Jöfursbás 11 er skráð sem hér segir hjá FMR: Eign 250-5298, birt stærð 48.3 fm.
Nánari upplýsingar veitir Hrafnkell P. H. Pálmason Löggiltur fasteignasali, í síma 690 8236, tölvupóstur hrafnkell@fastlind.is
-----------------------------------------------------------------------
Gjöld sem kaupandi þarf að standa straum af vegna kaupanna:
1. Stimpilgjald af kaupsamningi - 0.8% af heildarfasteignamati / 1.6% fyrir lögaðila
Fyrstu kaup - 0,4% af heildarfasteignamati
2. Þinglýsingagjald af kaupsamningi, veðskuldabréfi, veðleyfi o.fl.- kr. 2.700 af hverju skjali.
3. Lántökugjald lánastofnunar
4. Umsýsluþóknun til fasteignasölu, sbr.kauptilboð.

Dýpri greining á Húsasjá
- Verðmat fasteignar
- Sölusaga og verðþróun
- Samanburður við sambærilegar eignir





















