Egilsbraut 19
01-0202 · 740 Neskaupstað



355 dagar á sölu
27.000.000 kr
417.311 kr/m²
LF-fasteignasala/Lindin fasteignir s. 893-1319 og Þórdís Pála Reynisdóttir löggiltur fasteignasali thordis@lindinfasteignir.is kynna:
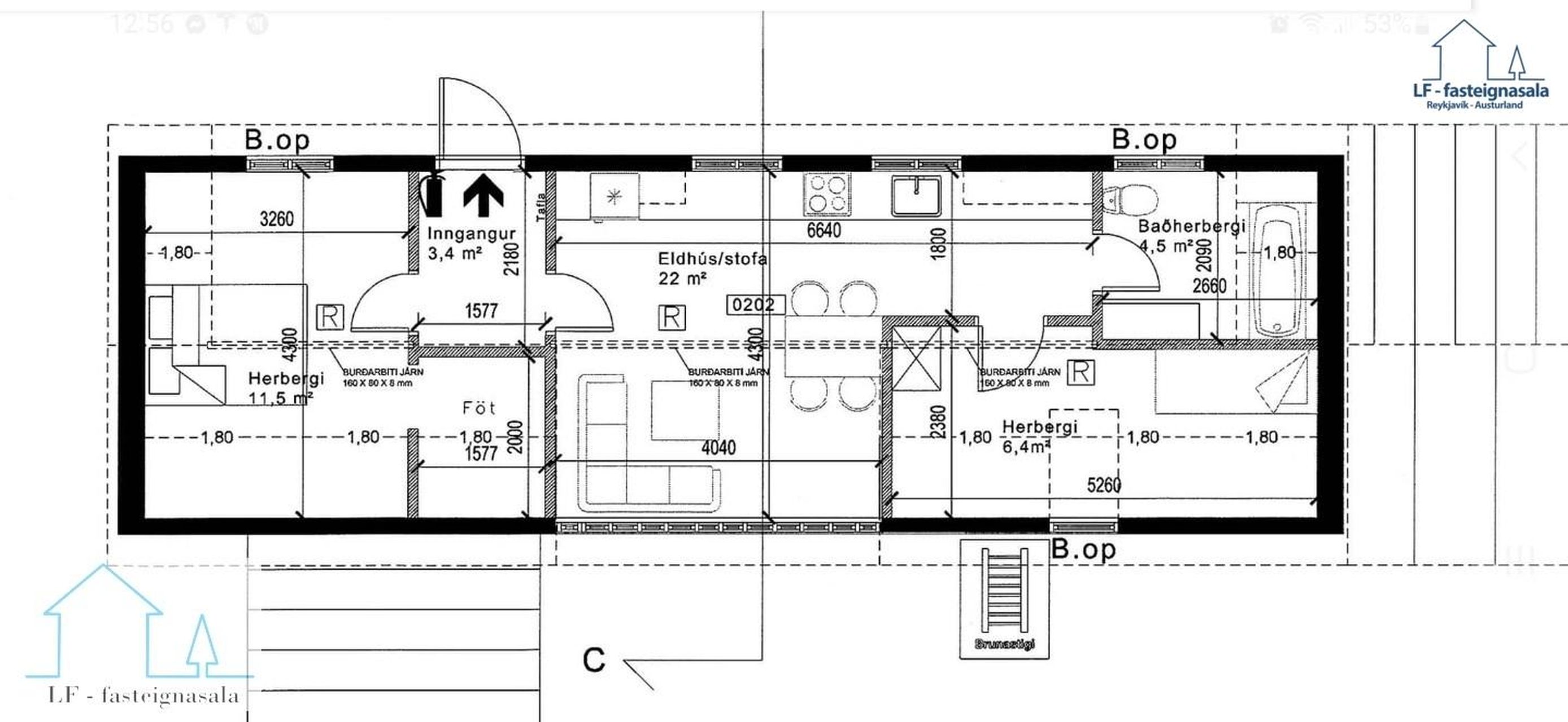
Egilsbraut 19, íbúð í bakhúsi, Neskaupstað.
Um er að ræða hlýlega og fallega 3ja herbergja íbúð í bakhúsi að Egilsbraut 19
Aðkoma að íbúðinni er frá Kvíabólsstíg, þar eru 2 bílastæði og slétt lóð sem er sérnotaflötur íbúðarinnar og býður uppá að gert verði skemmtilegt útisvæði.
Árið 2018 var húsnæðinu breytt í íbúð og eru því allar innréttingar, hurðir, flestir gluggar, vatns-og raflagnir, utanhússklæðning og þak nýlegt.
Vinilparket er á öllum gólfum.
Góð innrétting er í eldhúsi þar með talinn sérsmíðaður og styrktur skápur fyrir þvottavél og þurrkara. Uppþvottavél fylgir með án aukagjalds.
Baðherbergið er með baðkari.
Geymsla annarsstaðar í húsinu fylgir ibúðinni.

Dýpri greining á Húsasjá
- Verðmat fasteignar
- Sölusaga og verðþróun
- Samanburður við sambærilegar eignir











