Davíðshagi 8
01-0206 · 600 Akureyri



84 dagar á sölu
47.500.000 kr
868.373 kr/m²
Fasteignasalan Byggð 464-9955 - Einkasala
Davíðshagi 8 - 206
**Laus við kaupsamning**
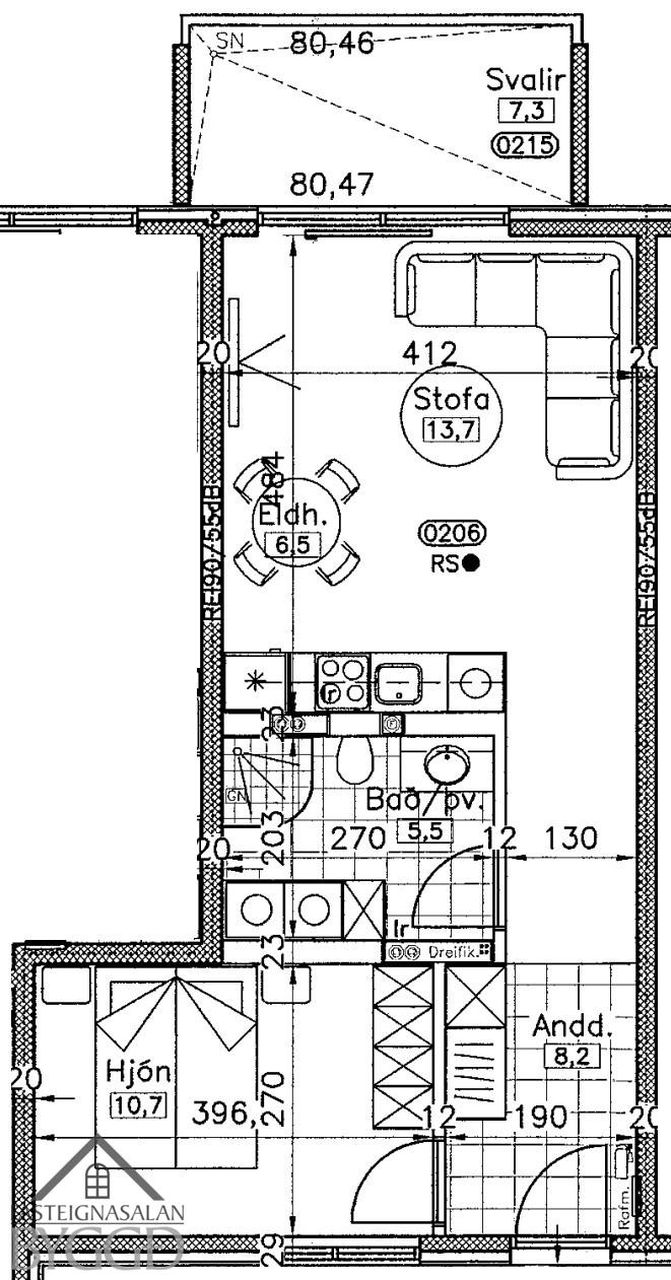
Góð tveggja herbergja íbúð á annari hæð í lyftuhúsi nyrst í Hagahverfi. Eignin er samtals 54,7 fm. en þar af er geymsla í sameign 3,6 fm..
Aðalinngangur er um lyftuhús, en húsið er stallað um hálfa hæð sitt hvoru megin við inngang. Gengið er inn í íbúðina af svalagangi á norðurhlið, en á suðurhlið eru svalir. Á jarðhæð hússins er sameignarrými, með sameiginlegri vagna- og hjólageymslu ásamt sér geymslu.
Eignin skiptist í forstofu, svefnherbergi, baðherbergi og eldhús og stofu í sameiginlegu rými.
Forstofa er með parket á gólfi og skáp á gangi.
Svefnherbergið er við forstofu með parket á gólfi og föstum rúmgóðum skápum.
Eldhús og stofa er í sameiginlegu rými með parket á gólfi. Eldhúsinnrétting er dökk með stæði fyrir uppþvottavél, góðu skápaplássi og svörtum flísum milli efri og neðri skápa. Úr stofu er gengið út á verönd um rennihurð.
Baðherbergi er með svartar flísar á gólfi og hvítar á veggjum, sturtu með vængjahurðum, upphengt salerni og góðri innréttingu með stæði fyrir þvottavél og þurrkara.
Annað:
-Vel skipulögð íbúð
-Gólfhiti í allri íbúðinni
-Öndun við rennihurð í stofu
-Bílastæði eru bæði norðan og vestan við húsið.
-Lyfta er í húsinu
-Ljósleiðari
Gjöld sem kaupandi þarf að standa straum af vegna kaupanna:
1. Stimpilgjald af kaupsamningi - 0.8% af heildarfasteignamati / 1.6% fyrir lögaðila. (0.4% við fyrstu kaup einstaklinga m.v. að lágmarki 50% eignarhlut).
2. Þinglýsingagjald af kaupsamningi, veðskuldabréfi, veðleyfi o.fl.- kr. 2.700 af hverju skjali.
3. Lántökugjald lánastofnunar -almennt 0,5-1,0% af höfuðstól skuldabréfs (nánari upplýsingar m.a. á heimasíðum lánastofnanna).
4. Umsýsluþóknun til fasteignasölu, sbr.kauptilboð.
Frekari upplýsingar:
bjorn@byggd.is
greta@byggd.is
berglind@byggd.is
olafur@byggd.is
Skipagötu 16 á 2. hæð.
S:464 9955

Fáðu nýja innsýn á Húsasjá
- Verðmat fasteignar
- Sölusaga og verðþróun
- Samanburður sambærilegra eigna











