Fönn 4
01-0101 · 741 Neskaupstað



149 dagar á sölu
22.000.000 kr
774.648 kr/m²
BYR fasteignasala kynnir í einkasölu FÖNN 4, 741 Neskaupstað. Sumarhús/gestahús umlukið spássipalli á eignarlóð í landi Fannardals í Norðfirði, Fjarðabyggð.
Smellið hér fyrir staðsetningu.
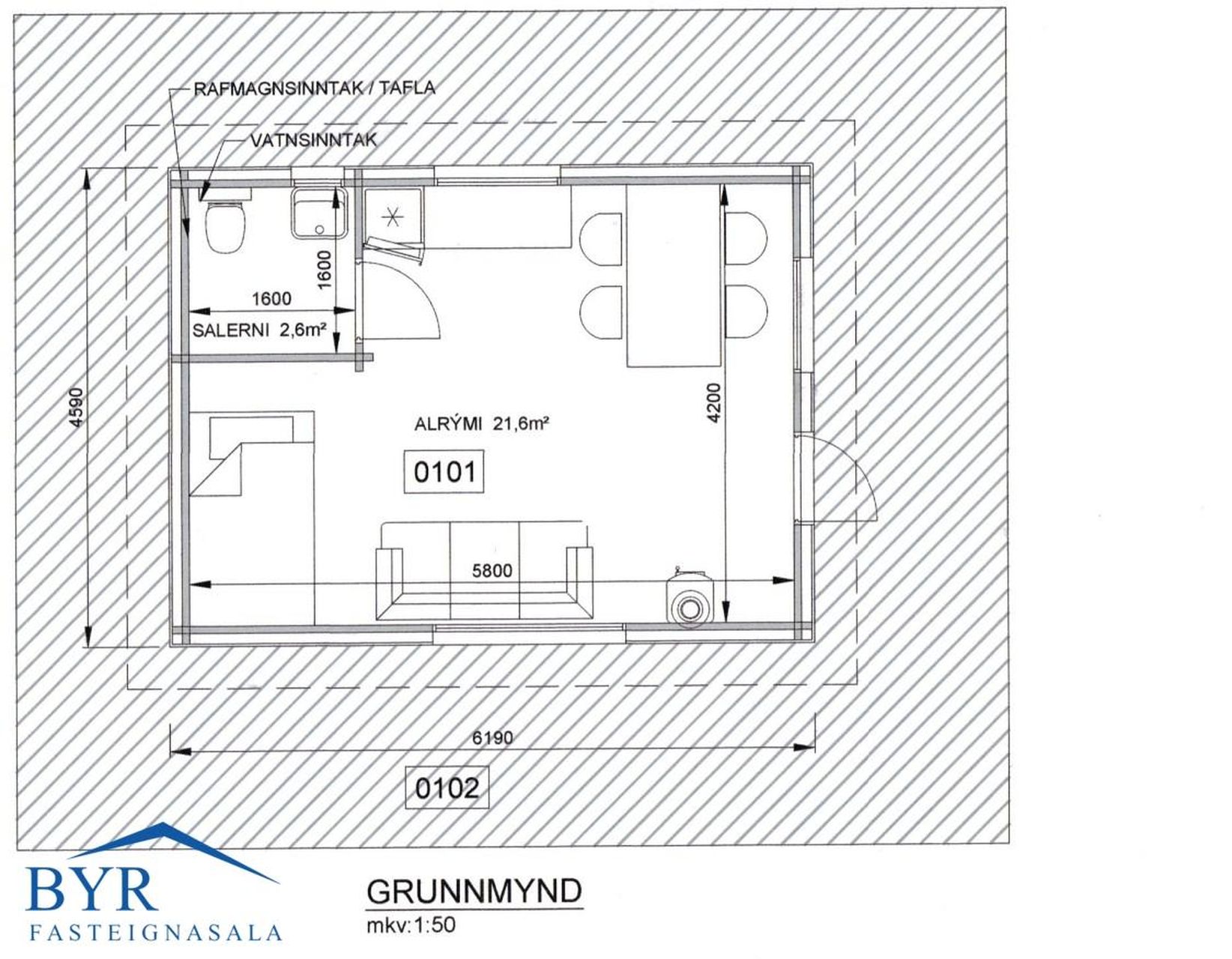
Húsið er timburhús á einni hæð, byggt árið 2018, 28.4 m² að stærð samkvæmt skráningu HMS.
Skipulag eignar: Alrými með stofu, „kitchenette" og lokrekkju, snyrting.
Nánari upplýsingar hjá BYR fasteignasölu | byr@byrfasteignasala.is | 471 2858 |
Nánari lýsing: Komið er inn í opið alrými með stofu, „kitchenette" og lokrekkju, frá alrými er innangengt á snyrtingu.
Kamína er í alrými, kamína er notuð til upphitnar hússins, „kitchenette" (án vasks), þar er gert ráð fyrir ísskáp, lokrekkja er innst í alrými.
Snyrting, tvöfaldur stálvaskur og salerni, gluggi. Nýlegt flæðandi harðparket er á gólfum. Rafmagnsinntak/tafla og vatnsinntak er á snyrtingu.
Innbú getur fylgt ef vill utan persónulegra muna.
Fönn 4 er sumarhús, verksmiðjuframleitt bjálkarhús, gólf og þak uppbyggt úr timbri. Húsið er grundað á steyptum staurundirstöðum.
Útveggir eru klæddir með bárujárni, þak er klætt með bárujárni. Gluggar og hurð eru úr timbri.
Spássipallur 30 m²​​​​​, umlykur húsið á alla vegu, skjólgirðin er við hluta palls, komin er tími á að bera á pall. Lóð er gróin að mestu leyti náttúrulegur lággróður, móar og lyng, malarbílaplan er .
Lóðin stendur í skipulögðu sumarbústaðalandi í Fannardal, stærð lóðar er 11.009,0 m² eignarlóð. Nýtingarhlutfall lóðar er 0,002. Safntankur er á lóð.
Samkvæmt deiliskipulagi Fannardalur, Norðfirði, er heimilt innan byggingarreits að reisa eitt frístundahús allt að 110 m² að grunnfleti, á einni hæð,
eða ein hæð og nýtanlegt ris. Þak skal vera einhalla þak eða ris. Byggingarefni timbur.
Auk frístundahúsa er heimilt að reisa innan byggingarreits allt að 40 m² geymslu eða gestahús á einni hæð, með sömu þakgerð.
Ekki er gert ráð fyrir girðingum umhverfis lóðina. Á lóðinni skulu vera bílastæði fyrir tvo bíla hið minnsta.
Smellið hér fyrir Deiliskipulag svæðis Fannardalur, Norðfirði.
Smellið hér fyrir skráningu eignar í landeignaskrá land númer 226552.
Skráning eignar samkvæmt fasteignayfirliti HMS:
Fasteignanúmer 250-0163. Fönn 4, Fjarðabyggð.
Stærð: Sumarbústaður 28.4 m².
Brunabótamat: 11.450.000 kr.
Fasteignamat: 7.950.000 kr.
Byggingarár: 2018.
Byggingarefni: Timbur.
ALLAR NÁNARI UPPLÝSINGAR Á SKRIFSTOFU s. 471-2858 | byr@byrfasteignasala.is
Elín Káradóttir, löggiltur fasteignasali og eigandi – elin@byrfasteignasala.is
Hrönn Bjargar Harðardóttir, löggiltur fasteignasali / stílisti - hronn@byrfasteignasala.is
Opið alla virka daga milli kl. 09:00-16:00.
Um skoðunarskyldu:
Lög um fasteignakaup nr. 40/2002 er kveða á um ríka skoðunarskyldu kaupenda á fasteignum.
Byr fasteignasala skorar því á væntanlega kaupendur að kynna sér vel ástand fasteigna fyrir kauptilboðsgerð og leita til þar til bærra sérfræðinga um nánari skoðun.
Gjöld sem kaupandi þarf að greiða af vegna kaupanna:
1. Stimpilgjald af kaupsamningi - 0.8% af heildarfasteignamati fyrir einstaklinga / 1.6% fyrir lögaðila
2. Þinglýsingargjald af kaupsamningi, veðskuldabréfi, o.fl. - kr. 3.800 af hverju skjali.
3. Lántökugjald lánastofnunar – sjá gjaldskrá viðkomandi lánveitanda.
4. Umsýslugjald til fasteignasölu kr. 69.900 m.vsk.
5. Ef um nýbyggingu er að ræða greiðir kaupandi skipulagsgjald, 0,3% af brunabótamáti, þegar það er lagt á.
www.byrfasteign.is | Miðvangur 2-4, 700 Egilsstaðir | Byr fasteignasala

Dýpri greining á Húsasjá
- Verðmat fasteignar
- Sölusaga og verðþróun
- Samanburður við sambærilegar eignir





















