Háimelur 4
01-0101 · 301 Akranesi



655 dagar á sölu
64.500.000 kr
264.236 kr/m²
Domusnova Akranesi og Ragga Rún lögg.fasteignasali kynna: ÚTSÝNIS húsið við Háimel 4 í Hvalfjarðarsveit sími 861-4644
** SKOÐA SKIPTI Á ÓDÝRARI EIGN **
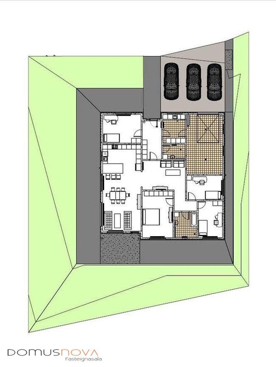
244,1 fermetra einbýlishús til sölu. Húsið skiptist 205,7 fm íbúð á einni hæð og 38,4 fm bílskúr.
Staðsett í þéttbýliskjarna við Hagamel Hvalfjarðarsveit þar sem er mikið útsýni og nálgun við náttúruna.
Sjá: Hvalfjarðarsveit ferðast um hvalfjarðarsveit , Þar sem lífið er ljúft
Afhending: STRAX
** Fasteignamat 2026 66.050.000,- **
Nýtt staðsteypt einbýlishús á einni hæð.
Nánari lýsing: Komið er inn í anddyri, innangegnt er á gestasnyrtingu og herbergi frá anddyri. Frá anddyri er komið inn í alrými sem tengir rými hússins saman. Innangengt er í bílskúr frá þvottahúsinu.
Anddyri: rúmgott.
Gestasnyrting: innangengt frá anddyri.
Herbergi: gert er ráð fyrir fjórum rúmgóðum herbergjum samkv. teikningu.
Alrými: alrými er 78fm. eldhús, borðstofa og stofa og sjónvarpsrými.
Baðherbergi: rúmgott baðherbergi er innaf alrými, sjá teikningu.
Þvottaherbergi: þvottaherbergið er rúmgott og er innangengt í bílskúr gegnum þvottaherbergið.
Bílskúr: Bílskúrinn er rúmgóður og verður afhendur í því ástandi sem húsið er í dag.
Lóðarfrágangur: Garður verður grófjafnaður samkvæmt byggingarstigi 2.
Húsinu verður skilað í því ástandi sem það er við skoðun.
Vatnslagnir og raflagnir eru innsteyptar
Ekki er búið að tengja neinar lagnir út í götu.
Gólf er ekki afrétt.
Burðarveggir eru komnir í fulla hæð en aðrir innveggir eru í 3.3 metrum.
Skoða teikningar inná Hvalfjarðarsveit/kortasjá sem til eru af eigninni.
Skipulagsgjald 0,3 greiðist af kaupanda þegar það verður lagt á.
Háimelur er í Melahverfi, ört vaxandi byggðarkjarna í Hvalfjarðarsveit, Melahverfi er staðsett í ca. 10 mínútna akstursfjarlægð frá Akranesi og ca. 30 mín. akstursfjarlægð frá Mosfellsbæ.
Hvalfjarðarsveit veitir góðan afslátt af leikskólagjöldum. Sveitarfélagið Hvalfjarðarsveit er eitt stöndugasta sveitarfélag landsins. Boðið er m.a. uppá gjaldfrían leikskóla, sem er í hverfinu, í 5 klst. á dag, frá klukkan 9-14, fyrir börn frá eins árs aldri. Skólabíll ekur börnum í Heiðarskóla. Þá er 25% afsláttur af fæðiskostnaði í grunnskóla og leikskóla auk þess sem veittur er 70 þús. Kr. íþrótta- og tómstundastyrkur til barna, upp að 18 ára aldri.
Nánari upplýsingar veita:
Ragnheiður Rún Gísladóttir löggiltur fasteignasali ragga@domusnova.is / sími 861-4644
Um skoðunar- og aðgæsluskyldu:Í lögum um fasteignakaup nr. 40/2002 er kveðið á um ríka skoðunarskyldu kaupenda á fasteignum. DOMUSNOVA fasteignasala bendir væntanlegum kaupendum á að kynna sér vel ástand fasteigna við skoðun og fyrir tilboðsgerð og ef þurfa þykir að leita til sérfræðinga um nánari ástandsskoðun.
Forsendur söluyfirlits:Söluyfirlit er samið af fasteignasala í samræmi við ákvæði laga nr. 70/2015. Þær upplýsingar sem fram koma í söluyfirliti þessu eru sóttar í opinberar skrár, til seljanda sjálfs og eftir atvikum til húsfélags. Seljandi veitir upplýsingar um eign í samræmi við upplýsingaskyldu laga um fasteignakaup nr. 40/2002, og ábyrgist að þær séu réttar. Fasteignasali sannreynir að þær upplýsingar séu réttar með sjónskoðun á eigninni. Fasteignasali getur ekki fullyrt um ástand og eiginleika þeirra hluta fasteigna sem ekki eru aðgengilegir og sjást ekki berum augum, t.d. lagnir, dren, skólp og þak. Það sama á við um staðhæfingar seljanda eignar um viðhald og einstaka framkvæmdir.
Gjöld sem kaupandi þarf að standa straum af vegna kaupanna: Stimpilgjald af kaupsamningi sem er hlutfall af fasteignamati. Stimpilgjald er 0,8% fyrir einstaklinga (0,4% við fyrstu kaup) og 1,6% fyrir lögaðila. Þinglýsingargjald af kaupsamningi, veðskuldabréfum, veðleyfum o.fl. Þinglýsingargjald er kr. 3.800,- fyrir hvert skjal.Lántökugjald lánastofnunar. Um lántökugjald vísast í gjaldskrá viðkomandi lánveitanda. Umsýsluþóknun fasteignasölu skv. gjaldskrá.
Ef um nýbyggingu er að ræða greiðir kaupandi skipulagsgjald, 0,3% af brunabótamáti, þegar það er lagt á.

Dýpri greining á Húsasjá
- Verðmat fasteignar
- Sölusaga og verðþróun
- Samanburður sambærilegra eigna






