Kirkjuvellir 8A
01-0201 · 221 Hafnarfirði



11 dagar á sölu
78.500.000 kr
719.523 kr/m²
Hraunhamar kynnir. Björt, falleg og einstaklega vel skipulögð 4ra herbergja endaíbúð á annarri hæð á Kirkjuvöllum 8b í Hafnarfirði.
Falleg íbúð, björt með gluggum í þrjár áttir. Lyfta í húsinu.
## Þrjú svefnherbergi
### Gott aðgengi.
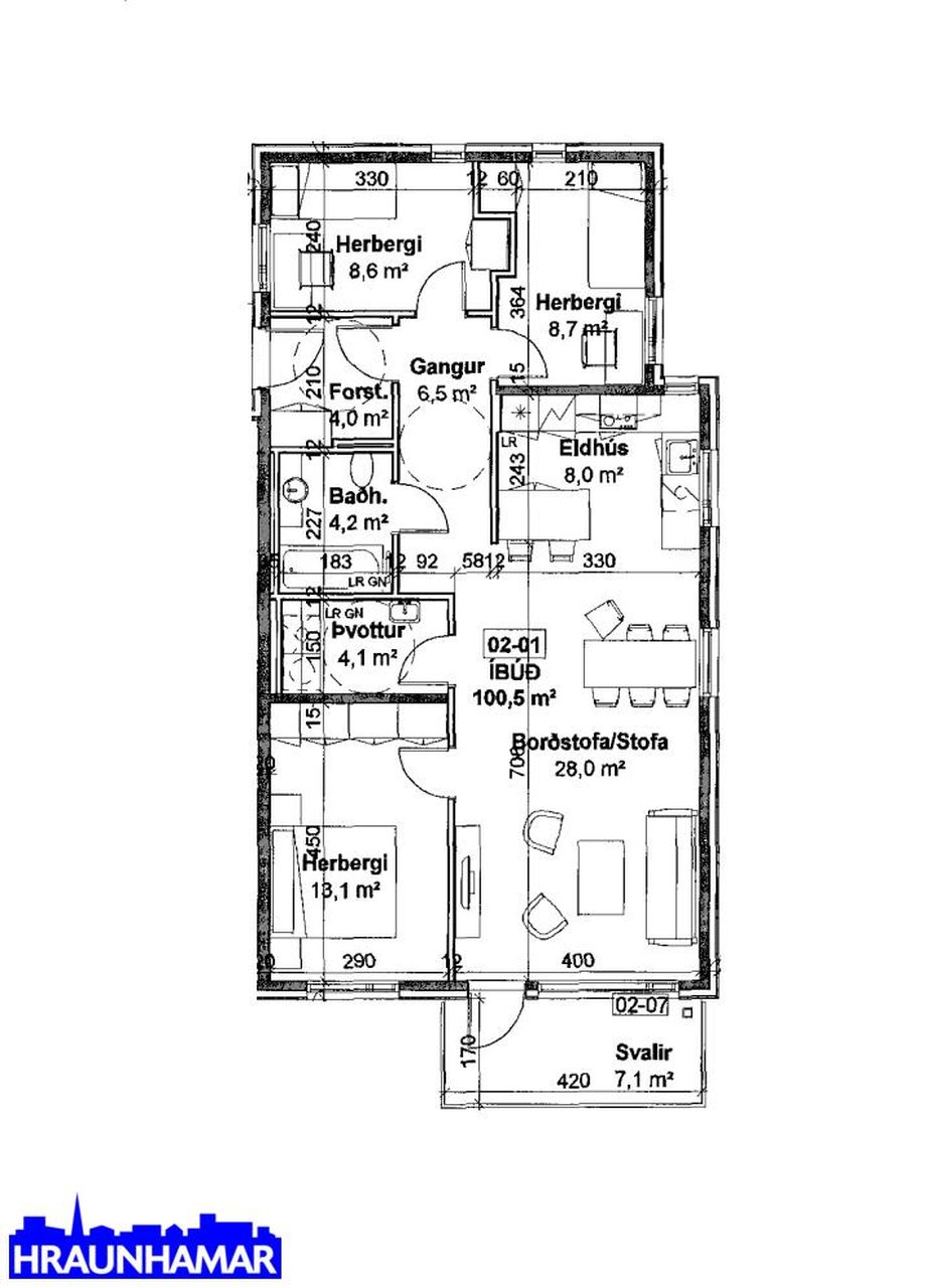
Eignin er samtals skráð 109,1 fm, íbúðin 100,5 fm og geymsla 8,6 fm.
Nánari lýsing
Forstofa: Gengið er inn í forstofu um sér inngang.Forstofan er nokkuð rúmgóð með fataskáp og flísum á gólfi.
Svefnherbergi: Hjónaherbergi með skápum á heilum vegg og tvö barnaherbergi, hvort um sig með góðum skápum.
Eldhús og stofa: Eldhús með fallegri innréttingu, björt stofa og þaðan utangengt út á svalir.
Baðherbergi: Fallegt baðherbergi, flísalagt í hólf og gólf með baðkari / sturtu og upphengdu salerni auk vaskinnréttingar.
Þvottahús: Sér þvottahús er í íbúðinni, nýjar innréttingar með vélar í réttri hæð og góðum skápum auk ræstivasks.
Gólfefni eignarinnar: Harðparket er á stærstum hluta íbúðarinnar, flísar á baðherbergi, þvottahúsi og forstofu.
Sameign: Mjög snyrtileg sameign, lyftuhús og sameiginleg hjóla- og vagnageymsla.
Geymsla: 8,6 fm geymsla í kjallara sameignar fylgir eigninni.
Stutt er í alla þjónustu, verslanir, skóla, sundlaugar og íþróttaaðstöðu
Nánari upplýsingar veitir Hlynur Halldórsson löggiltur fasteignasali, s. 698-2603, hlynur@hraunhamar.is
Skoðunarskylda:
Í lögum um fasteignakaup nr. 40/2002 er kveðið á um ríka skoðunarskyldu kaupenda á fasteignum. Hraunhamar fasteignasala vill benda væntanlegum kaupendum á að kynna sér vel ástand fasteigna fyrir kauptilboðsgerð og ef þurfa þykir að leita til sérfræðinga fyrir nánari ástandsskoðun.
Gjöld sem kaupandi þarf að standa straum af vegna kaupanna:
1. Stimpilgjald af kaupsamningi, fyrstu kaup (0,4%), almenn kaup (0,8%), lögaðilar (1,6%) af heildarfasteignamati.
2. Þinglýsingargjald af kaupsamningi, veðskuldabréfi, mögulegu veðleyfi o.fl. – 3.800 kr. af hverju skjali.
3. Lántökugjald lánastofnunar er skv. verðskrá viðkomandi lánastofnunar.
4. Umsýslugjald til fasteignasölu skv. þjónustusamningi
Hraunhamar er elsta fasteignasala Hafnarfjarðar, stofnuð 1983.
Hraunhamar, í fararbroddi í rúm 40 ár. – Hraunhamar.is
Smelltu hér til að fá frítt söluverðmat.

Dýpri greining á Húsasjá
- Verðmat fasteignar
- Sölusaga og verðþróun
- Samanburður við sambærilegar eignir






































