Álalind 2A
01-0401 · 201 Kópavogi



15 dagar á sölu
99.900.000 kr
906.534 kr/m²
Guðrún Antonsdóttir fasteignasali og Lind fasteignasala kynna afar fallega og bjarta 4.herbergja íbúð í fallegu fjölbýli við Álalind 2a í Kópavogi, byggðu árið 2017. Eigninni fylgir sér bílastæði í björtum og snyrtilegum bílakjallara. Íbúðin er sjarmerandi, björt og með tvennum svölum til suð-vesturs. Gengið er út á svalir úr stofu annars vegar og hjónaherbergi hins vegar. Sameign er sérstaklega snyrtileg og njóta allir íbúar sameiginlegs þakgarðs á þaki hússins með fallegu útsýni. Eignin verður afhent við kaupsamning.
Staðsetning eignarinnar er afar góð á eftirsóknaverðum stað við Álalind í næsta nágrenni við Smáralind og alla verslun og þjónustu.
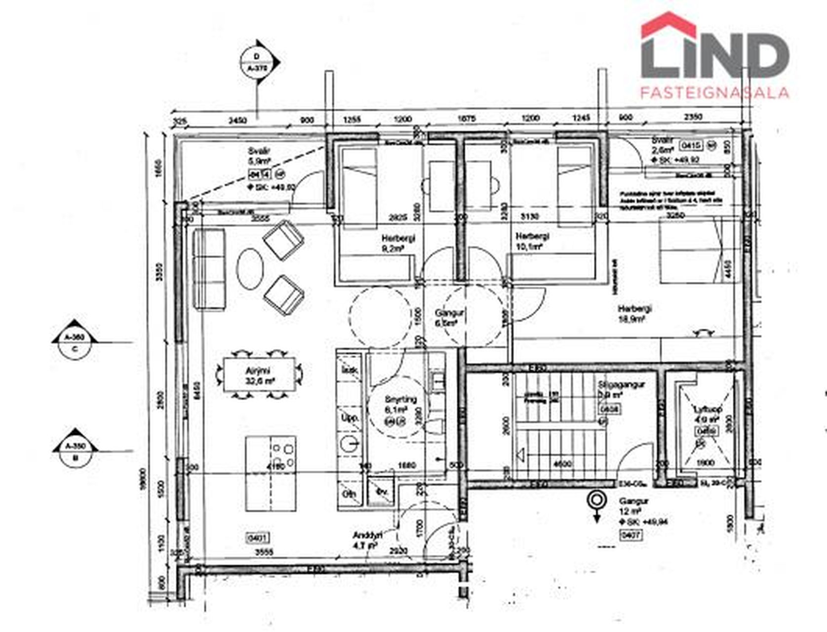
Nánari lýsing.
Stigapallur með teppi á gólfum og snyrtilega frágengin.
Forstofa með harðparketi (QuickStep) á gólfi, rúmgóð með fataskápum.
Eldhús með harðparketi á gólfi. Spanhelluborð á eldhúseyju með innbyggðum gufugleypi. Innbyggð uppþvottavél og kæliskápur. Bakaraofn í vinnuhæð. Eldhúsinnrétting frá HTH. Stór gluggi sem gefur fallega birtu í rýmið.
Stofan tengist eldhúsi, með harðparketi á gólfi og útgengi á svalir til suð-vesturs.
Tvö rúmgóð barnaherbergi með harðparketi á gólfi og rúmgóðum fataskápum.
Hjónaherbergið er mjög rúmgott með aukinni lofthæð. Harðparketi á gólfi, stórir fataskápar og svalir til vesturs.
Baðherbergi með flísum á gólfi. Flísalögð sturta, innrétting við vask og skápar. Tengi fyrir þvottavél og þurrkara.
Stæði í bílakjallara er rúmgott og vel staðsett m.t.t. inngangs að stigagangi.
Hverfið- Íbúðin er í nýlegu og glæsilegu, fimm hæða, 25 íbúða fjölbýlishúsi að Álalind 2A í nýlegu íbúðahverfi - Glaðheimum í hjarta Kópavogs. Í næsta nágrenni eru skólar, leikskólar, íþróttaaðstaða, sundlaug, verslanir og verslunarmiðstöðin Smáralind. Þá er svæðið einnig vel tengt aðalgatnakerfi höfuðborgarsvæðisins.
Allar upplýsingar um eignina veitir Guðrún Antonsdóttir fasteignasali í síma 621-2020 / gudrun@fastlind.is

Fáðu nýja innsýn á Húsasjá
- Verðmat fasteignar
- Sölusaga og verðþróun
- Samanburður sambærilegra eigna


























