Desjamýri 1
01-0103 · 270 Mosfellsbæ



49 dagar á sölu
92.900.000 kr
448.792 kr/m²
LANDMARK fasteignamiðlun og Freyja Rúnars löggiltur fasteignasali (s:6944112 / freyja@landmark.is) og félagsmaður í Félagi fasteignasala kynna í einkasölu:
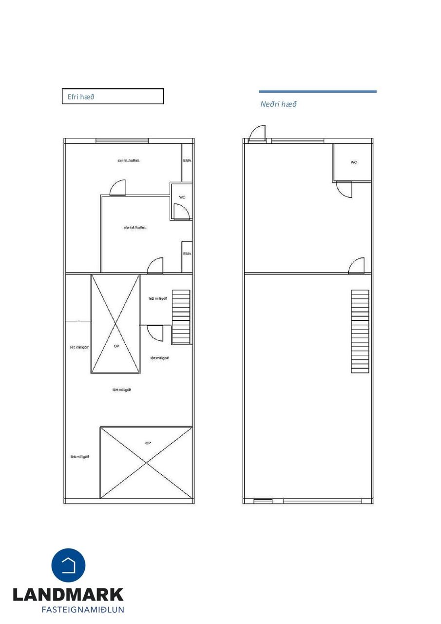
Virkilega gott 207 m2 atvinnuhúsnæði á afgirtu svæði með læstu hliði og öryggimyndavélakerfi við í Desjamýri 1, bil 3, í Mosfellsbæ. Húsnæðið samanstendur af 157,5 m2 iðnaðarrými með tveimur rafdrifnum innkeyrsluhurðum við báða enda og 49,5 m2 millilofti með skrifstofu- og kaffiaðstöðu. Mikil lofthæð er aðalrými, stór rafdrifin innkeyrsluhurð er að framanverðu í norðuraustur og önnur minni bakatil í suðvestur. Einnig eru gönguhurðir beggja megin. Húsið er tvískipt í dag með léttum vegg á milli fremra og aftara rýmis með gönguhurð á milli og er annað rýmið í útleigu í dag. Lítið mál að opna aftur á milli. Tvö salerni og tvær eldhúsaðstöður. Eigninni fylgir stórt sér afnota malbikað útisvæði.
Húsnæðið er skráð 207 fm og skiptist í 157,5 fm iðnaðarrými á jarðhæð merkt 0103 og 49,5 fm skrifstofur á millilofti skráð 49,5 fm. Búið að er bæta við milliloftið og er það því töluvert fleiri fermetrar en er skráð. Sjá myndir af núverandi skipulagi.
Smelltu hér til að sækja söluyfirlit.
Nánari lýsing
Innkeyrsluhurðir eru rafdrifnar. Gólf í aðalrými er steypt, salernisaðstaða er hrá með upphengdu salerni og handlaug. Tré stigi upp á milliloft er dúkalagður með álprófílum á handriði. Þar er parket á gólfi og er búið að skipta rýminu upp í þrennt; fremst er milliloft sem var bætt við og er því aukalega við þessa skráðu 49,5 fm, í millirýminu er nett eldhúsinnrétting með vaski og tengi fyrir ísskáp ásamt salerni salerni með handlaug, í aftara rýminu er einnig eldhúsinnrétting með vaski og tengi fyrir ísskáp. Góður gluggi er með opnanlegu fagi. 3ja fasa rafmagn er í húsinu og er búið að bæta við annarri rafmagnstöflu með aukaöryggjum.
Húsið sem byggt er árið 2017 er úr forsteyptum einingum og límtré. Lóðin er mjög snyrtileg með góðu aðgengi, malbikuðum bílastæðum og er afgirt með læstu hliði.
Vsk kvöð hvílir á húsnæðinu sem kaupandi í vsk skyldri starfsemi skal yfirtaka.
Allar nánari upplýsingar veitir Freyja Rúnars löggiltur fasteignasali í síma 694-4112 eða freyja@landmark.isSkoðunar- og aðgæsluskylda:
Lög um fasteignakaup nr. 40/2002 kveða á um að kaupendur þurfi að skoða fasteignir vel áður en tilboð er gert. LANDMARK fasteignamiðlun ráðleggur kaupendum að skoða ástand eignar og leita sér aðstoðar sérfræðinga ef þörf er á nánari skoðun.
Söluyfirlit:
Söluyfirlit er gert af fasteignasala samkvæmt lögum nr. 70/2015. Upplýsingar í yfirlitinu eru fengnar úr opinberum skrám, frá seljanda og ef þarf frá húsfélagi. Fasteignasali sannreynir upplýsingar með skoðun á eigninni en getur ekki sannreynt ástand þess sem ekki er aðgengilegt eða sýnilegt, t.d. lagnir, dren, skólp og þak.
Gjöld sem kaupandi þarf að greiða:
1. Stimpilgjald: 0,8% af fasteignamati (0,4% fyrir fyrstu kaup) og 1,6% fyrir lögaðila.
2. Þinglýsingargjald: 2.700 kr. fyrir hvert skjal.
3. Lántökugjald: Fer eftir gjaldskrá lánveitanda.
3. Þjónustusýslugjald: 79.000 kr. m/vsk.
3. Skipulagsgjald: Ef um nýbyggingu er að ræða, 0,3% af brunabótamáti þegar það er lagt á.
Heimasíða LANDMARK
Pantaðu frítt söluverðmat

Fáðu nýja innsýn á Húsasjá
- Verðmat fasteignar
- Sölusaga og verðþróun
- Samanburður sambærilegra eigna










