Tryggvagata 13
01-0505 · 101 Reykjavík



36 dagar á sölu
79.900.000 kr
1.244.548 kr/m²
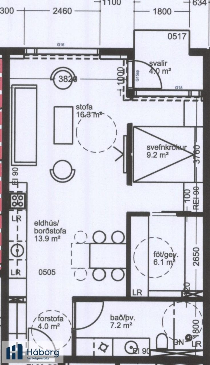
Háborg kynnir lausa til afhendingar sérlega glæsilega 2ja herbergja útsýnisíbúð á 5.hæð í hjarta borgarinnar með stórbrotnu útsýni til sjávar og fjalla. Íbúðin er 63,2 fm og geymsla í kjallara er 1 fm, samtals 64,2 fm. Glæsilegt alrými með stórum gólfsíðum útsýnisglugga, rúmgott svefnherbergi með stóru fataherbergi inn af og mjög rúmgott baðherbergi með þvottaaðstöðu. Vandað eikarparket og eikarinnréttingar. Gólfihiti og steinn í borðum. Glæsileg vegleg sameign með sjónsteypu.
Allar frekari upplýsingar gefur Þórunn Pálsdóttir lgf s:773-6000 og thorunn@haborg.is.
Bæði er inngangur í bygginguna frá Tryggvagötu og Geirsgötu, en sameignin er einkar glæsileg með marmara á gólfum og sjónsteypu á veggjum.
Húsið er afar smekklega hannað af Hildigunni Haraldsdóttur með sjónsteypu bæði á ytra byrði og á veggjum í sameign.Rúmgóðar hjólageymslur eru bæði á fyrstu hæð og í kjallara.
Íbúðin er afar vel skipulgögð þar sem allir fermetrar eru góðir. Gengið er inn í opna forstofu með opnu fatahengi. Strax á hægri hönd er mjög rúmgott baðherbergi með þvottaaðstöðu. Gott vinnuborð og bæði er gert ráð fyrir þvottavél og þurrkara. Rúmgott sturturými með innbyggðum blöndunartækjum.
Á vinstri hönd er eldhúsveggur með innbyggðum ísskáp og uppþvottavél. Forstofan og eldhúsið er hluti af glæsilegu alrými með mögnuðu útsýni yfir gömlu höfnina, til sjávar og fjalla. Á hægri hönd úr stofu er svefnherbergið, einnig með glæsilegu sjávarútsýni og þaðan er gengið út á svalir. Rennihurðar skilja að stofu og svefnherbergi, en inn af því er rúmgott fataherbergi með góðum innréttingum.
Einstaklega skemmtileg útsýnisíbúð á besta stað í hjarta miðborgarinnar við iðandi menningu og mannlíf.
Allar frekari upplýsingar gefur Þórunn Pálsdóttir lgf s 773-6000 og thorunn@haborg.is

Dýpri greining á Húsasjá
- Verðmat fasteignar
- Sölusaga og verðþróun
- Samanburður sambærilegra eigna


























