Hraunbraut 39
01-0101 · 805 Selfossi



353 dagar á sölu
28.200.000 kr
80.068 kr/m²
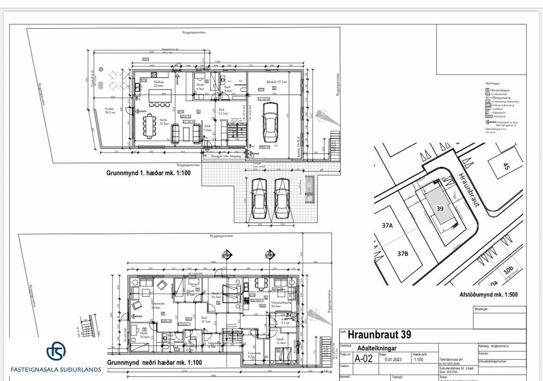
Fasteignasala Suðurlands (s 483 3424) kynnir í einkasölu: Grunn og teikningar húss, á einstaklega vel staðsettri byggingarlóð að Hraunbraut 39, þéttbýlinu að Borg í Grímsnesi. Grunnurinn er undir glæsilegt 288m2 einbýlishús á tveimur hæðum auk 64m2 bílskúr. Örstutt er á mjög skemmtilegan leikvöll sem og í sundlaug, skóla og leikskóla!
Nýlega var deiliskipulagt nýtt hverfi við Borg og hafa lóðir selst vel á því svæði og uppbygging hafin en um er að ræða einbýlis, par- og raðhúsabyggð.
** Nálgast má allar nánari upplýsingar í síma 483 3424 og á fastsud@gmail.com**
Vaxandi byggðakjarni er á Borg í Grímsnesi, þar er fjölþætt þjónusta fyrir heimamenn og ferðamenn, skóli, leikskóli, félagsheimili, verslun, gisting og tjaldsvæði. Á Borg er íþróttasalur og mjög góð sundlaug með gufu, rennibraut, heitum pottum og vaðlaug. Í félagsheimilinu er fjölbreytt menningarstarfsemi og viðburðir.
Á staðnum er einnig veitingastaðurinn á Minnborgum og örstutt er á golfvellina í Kiðjabergi og í Öndverðarnesi!
Einungis er um klukkutíma akstur í Rvk og 15-20mín akstur á Selfoss.
Búið er að greiða gatnagerðargjöld og byggingarleyfisgjald. Einnig er búið að greiða fyrir rafmagnsheimtaug.
Innifalið í verði eru grunnmyndir af efri- og neðri hæð húsins og gluggateikningar.
Búið er að setja allar lagnir, plast og járn en það á eftir að steypa plötuna. Það fór óhemju mikil vinna við gröft á lóðinni, en svo var bara steyptur grunnur, sett efni í grunninn, lagt skólp, heita og kaldavatnslagnir, einangrunarplast yfir og járngrindur ofan á það. Eina sem er bara eftir er að hella steypu yfir það og þá er sökkullinn klár.
Kaupandi þarf að útvega iðnmeistara, byggingameistara og byggingastjóra á verkið.
FASTEIGNASALA SUÐURLANDS HEFUR VEITT VANDAÐA OG GÓÐA ÞJÓNUSTU SÍÐAN 2003 !
Fasteignasala Suðurlands, Unubakka 3b, Þorlákshöfn.
Heimasíða fasteignasölunnar: https://www.eignin.is/

Dýpri greining á Húsasjá
- Verðmat fasteignar
- Sölusaga og verðþróun
- Samanburður sambærilegra eigna






