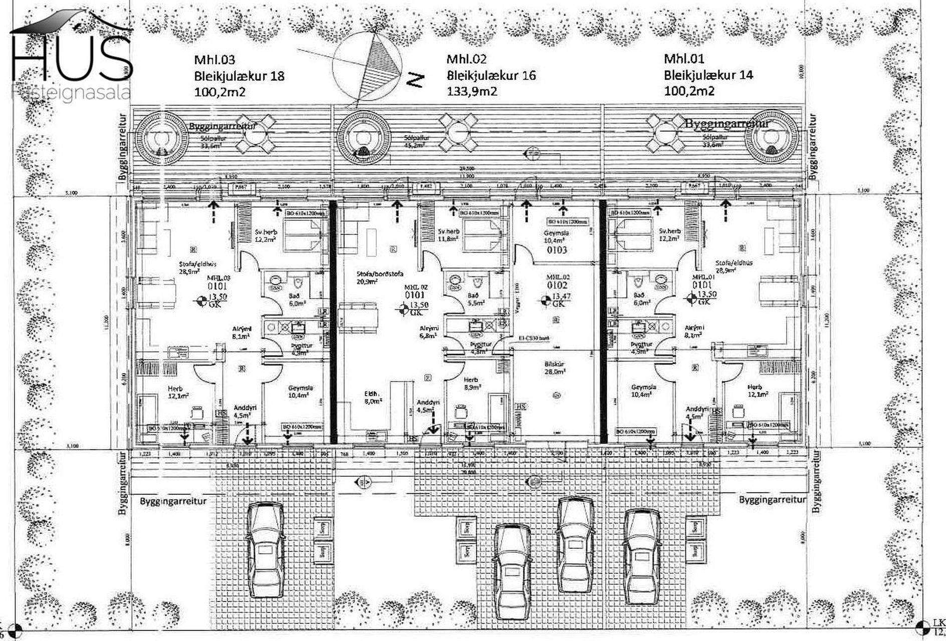
Bleikjulækur 14
01-0101 · 800 Selfossi



55 dagar á sölu
68.900.000 kr
687.625 kr/m²
Hús fasteignasala og Snorri Sigurfinnsson löggiltur fasteignasali kynna í einkasölu: Bleikjulækur 14. Gott endaraðhús, rúmir 100 fm. með þremur svefnherbergjum og aflokuðum góðum sólpalli.
Húsið er timburhús með standandi báruklæðningu, ál/tré gluggar. Byggt 2018.
Möl í innkeyrslu, stór aflokaður sólpallur og grasflöt. Bílahleðslustöð á sorptunnuskýli.
Nánari lýsing: Forstofa með fataskáp, hol/gangur. Eldhús og stofa í opnu rými, rúmgóð hvít eldhúsinnrétting. Innbyggð uppþvottavél. Hurð úr stofu út á sólpall. Þrjú góð svefnherbergi, tvö með fataskápum (eitt herbergjanna skráð sem geymsla á teikningu) Baðherbergi með innréttingu og sturtuklefa. Þvottahús með vinnuborði og hillum. Á forstofu, baðherbergi og þvottahúsi er flísaparket. Á öðrum gólfum er vandað harðparket. Hiti í gólfum með stýringum. Innbyggð led ljós í loftum með dimmerum. Í holi er fellistigi upp á stórt geymsluloft.
Nánari upplýsingar veitir Snorri Sigurfinnsson, löggiltur fasteignasali s. 8648090 eða snorri@husfasteign.is
Bókið einkaskoðun.
Gjöld sem kaupandi þarf að standa straum að vegna kaupanna.
1. Stimpilgjöld af kaupsamningi - 0,8 % af heildarfasteignamati og 1,6% fyrir lögaðila.
2. Þinglýsingargjald af kaupsamningi, veðskuldabréfi, mögulegu veðleyfi o.fl. kr. 3800 af hverju skjali.
3. Lántökugjald lánastofnunnar. Nánari upplýsingar t.d. á heimasíðum lánastofnanna.
4. Umsýslugjald til fasteignasölu
Skoðunarskylda: Í lögum um fasteignakaup nr. 40/2002 er kveðið á um ríka skoðunarskyldu kaupenda á fasteignum. Vill HÚS fasteignasala því skora á væntanlega kaupendur að kynna sér vel ástand fasteigna fyrir kauptilboðsgerð og leita til þar til bærra sérfræðinga um nánari skoðun.
Söluyfirlit er samið af fasteignasala í samræmi við ákvæði laga nr. 70/2015. Þær upplýsingar sem fram koma í söluyfirliti þessu eru sóttar í opinberar skrár, til seljanda sjálfs og eftir atvikum til húsfélags. Seljandi veitir upplýsingar um eign í samræmi við upplýsingaskyldu laga um fasteignakaup nr. 40/2002. Fasteignasali sannreynir að þær upplýsingar séu réttar með sjónskoðun á eigninni.
Fasteignasali getur ekki fullyrt um ástand og eiginleika þeirra hluta fasteigna sem ekki eru aðgengilegir og sjást ekki berum augum, t.d. lagnir, dren, skólp og þak.

Fáðu nýja innsýn á Húsasjá
- Verðmat fasteignar
- Sölusaga og verðþróun
- Samanburður sambærilegra eigna


























