Klukkuvellir 10
01-0101 · 221 Hafnarfirði



30 dagar á sölu
129.900.000 kr
775.522 kr/m²
Hraunhamar fasteignasala kynnir einstaklega fallega 167,5 fermetra endaraðhús á einni hæð með innbyggðum bílskúr vel staðsett á Völlunum í Hafnarfirði.
"4 svefnherbergi"
"Gott aðgengi"
"Hátt til lofts"
"Sérlega rúmgóður garður"
"Hleðslustöð"
Seljandi skoðar möguleg skipti á minni eign.
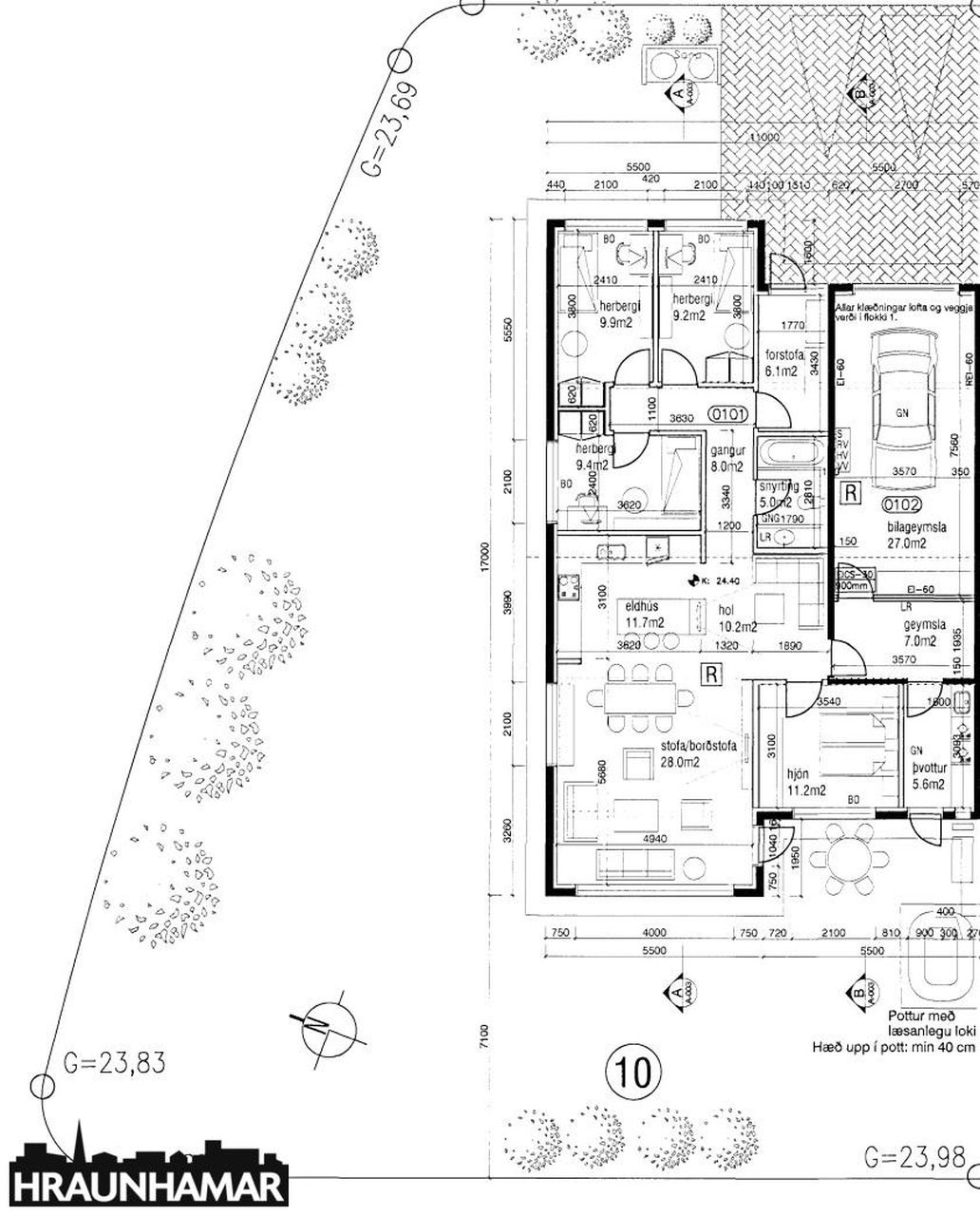
Skipting eignarinnar: Forstofa, hol, 4 svefnherbergi, stofa, eldhús, baðherbergi, þvottahús, geymsla og bílskúr.
Nánari Lýsing:
Forstofa með fataskápum,
Gott hol.
Fallegt flísalagt baðherbergi með Walk-in sturtu, góð innrétting á baði.
Þrjú barnaherbergi með fataskápum.
Rúmgott hjónaherbergi með fataskápum.
Björt stofa og borðstofa og þaðan er utangengt út á verönd.
Opið eldhús með fallegri innréttingu, vönduð eldunartæki.
Góð geymsla.
Þvottahús með innréttingu og þaðan er utangegnt út í garðinn.
Fínn bílskúr með aðgengi heitu og köldu vatni, hátt til lofts. yfir bílskúrunum er gott geymsluloft yfir hluta skúrsins, rafdrifin opnari.
Gólfefni eru harðparket og flísar.
Ytra umhverfið: Lóðin er falleg með verönd með skjólgirðingu. Hiti í bílaplaninu. Lóðin er afgirt með timburgirðingu.
Þetta er gott fjölskylduhús á þessum vinsæla stað í Vallarhverfinu. Hátt til lofts sem gefur eigninni skemmtilegan svip.
Eign sem vert er að skoða.
Nánari upplýsingar veitir Hlynur Halldórsson, löggiltur fasteignasali s. 698-2603, hlynur@hraunhamar.is
Skoðunarskylda:
Í lögum um fasteignakaup nr. 40/2002 er kveðið á um ríka skoðunarskyldu kaupenda á fasteignum. Hraunhamar fasteignasala vill benda væntanlegum kaupendum á að kynna sér vel ástand fasteigna fyrir kauptilboðsgerð og ef þurfa þykir að leita til sérfræðinga fyrir nánari ástandsskoðun.
Gjöld sem kaupandi þarf að standa straum af vegna kaupanna:
1. Stimpilgjald af kaupsamningi, fyrstu kaup (0,4%), almenn kaup (0,8%), lögaðilar (1,6%) af heildarfasteignamati.
2. Þinglýsingargjald af kaupsamningi, veðskuldabréfi, mögulegu veðleyfi o.fl. – 3.800 kr. af hverju skjali.
3. Lántökugjald lánastofnunar er skv. verðskrá viðkomandi lánastofnunar.
4. Umsýslugjald til fasteignasölu skv. þjónustusamningi
Hraunhamar er elsta fasteignasala Hafnarfjarðar, stofnuð 1983.
Hraunhamar, í fararbroddi í rúm 40 ár. – Hraunhamar.is
Smelltu hér til að fá frítt söluverðmat.
Smelltu hér til að fá söluyfirlit sent strax.

Dýpri greining á Húsasjá
- Verðmat fasteignar
- Sölusaga og verðþróun
- Samanburður sambærilegra eigna













































