Hæðarendi 4
01-H01 · 203 Kópavogi



107 dagar á sölu
58.900.000 kr
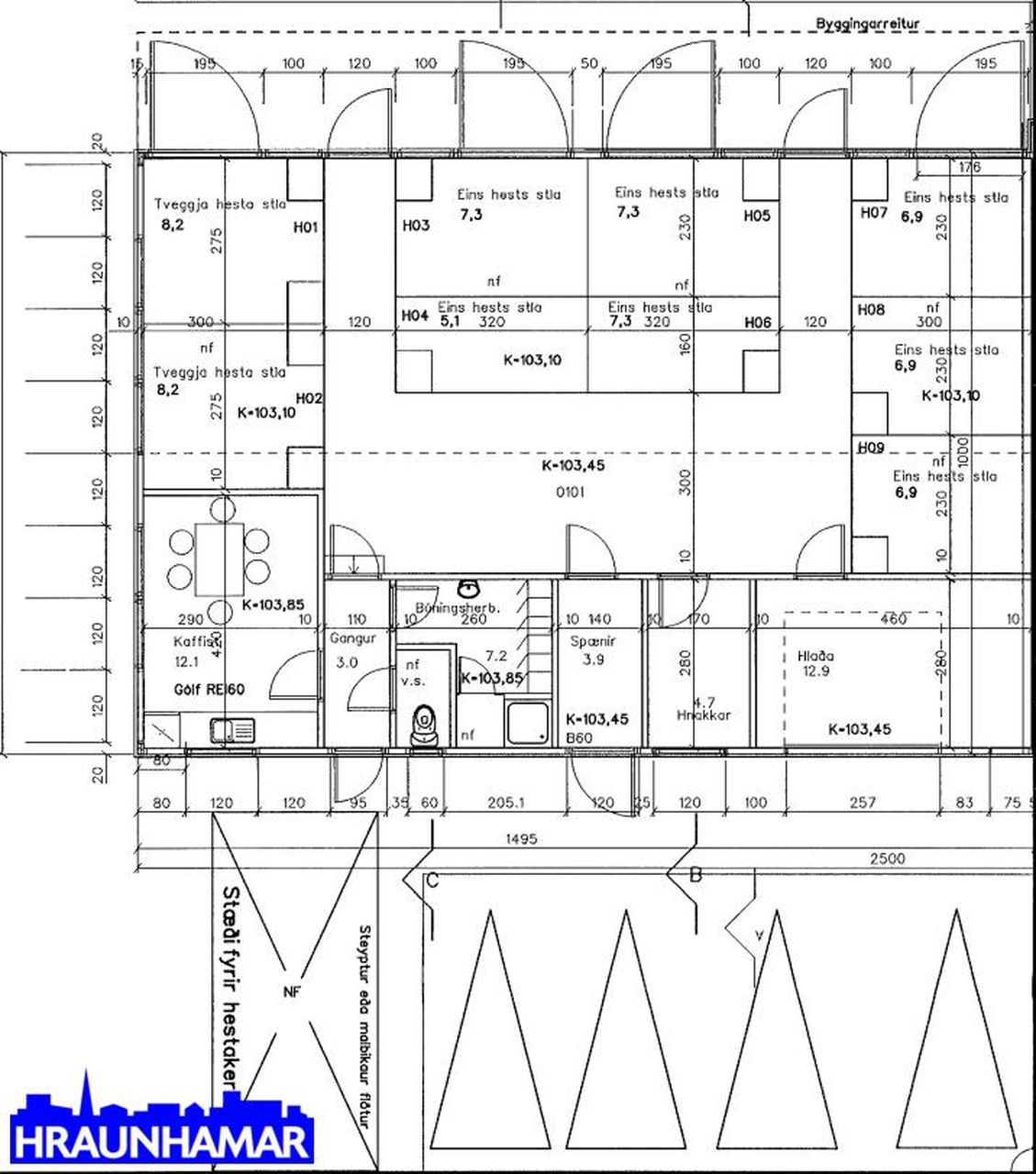
Hraunhamar fasteignasala kynnir: Virkilega flott og rúmgott 150 fm hesthús (parhús,stærri eignarhlutinn) sem er innréttað fyrir 10-16 hesta í rúmgóðum stíum á þessum vinsæla stað á svæði hestamannafélagsins Spretts Kópavogi.
Heitt vatn/Hitaveita. Stutt í reiðhöll ofl.
Eignin skiptist m.a. þannig: Rúmgott hesthúsið innréttað í dag fyrir 16 hesta í rúmgóðum eins og tveggja hesta stíum. Rúmgóð hlaða með innk.dyrum. Góð hnakka og reyðtygjageymsla, góð búningsaðstaða sem og góð snyrting, björt og rúmgóð kaffistofa.
Gerðið er afar rúmgott, fínt aðgengi er að húsinu. Húsið er velmokað. (4 innk.dyr) Góð lofthæð er í húsinu, vandaðar stíur, plast og ryðfrítt efni í milligerðum og frontum. Hiti í gólfum og ofnar líka. Fín vifta er í hesthúsinu. Rúmgóðir fóðurgangar, gott pláss til að leggja á og járna. Stórt sérgerði. Allt sér.
Þetta er góð og áhugaverð eign til að skoða frekar.
Nánari uppl. gefur Helgi Jón Harðarson sölustjóri s. 893-2233 helgi@hraunhamar.is og
Glódís Helgadóttir lgf. s. 659-0510 glodis@hraunhamar.is
Skoðunarskylda:
Í lögum um fasteignakaup nr. 40/2002 er kveðið á um ríka skoðunarskyldu kaupenda á fasteignum. Hraunhamar fasteignasala vill benda væntanlegum kaupendum á að kynna sér vel ástand fasteigna fyrir kauptilboðsgerð og ef þurfa þykir að leita til sérfræðinga fyrir nánari ástandsskoðun.
Gjöld sem kaupandi þarf að standa straum af vegna kaupanna:
1. Stimpilgjald af kaupsamningi, fyrstu kaup (0,4%), almenn kaup (0,8%), lögaðilar (1,6%) af heildarfasteignamati.
2. Þinglýsingargjald af kaupsamningi, veðskuldabréfi, mögulegu veðleyfi o.fl. – kr. 2.700 kr. af hverju skjali.
3. Lántökugjald lánastofnunar er skv. verðskrá viðkomandi lánastofnunar.
4. Umsýslugjald til fasteignasölu skv. þjónustusamningi
Hraunhamar er elsta fasteignasala Hafnarfjarðar, stofnuð 1983.
Hraunhamar, í fararbroddi í rúm 40 ár. – Hraunhamar.is
Smelltu hér til að fá frítt söluverðmat.
Smelltu hér til að fá söluyfirlit sent strax.

Dýpri greining á Húsasjá
- Verðmat fasteignar
- Sölusaga og verðþróun
- Samanburður við sambærilegar eignir
















