Breiðhella 12
01-0102 · 221 Hafnarfirði



375 dagar á sölu
165.000.000 kr
292.191 kr/m²
Hraunhamar fasteignasala og Helgi Jón Harðarson sölustj.s.893-2233 helgi@hraunhamar.is kynna: Atvinnuhúsnæði á besta stað við Breiðhellu 12 Hfj (rétt hjá Sorpu Hfj)
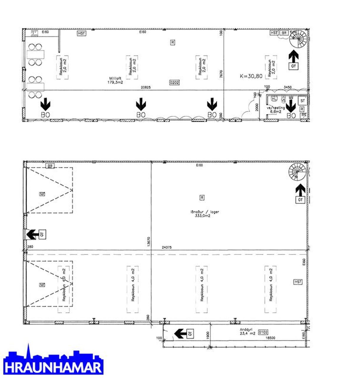
Húsnæðið skráð hjá þjóðskrá samtals 564.7 fm þar af er rúmgott milliloft, ca 190 fm. (kaffistofa/skrifstofur ofl.) Mikil lofthæð og tvennar háar innk.dyr. Rúmgóð lóð. Í húsnæðinu hefur verið rekið m.a. verkstæði fyrir rútur ofl. Rúmgóð lóð.
Eignin skiptist m.a. þannig: Verkstæðisalur/lagersalur með mikilli lofthæð, tvennar innk.dyr. Móttaka, skrifstofu/aðstaða, kaffistofa,snyrting ofl.
Efri Hæð: Nokkur herbergi/skrifstofur , kaffistofa, snyrting/baðherbergi, eldhús/kaffistofa ofl.
Áhugaverð eign til að skoða m.a. vegna staðsetningar,stærðar,lofthæðar, möguleika ofl.
Lokaúttekt er í vinnslu.
Nánari uppl. gefur Helgi Jón Harðarson sölustj. s. 893-2233 helgi@hraunhamar.is og
Hlynur Halldórsson lgf. s. 698-2603 hlynur@hraunhamar.is
Skoðunarskylda:
Í lögum um fasteignakaup nr. 40/2002 er kveðið á um ríka skoðunarskyldu kaupenda á fasteignum. Hraunhamar fasteignasala vill benda væntanlegum kaupendum á að kynna sér vel ástand fasteigna fyrir kauptilboðsgerð og ef þurfa þykir að leita til sérfræðinga fyrir nánari ástandsskoðun.
Gjöld sem kaupandi þarf að standa straum af vegna kaupanna:
1. Stimpilgjald af kaupsamningi, fyrstu kaup (0,4%), almenn kaup (0,8%), lögaðilar (1,6%) af heildarfasteignamati.
2. Þinglýsingargjald af kaupsamningi, veðskuldabréfi, mögulegu veðleyfi o.fl. – kr. 2.700 kr. af hverju skjali.
3. Lántökugjald lánastofnunar er skv. verðskrá viðkomandi lánastofnunar.
4. Umsýslugjald til fasteignasölu skv. þjónustusamningi
Hraunhamar er elsta fasteignasala Hafnarfjarðar, stofnuð 1983.
Hraunhamar, í fararbroddi í rúm 40 ár. – Hraunhamar.is
Smelltu hér til að fá frítt söluverðmat.
Smelltu hér til að fá söluyfirlit sent strax.

Dýpri greining á Húsasjá
- Verðmat fasteignar
- Sölusaga og verðþróun
- Samanburður sambærilegra eigna


































