Hraunvegur 33
01-0101 · 851 Hellu



633 dagar á sölu
53.900.000 kr
669.565 kr/m²
Betri Stofan Borgartúni, Guðbjörg í síma 899 5533 og Jason Kristinn í síma 775 1515 kynna: Sérlega fallegt og vandað 80,5 fm sumar/heilsárshús í 851 Landsveit.
Húsið stendur á 13.000 fm eignarlóð (1,3 hektari) þaðan sem óhindrað útsýni er m.a. að Búrfelli, Heklu og Eyjafjallajökli.
Einstök staðsetning, mikil fjallasýn og nálægð við hálendi Íslands. Um það bil 80 mín akstur frá Reykjavík.
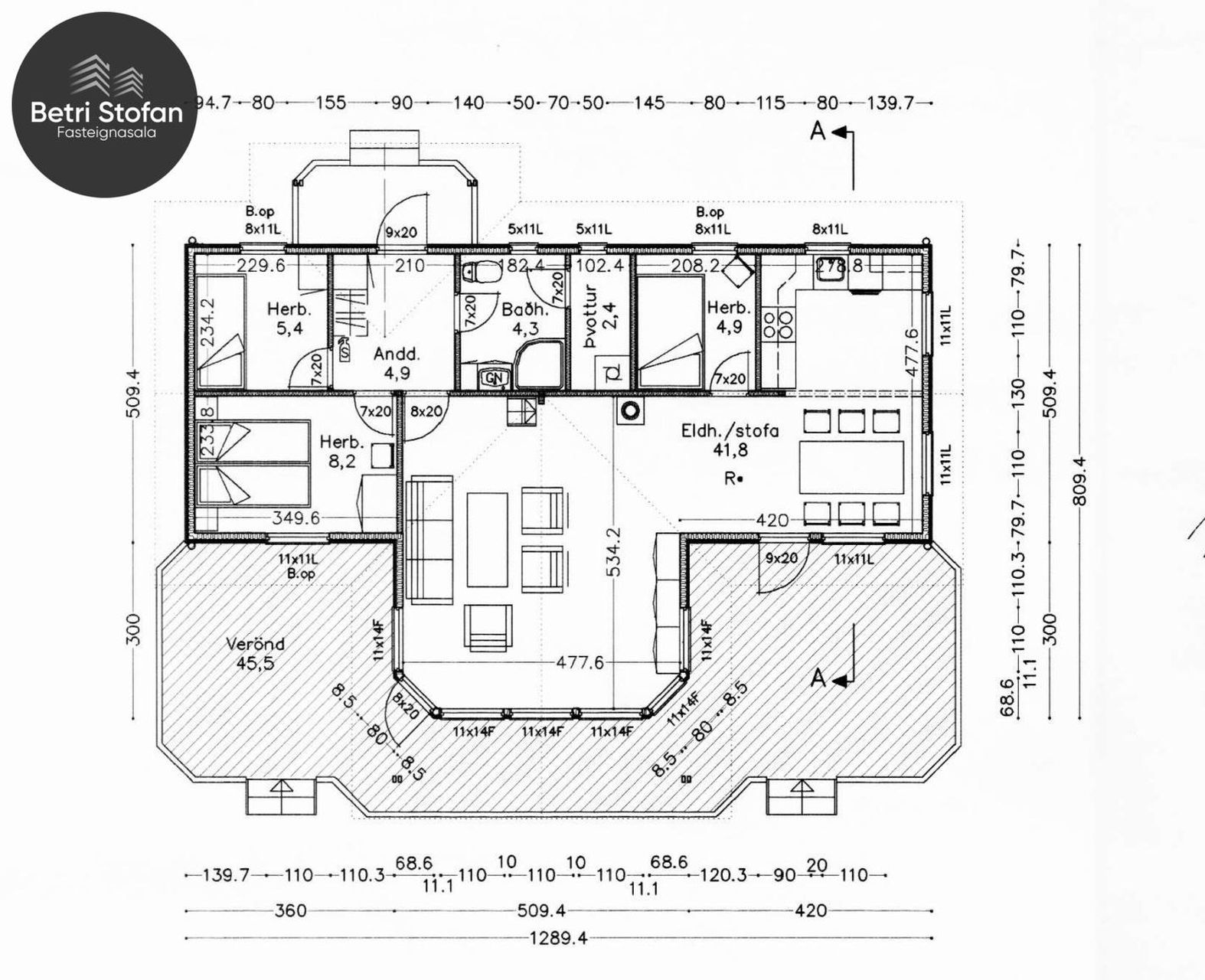
Eignin er samtals 80,5 fm. og skiptist í forstofu, stofu, borðstofu, eldhús, 3 svefnherbergi, svefnloft, baðherbergi og þvottahús. að auki er geymsluskúr á lóðinni.
Nánari lýsing:
Anddyri: Rúmgott anddyri með góðu fatahengi og skápum. Flísar á gólfi.
Stofa, borðstofa og eldhús tengjast og mynda gott alrými. Parket á gólfi og gólfhiti.
Stofa er rúmgóð með útgengi út á pall, mikil lofthæð er í stofu. Úr borðstofu er einnig útgengi út á pall.
í eldhúsi er falleg innrétting, innbyggð uppþvottavél er í innréttingu.
Hjónaherbergi er með skáp parketi á gólfi og gólfhita.
Tvö önnur svefnherbergi eru í húsinu, annað með fataskáp. Parket á gólfi og gólfhiti.
Svefnloft er yfir stórum hluta hússins og er gluggi á gafli.
Baðherbergi flísalagt, góður sturtuklefi, vegghengt salerni og hiti í gólfi. Gluggi með opnanlegu fagi.
Þvottahús er inn af baðherbergi, hiti í gólfi og gluggi með opnanlegu fagi.
Stór timburpallur umlykur húsið sem er vandað timburhús er stendur á steyptum grunni og -plötu. Á palli er rafmagnspottur sem notaður hefur verið árið um kring.
Gólfhiti er í öllum rýmum hússins og hitastýring í hverju rými fyrir sig.
Húsið er norskt einingarhús byggt árið 2008 og stendur á 1,3 hektara eignarlóð.
Landið er kjarri vaxið og býður upp á mikla útivist, merktar gönguleiðir eru á svæðinu og má m.a. ganga að Ytri Rangá.
Aðrar náttúruperlur svo sem Landmannalaugar, Hrafntinnusker og Veiðivötn eru skammt frá.
Leiðarlýsing: Keyrt Þjóðveg 1 frá Reykjavík, og beygt til vinstri við ÓB bensínstöð við Vegamót, vegur 26, Landvegur, og beygt er til hægri (Farvegur) rétt áður en komið er til Hótel Leirubakki
Nánari upplýsingar:
Guðbjörg Guðmundsdóttir löggiltur fasteignasali s. 899 5533 gudbjorg@betristofan.is
Jason Kristinn Ólafsson s. 7751515 löggiltur fasteignasali, jason@betristofan.is
Gjöld sem kaupandi þarf að standa straum af ef að kaupum verður:
1. Stimpilgjald af fasteignamati fasteignar er 0.8%, en 0,4% fyrir fyrstu kaup og 1,6% fyrir lögaðila.
2. Þinglýsingargjald: kaupsamningi, skuldabréfi, veðleyfi, afsali o.s.frv. er kr. 3.800 af hverju skjali.
3. Lántökukostnaður samkvæmt verðskrá viðkomandi lánastofnunar.
4. Umsýslugjald til fasteignasölu skv. gjaldskrá.
Skoðunarskylda kaupanda:
Í lögum um fasteignakaup nr. 40/2002 er kveðið á um ríka skoðunarskyldu kaupenda á fasteignum. Betri Stofan fasteignasala bendir væntanlegum kaupendum á að kynna sér vel ástand fasteigna við skoðun og fyrir tilboðsgerð og ef þurfa þykir að leita til sérfræðinga um nánari ástandsskoðun.

Dýpri greining á Húsasjá
- Verðmat fasteignar
- Sölusaga og verðþróun
- Samanburður sambærilegra eigna















































