Þverártún 17
01-0101 · 861 Hvolsvelli



170 dagar á sölu
39.900.000 kr
927.907 kr/m²
RE/MAX og Sigrún Matthea lgf., kynna: Falleg og björt eign í Fljótshlíð stutt frá flugvellinum í Múlakoti, Þverártún 17 Rangárþing eystra.
Eign sem nýtist allt árið og er á góðum stað í Fljótshlíðinni, eign sem vert er að skoða og er vel staðsett með tilliti til ýmissar útivistar og ferðalaga.
Viltu fá söluyfirlit sent strax opna hér
Upplýsingar um eignina veitir Sigrún Matthea lgf., í síma 695-3502 eða á netf: sms@remax.is
Stutt að fara á Hvolsvöll og sækja ýmsa þjónustu ma sundlaug, apótek og matvöruverslanir Lava Center Sögusetrið og á Hellishóla í golf.
Útsýni er frá sumarhúsinu ma. inní Þórsmörk á Eyjafjallajökul Stóra Dímon og fleiri náttúruperlur í Fljótshlíðinni.
Fjarlægð frá Reykjavík: 118 km. og aksturstími ca. 1 1/2 klst.
Keyrður er þjóðvegur 1 á Hvolsvöll í gegnum Hvolsvöll og til vinstri inn á veg 261 Fljótshlíðarvegur.
Fljótshlíðarvegur keyrður að og inn á veg 250 Vík Dímonarveg og fyrsti afleggjari til vinstri.
ATH. Fjarlægð frá Landeyjarhöfn er ca. 20 mín aksturstími.
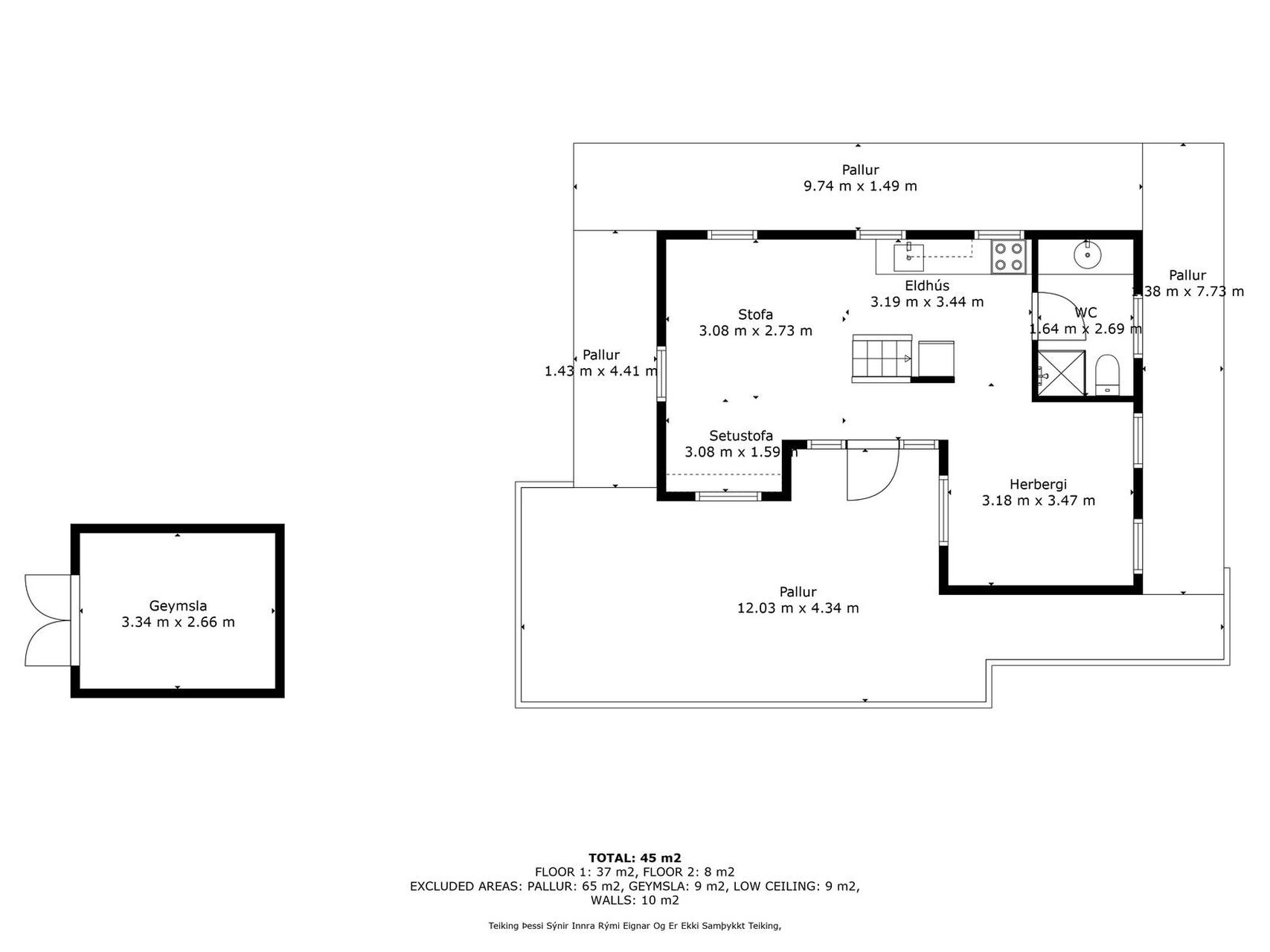
Stærð eignar er sumarhús 43m2 m/svefnlofti 19,9 m2 samtals 62,9 m2 einnig er geymsluskúr ca 10m2 sem er ekki talinn með í m2
Lýsing eignar:
Verönd er í kringum húsið
Kalt vatn og rafmagnskynding er í eign
Sumarhús og verönd eru klædd viðhaldsléttri klæðningu.
og skiptist í:
Anddyri: Fatahengi, harðparket á gólfi, panell á veggjum og í lofti.
Eldhús/ Borðstofa / Stofa: Eikarinnrétting neðri skápar helluborð, ofn, loft og veggir panelklædd, harðparket á gólfi.
Svefnherbergi: Fataskápur harðparket á gólfi, loft og veggir panelklædd.
Baðherbergi: Lítil innrétting m/handlaug sturtuklefi og salerni, flísar á gólfi, veggir og loft panelklædd.
Svefnloft: Harðparket á gólfi panell í lofti.
Geymsluskúr: Verkfæra - geymsluskúr.
Geymsluskúr er viðarklæddur
Stærð eignar samkv. þjóðskrá er 43 m2 og nánari skráning séreign sumarhús 41m2 + svefnloft 19,9m2
Frábær eign á góðum stað í Fljótshlíðinni með tilliti til ýmissar útivistar og ferðalaga.
Áætlað fasteignamat fyrir árið 2026 er kr. 26.050.000,-
Upplýsingar um eigina veitir Sigrún Matthea lgf. í síma 695-3502 eða á netfang sms@remax.is
Ert þú í söluhugleiðingum / fasteignahugleiðingum ? og ekki búinn að fá verðmat á eignina þína verðmat er án kostnaðar og skuldbindingar fyrir þig, vertu í sambandi við mig netf. sms@remax.is eða sími 695-3502
Viltu verðmat á eignina þína ? opna hér
Í lögum um fasteignakaup lög nr. 40/2002 er kveðið á um ríka skoðunarskyldu kaupenda á fasteignum. Vill Remax því skora á væntanlega kaupendur að kynna sér vel ástand fasteignar fyrir kauptilboðsgerð og leita til þar til bæra sérfræðinga um nánari skoðun ef þurfa þykir.
Forsendur söluyfirlits: Söluyfirlit er samið af fasteignasala í samræmi við ákvæði laga nr. 70/2015. Þær upplýsingar sem fram koma í söluyfirliti þessu eru sóttar í opinberar skrár, til seljanda sjálfs og eftir atvikum til húsfélags. Seljandi veitir upplýsingar um eign í samræmi við upplýsingaskyldu laga um fasteignakaup nr. 40/2002. Fasteignasali sannreynir að þær upplýsingar séu réttar með sjónskoðun á eigninni. Fasteignasali getur ekki fullyrt um ástand og eiginleika þeirra hluta fasteigna sem ekki eru aðgengilegir og sjást ekki berum augum, t.d. lagnir, dren, skólp og þak.
Gjöld sem kaupandi þarf að standa straum af vegna kaupanna:
1. Stimpilgjald af kaupsamningi - 0,8%(einstaklingar) 1.6% (lögaðilar) af heildarfasteignamati.
2. Þinglýsingargjald af kaupsamningi, veðskuldabréfi, mögulegu veðleyfi o.fl. - kr. 2.700 af hverju skjali.
3. Lántökugjald lánastofnunar - Nánari upplýsingar á heimasíðu lánastofnana.
4. Umsýslugjald til fasteignasölu kr. 69.900 mvsk.

Fáðu nýja innsýn á Húsasjá
- Verðmat fasteignar
- Sölusaga og verðþróun
- Samanburður sambærilegra eigna


























