Lundur 56
01-0101 · 200 Kópavogi



614 dagar á sölu
212.500.000 kr
913.586 kr/m²
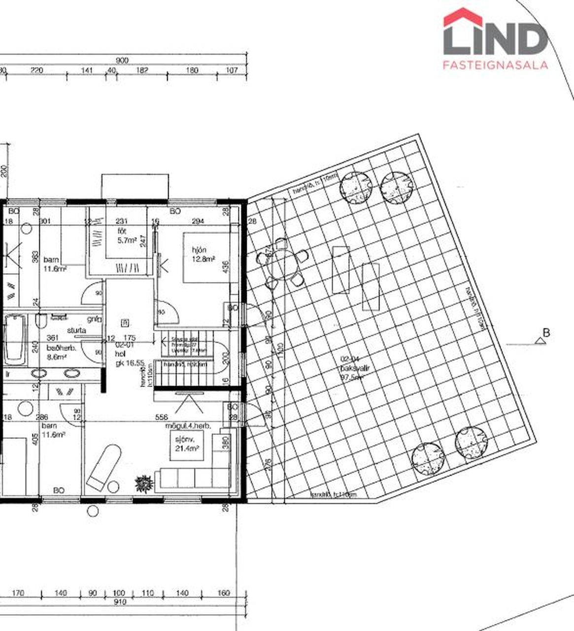
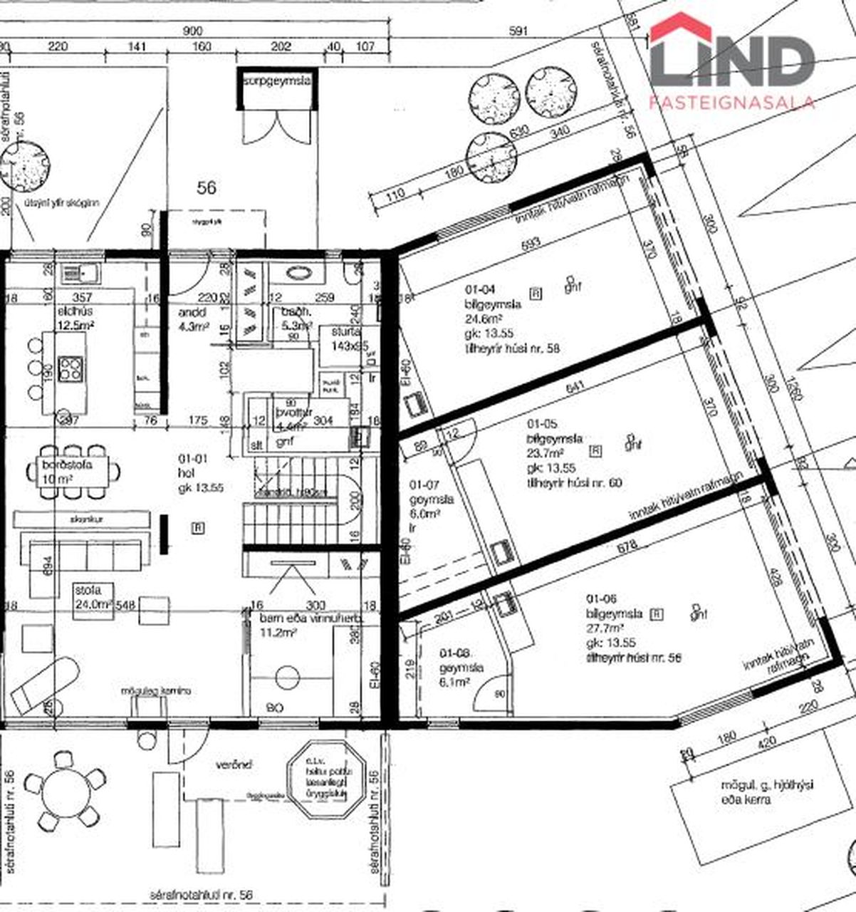
Hrafnkell Pálmi á LIND kynna þetta glæsilega endaraðhús á þessum einstaka og friðsæla stað neðst við skóglendið Kópavogsmegin í Fossvoginum. Eigninni fylgja um 100 fm. þaksvalir með útsýni til allra áttaHægt að bæta við svefnherbergi 4 með auðveldum hættiRúmgóður bílskúr (möguleiki á að gera innangengt). Sérsmíðaðar innréttingar teiknaðar af Hallgrími Friðgeirs Innanhússarkitekt.Stutt í góð útivistasvæði. Eigin er staðsett innst í botnlanga og mjög umferðalétt. Vandað hús byggt af Byggingarfelag Gunnars og Gylfa (BYGG)Verið er að gera stórt leik- og útivistasvæði norðan við húsið og verður m.a. komið fyrir púttvelli, æfingasvæði fyrir líkamsrækt á gervigrasi, gróðurbeði, niðurgrafið trampólín og leiktæki fyrir börn. Sjá teikningu með myndum.
BÓKAÐU SKOÐUN:
Hrafnkell P. H. Pálmason / hrafnkell@fastlind.is / 690 8236
Guðmundur Hallgrímsson / gudmundur@fastlind.is / 898 5115
Húsið skiptist í fallegt eldhús stofu með arni og útgengi á pall, sjónvarpsstofu, þrjú svefnherbergi, tvö baðherbergi, bílskúr og stórar þaksvalir. Möguleiki á að bæta við allt að tveim svefnherbergjum í viðbót.
Nánari lýsing:
Neðri hæð:
Forstofa með góðum skápum.
Baðherbergi með salerni innréttingu og sturtu.
Fallegt eldhús með stórri eyju, gaseldavél, tækjaskápur og innbyggð uppþvottavél.
Stofa / borðstofa með arin og útgangi á góðan pall.
Svefnherbergi með flísum á gólfi (*möguleiki á að hafa innangengt inn í bílskúr).
Þvottahús með innréttingu.
Efri hæð:
Stór sjónvarpsstofa með útgengi á stórar þaksvalir (möguleiki á að bæta við einu til tveim svefnherbergjum)
Rúmgott hjónaherbergi með útgengi á þaksvalir innaf heberginu er fataherbergi.
Svefnherbergi / heimaskrifstofa.
Baðherbergi með upphengdu salerni góðri innréttingu og stórri sturtu.
Þaksvalir eru stórar (um 100fm) með heitum potti.
Bílskúr: (31.9fm)
Er við hlið húss og er með geymslu innst bílastæði fyrir framan skúr fylgir eigninni sem og eitt annað einka stæði á lóð.
*Möguleiki á að hafa innangengt í bílksúrinn úr herbergi á jarðhæð.
Geymsla inn af bílskúr 7,7 fm.
Mjög falleg eign á friðsælum stað þar sem stutt er í alla helstu þjónustu og góð útivistasvæði.
Gjöld sem kaupandi þarf að standa straum af vegna kaupanna:
1. Stimpilgjald af kaupsamningi - 0,4% (fyrstu kaup), 0,8%(einstaklingar) 1.6% (lögaðilar) af heildarfasteignamati.
2. Lántökugjald af veðskuldabréfi mishátt milli lánastofnuna. Nánari upplýsingar á t.d. heimasíðu lánastofnana.
3. Þinglýsingargjald af kaupsamningi, veðskuldabréfi, mögulegu veðleyfi o.fl. - kr. 2.700 af hverju skjali.
4. Umsýslugjald til fasteignasölu 74.900,

Dýpri greining á Húsasjá
- Verðmat fasteignar
- Sölusaga og verðþróun
- Samanburður við sambærilegar eignir




























































