Lundur 66
01-0103 · 200 Kópavogi



292 dagar á sölu
225.000.000 kr
968.575 kr/m²
Eignamiðlun kynnir:
Afar fallegt og vel skipulagt endaraðhús með bílskúr á góðum stað í veðursældinni í Lundi í Kópavogi. Allur frágangur innanhúss er með vandaðasta hætti en Ingibjörg Agnes Jónasdóttir arkitekt sá um innanhússhönnun. Sérsmíðaðar innréttingar frá Poggenpohl, eldhústæki frá Liebherr og Miele, Gira ljósastjórnunarkerfi og innfelld blöndunartæki á baðherbergjum. Innihurðir og skápar eru sérsmíði frá Fagus. Allar innihurðir eru extra háar og niðurlímt, gegnheilt eikarparketið er lagt með fallegu chevron mynstri. Gólfhiti er í öllu húsinu og aukin lofthæð (2,7m). Hiti er í bílaplani og gangstétt. Byggingaraðili hússins er BYGG. Afar góð staðsetning þar sem stutt er í náttúruna og gönguleiðir í Fossvogsdalnum sem og í alla helstu þjónustu og stofnbrautir. Spennandi fjölskyldueign sem vert er að skoða.
Bókið skoðun: Lilja s. 649-3868 eða lilja@eignamidlun.is
**Sækja söluyfirlit**
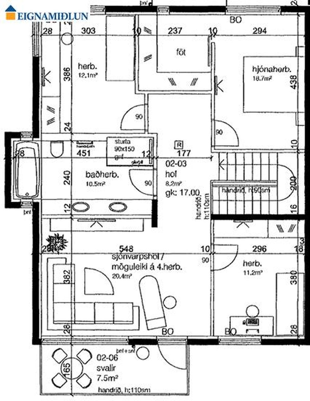
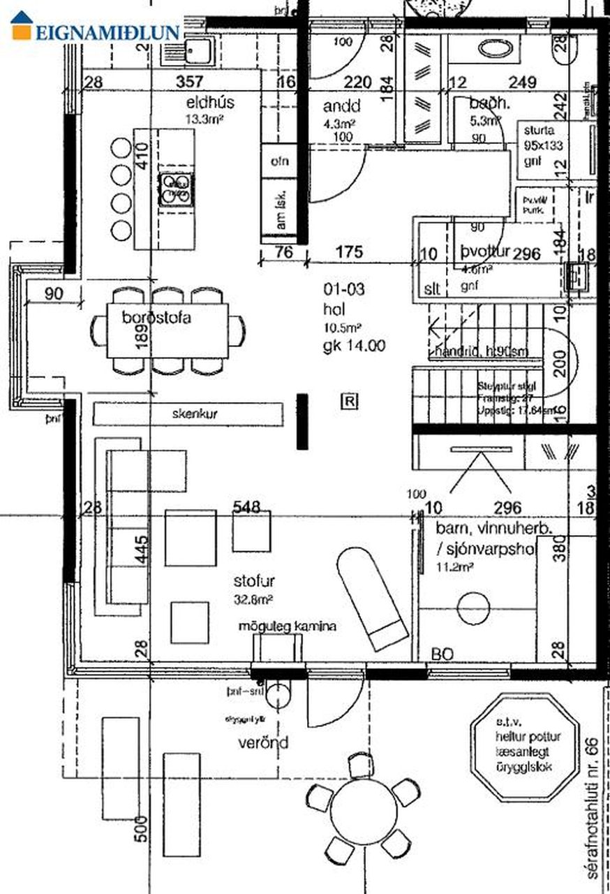
Eignin telur eldhús, tvær stofur, fjögur rúmgóð svefnherbergi, tvö baðherbergi, þvottahús og bílskúr.
Nánari lýsing eignar:
Neðri hæð:
Forstofa: Mjög rúmgóð með fallegum flísum á gólfi og góðu skápaplássi.
Eldhús: Vandaðar innréttingar frá Poggenpohl með miklu skápaplássi. Vegleg eyja er í miðju eldhússins með gashelluborði og háfi. Einstaklega falleg steinplata klæðir eyjuna. Tvöfaldur ofn í vinnuhæð, innbyggð uppþvottavél og tvöfaldur, innbyggður ísskápur frá Liebherr. Önnur tæki eru frá Miele. Vínkæli er haganlega komið fyrir undir eyju. Bjartur borðkrókur er í eldhúsi.
Borðstofa og stofa: Stórar og bjartar stofur með gólfsíðum gluggum og innbyggðum skápum frá Poggenpohl. Útgengi á stóran og sólríkan suðurpall með skjólveggjum. Lagnir fyrir heitan pott eru til staðar á palli.
Baðherbergi 1: Mjög fallegt, flísalagt baðherbergi með upphengdu salerni, stórri flísalagri sturtu, handklæðaofni og góðri innréttingu. Veglegur marmarinn í bæði sturtu og handlaug setur svip á rýmið. Innbyggð blöndunartæki eru á baðherbergi og góður, opnanlegur gluggi.
Þvottahús: Gott, flísalagt þvottahús með innréttingu og handklæðaofni.
Hol: Rúmgott hol er fyrir miðju neðri hæðar þar sem fallegur, parketlagður stigi með glerhandriði liggur upp á efri hæð hússins.
Efri hæð:
Gangur: Bjartur gangur er á efri hæðinni og útgengi á suðursvalir.
Hjónaherbergi: Mjög rúmgott og bjart með góðum gluggum og fataherbergi með veglegum innréttingum.
Baðherbergi 2: Stórt og mikið baðherbergi sem flísalagt er í hólf og gólf með upphengdu salerni, stórri flísalagri sturtu, veglegu baðkari og innréttingu með góðu skápaplássi. Marmarinn setur hér einnig svip sinn á rýmið. Innbyggð blöndunartæki eru á baðherbergi og góður, opnanlegur gluggi.
Svefnherbergi 2: Rúmgott og bjart með góðu skápaplássi.
Svefnherbergi 3: Rúmgott og bjart með góðu skápaplássi.
Svefnherbergi 4: Rúmgott og bjart með góðu skápaplássi. Skv. upprunalegu skipulagi var þar sjónvarpshol sem nú hefur verið breytt í herbergi.
Bílskúr: Góður 27,7 fm bílskúr er staðsettur fyrir enda raðhúsalengjunnar. Góð geymsla er inn af bílskúr. Rafdrifin bílskúrshurð og rafhleðslustöð.
Góð aðkoma er að húsinu og næg bílastæði. Hiti er í stétt fyrir framan bílskúr og gönguleið að og frá inngangi.
Fasteignamat 2026: 175.650.000
Nánari upplýsingar veitir:
Lilja Guðmundsdóttir löggiltur fasteignasali í síma 649-3868 eða lilja@eignamidlun.is***
Ábyrg þjónusta í áratugi. Eignamiðlun var stofnuð 1957 og er elsta starfandi fasteignasala á Íslandi. Reynsla, heiðarleiki og þekking á fasteignamarkaðnum eru grunnur að farsælum viðskiptum.
Eignamiðlun Grensásvegi 11, 108 Reykjavík - Opið frá kl. 9-17 mánudaga til fimmtudaga og 9-16 á föstudögum.
Heimasíða Eignamiðlunar
Eignamiðlun á Facebook

Fáðu nýja innsýn á Húsasjá
- Verðmat fasteignar
- Sölusaga og verðþróun
- Samanburður sambærilegra eigna












































