Gerðarbrunnur 17
01-0101 · 113 Reykjavík



206 dagar á sölu
159.800.000 kr
753.774 kr/m²
** HÉR GETUR ÞÚ BÓKAÐ SKOÐUN Á EIGNINA **
Þórdís Björk Davíðsdóttur löggiltur fasteignasali og RE/MAX kynna:
Einstaklega fallegt 6 herb. staðsteypt parhús á pöllum í Úlfarsárdal MEÐ MÖGULEIKA Á SÉRAFNOTARRÝMI / ÍBÚÐ á jarðhæð.
Eignin er sérlega fjölskylduvæn og er íþróttahús, sundlaug, leik- og grunnskóli í innan við 100 metra göngufæri og er einnig stutt í einstaklega fallegar gönguleiðir um Úlfarsárdal og upp Úlfarsfellið. Fallegt útsýni er yfir Úlfarsárdalinn og borgina.
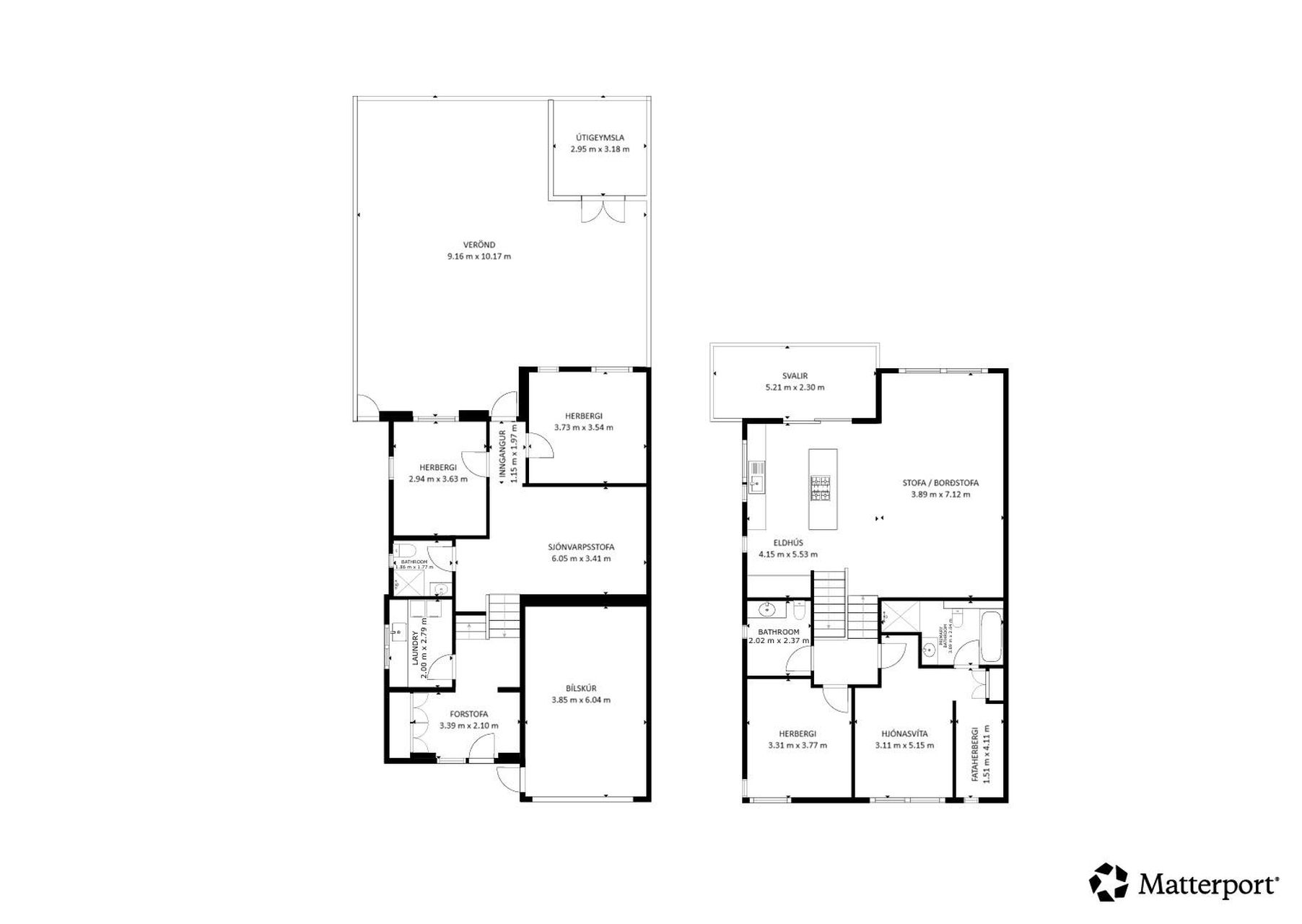
Samkvæmt skráningu HMS er birt flatarmál eignarinnar 212,0 fm sem skiptist í íbúðarhús 185,7 fm og bílskúr 26,3 fm.
SMELLTU HÉR og þú færð SÖLUYFIRLIT SAMSTUNDIS ásamt fleiri gögnum
SMELLTU HÉR - skoða eignina í - 3D MEÐ HÚSGÖGNUM
SMELLTU HÉR - skoða eignina í - 3D ÁN HÚSGAGNA
3D er = OPIÐ HÚS ÞEGAR ÞÉR HENTAR
Ekki þarf sérstakt forrit til að skoða eignina í 3D.
Húsið er á fjórum pöllum (lítur þó út fyrir að vera tveggja hæða hús), byggt 2020 og býður upp á ýmsa nýtingarmöguleika, m.a. að útbúa auka íbúð á neðstu hæð með sér inngangi. Steyptur stigi er á milli hæða og er endingargott Balta African teppi á stiga frá Parket og með 6mm mjúku undirlagi.Gólfefni á húsinu eru 12 mm harðparket frá Mystyle by Kronoflooring, gæðastuðull A+, utan votrýma og forstofu sem eru með flísar.Vandaðar hvítar innihurðar með innbyggðum þröskuldi frá BirgissonInnbyggð vönduð tæki í eldhúsi sem fylgja með eigninniÖll ljós fylgja með, þar á meðal eru yfir 35 innfelld led ljós með þrýstidimmurum.6 reykskynjari með lithium rafhlöðu sem endist í 10 ár
Nánari lýsing eignar:
-----
Pallur II - jarðhæð norðan megin
Komið er inn í húsið norðan megin í flísalagða forstofu með hvítum háglans og spegla fataskápum frá IKEA (2020)
Við forstofuna er þvottahúsið á vinstri hönd með hvítri innréttingu frá IKEA með skolvaski, tengi fyrir þvottavél og þurrkara, opnanlegu fagi á glugga og flísum á gólfi.
-----
Pallur III - Komið er upp nokkrar tröppur úr forstofu á pall III í eldhús, borðstofu og stofu.
Einstaklega rúmgott, bjart og opið rými með parketi á gólfi, mikilli lofthæð og stórum gluggum sem gera rýminu einstaklega vel til auk þess að vera með Akupanel hljóðdempandi þiljum við borðstofuna.
Í eldhúsinu er hvít háglans innrétting frá IKEA bæði veggföst og eyja. Gluggar eru á milli skápa og er opnanlegt fag á einum þeirra.
Innbyggður ísskápur, frystiskápur og uppþvottavél og eru að vönduðustu gerð frá IKEA des 2020. AEG combiofn/örbylgjuofn, AEG fjölkerfaofn m/sjálfhreinsibúnaði og hitamæli, 80 cm spanhelluborð er í eyju og er svart ílangt led ljós frá Pfaff yfir eyjunni.
Vandaður slitsterkur eldhúsvaskur sem má leggja heitt á, svart blöndunartæki með útdragandi krana keypt frá versluninni Dekkor.
Útgengt er úr eldhúsi á rúmgóðar útsýnis svalir til suðurs um gler-rennihurð.
----
Pallur IV
Herbergi I - Hjónasvítan er með innangengu baðherbergi og fataherbergi.
Á baðhergerginu er baðkar, walk-in sturta, upphengt salerni, innréttingu frá IKEA undir handlaug og flísar í hólf og gólf. Hljóðlát og öflug bluethooth vifta er á baðherbergi í hjónasvítu sem hægt er að stilla hraða og tíma í appi
Fataherbergið er með góðum innréttingum frá IKEA - hengi, skúffur, hillur og lokaðir skápar.
Herbergi II er einstaklega bjart og í góðri stærð. Horngluggi gefur fallega birtu og útsýni. Herbergið nýtist í dag sem heima-skrifstofa.
Baðherbergi er með upphengdu salerni, innréttingu undir handlaug, opnanlegu fagi á glugga, flísum á gólfi og upp á vegg. Tengi er fyrir sturtu og gert er ráð fyrir walk-in sturtu, en í dag vantar blöndunartæki, sturtuhaus og gler.
----
Pallur I - jarðhæð sunnan megin
Komið er niður í rúmgóða sjónvarpsstofuna með parketi á gólfi og hvítum skápum.
Baðherbergi með walk-in sturtu, upphengdu salerni, innréttingu undir handlaug og opnanlegu fagi á glugga.
Herbergi III og Herbergi IV eru bæði í góðri stærð með fataskápum og parket á gólfi.
Með litlum tilkostnaði er hægt að útbúa tæplega 50 m² sér afnota rými / íbúð fyrir unglinginn
Aukalega eru lagnir fyrir þvottavél undir stiga og vestan megin í sjónvarpsholi eru lagnir fyrir vatn sem eru tengd frárennsli inn á baðherbergi og því auðvelt að bæta við eldhúsinnréttingu á vegg.
-----
Innbyggður bílskúr er 26,3 fm með rafdrifinni hurð og sér inngangshurð á austurhlið. Gólfið er málað og er bílskúrinn allur hinn snyrtilegasti.
Öll inntök fyrir húsið er í bílskúrnum og eru heitt og kalt vatn. Hitalagnir eru í öllu bílaplaninu (sem tekur auðveldlega 3 bíla í stæði) og gangstétt fyrir framan það.
-----
Garður:
Lóðin er að mestu leiti afgirt. Sór skjólgóð, afgirt timburverönd er sunnan megin við húsið. Köld geymsla fyrir garðhúsgögn, áhöld og grill er á veröndinni. Lagnir fyrir heitan pott hafa verið lagðar meðfram húsinu og undir pallinn.
Hægt er að ganga meðfram húsinu austan megin og að fara niður meðfram pallinum, þar er hlið út í götuna fyrir neðan.
----
Um er að ræða einstaklega fallegt og rúmgott fjölskylduhús á frábærum stað í Úlfarsárdalnum sem þú ættir ekki að láta fara framhjá þér.
Sjón er sögu ríkari.
Allar nánari upplýsingar og bókun á skoðun veitir Þórdís Björk löggiltur fasteigna- og skipasali s: 862-1914 á milli kl. 10 og 18 alla virka daga eða á netfangið thordis@remax.is
Gjöld sem kaupandi þarf að standa straum af vegna kaupanna:
· Stimpilgjald af kaupsamningi - 0,8% (0,4% ef um fyrstu kaup er að ræða) og 1,6% (ef lögaðilar)af heildarfasteignamati.
· Þinglýsingargjald af kaupsamningi, veðskuldabréfi, veðleyfi og fl. 2.700 kr. af hverju skjali.
· Lántökugjald lánastofnunar - samkvæmt gjaldskrá lánastofnunar.
· Umsýslugjald til fasteignasölu 69.900 kr. m.vsk

Fáðu nýja innsýn á Húsasjá
- Verðmat fasteignar
- Sölusaga og verðþróun
- Samanburður sambærilegra eigna















































