Aflakór 8
01-0201 · 203 Kópavogi



198 dagar á sölu
330.000.000 kr
847.023 kr/m²
AFLAKÓR 8, glæsilegt 389,6 fm einbýlishús við Aflakór 8 í Kópavogi. Húsið sem er allt hið glæsilegasta er þó tvö fastanr og skiptist þannig: F231-1239 er 3ja herb. íbúð 95,6 fm með sérinngangi og F231-1240 er 294 fm sem skiptist þannig að íbúðarhluti á tveimur hæðum er 241,2 fm og bílskúr 52,8 fm eða samtals 294 fm. Stærri eignarhlutanum hefur svo verið skipt upp og er sér 3ja herb. íbúð niðri sem er 101,4 fm, með sérinngangi og aðalhæðin uppi er 139,8 fm og skiptist í mjög rúmgóðar stofur og borðstofa, sem er opið inn í eldhús, þvottarhúsi, baðherbergi, tvö herbergi með fataherbergi innaf hjónaherbergi, og svo rúmgóður 52,8 fm bílskúr.
Um er að ræða sannkallað fjölskyldu hús, sem er allt mjög vandað, í aðal íbúðinni hefur stigaopinu verið lokað, en steyptur stigi er til staðar á milli hæða.
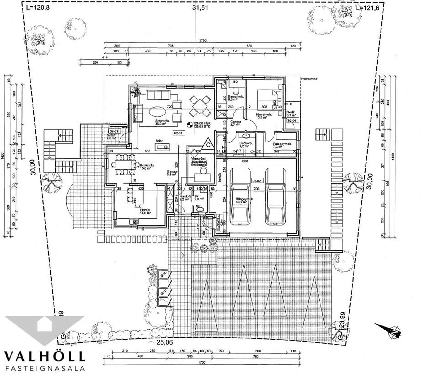
Nánara skipulag eignarinnar.
Aðalhæðin: (F231-1240, 294 fm) Gengið er beint inn af bílaplani, þar er komið inn í flísalagt anddyri með góðum skáp, innaf anddyri er flísalögð gestasnyrting, en er nýtt sem þvottarhús. Úr anddyri er komið inn í stórt rými sem eru stofur og borðstofa, fallegur arinn er í miðju rýminu, gólfsíðir gluggar eru á rýminu og fallegt harðparket á gólfi, stofurýmin eru að hluta opin inn í eldhús sem er mjög fallegt og með stórri innréttingu. Gengið er út á stórar svalir bæði úr stofu og eldhúsi. Svefnherbergisgangur er með tveimur herbergjum,inn af hjónaherbergi er fataherbergi. Baðherbergi er flísalagt með baðkari sturtu og innréttingu.
Sérinngangur er í bílskúrinn sem er mjög rúmgóður 52,8 fm með gluggum og epoxy á gólfum.
Séríbúð er í þessum eignarhluta á neðri hæð, þar sem stiganum hefur verið lokað og gólfefni sett yfir, auðvelt að breyta því til baka og tengja neðri hæðina aftur aðalhæaðinn. En sérinngangur er í íbúðina norðvestan meginn við húsið þar er gengið niður tröppur við lóðarmörk og komið inn í flísalagt anddyri. Þar eru tvö herbergi með harðparketi á gólfi, stofa með flísum á gólfi og eldhús hefur verið sett upp við hliðina á stiga, þar eru flísar á gólfum. Flísalagt baðherbergi með sturtu og þvottarhús með geymslu inn af, flísar á gólfum.
Séríbúðin (F231-1239, 95,6 fm) Sérinngangur er í íbúðina suð-vestan meginn við húsið, komið er inn í flísalagt anddyri með skáp, flísar á holi. Tvö herbergi eru í eigninni með harðparket á gólfum og skáp í stærra herbergjinu. Eldhús er opið inn í rúmgóða stofu, harðparket á gólfum. Baðherbergi með flísum á gólfi og veggjum, sturtu, baðkari og innréttingu, geymsla er inn af baðherbergi, bæði notað sem geymsla og þvottarhús.
Húsið er allt hið vandaðast, gólfhiti í öllu húsinu, steyptir stoðveggir sem mynda skjól við húsið, steyptar tröppur á báðum hliðum sem mynda sérinngang í báðar minni íbúðirnar og sérafnotaflötur við allar íbúðirnar. Allar innréttingar og tréverk er mjög vandað og arinn í miðju alrými efri hæðar er mjög flottur og er hægt að loka honum með gleri. Auðvelt er að gera breytingar á húsinu og tengja neðri hæð aðalíbúðar aftur við efri hæð, auk þess er hurðargat á milli fastanúmeranna. þó það sé í dag lokað af. Um er að ræða sannkallað fjölskylduhús á góðum stað í Kópavogi.
Um er að ræða mjög flott og vandað einbýlishús sem er á tveimur fastanúmerum.
Allar frekari uppl. um eignina veitir Heiðar Friðjónsson lögg. fasteignasali í s. 693-3356 og heidar@valholl.is Pantið skoðun hjá Heiðari.
Um skoðunar- og aðgæsluskyldu:
Í lögum um fasteignakaup nr. 40/2002 er kveðið á um ríka skoðunarskyldu kaupenda á fasteignum. Valhöll fasteignasala bendir væntanlegum kaupendum á að kynna sér vel ástand fasteigna við skoðun og fyrir tilboðsgerð og ef þurfa þykir að leita til sérfræðinga um nánari ástandsskoðun.
Forsendur söluyfirlits:
Söluyfirlit er samið af fasteignasala í samræmi við ákvæði laga nr. 70/2015. Þær upplýsingar sem fram koma í söluyfirliti þessu eru sóttar í opinberar skrár, til seljanda sjálfs og eftir atvikum til húsfélags. Seljandi veitir upplýsingar um eign í samræmi við upplýsingaskyldu laga um fasteignakaup nr. 40/2002. Fasteignasali sannreynir að þær upplýsingar séu réttar með sjónskoðun á eigninni. Fasteignasali getur ekki fullyrt um ástand og eiginleika þeirra hluta fasteigna sem ekki eru aðgengilegir og sjást ekki berum augum, t.d. lagnir, dren, skólp og þak.
Gjöld sem kaupandi þarf að standa straum af vegna kaupanna:
Stimpilgjald af kaupsamningi sem er hlutfall af fasteignamati. Stimpilgjald er 0,8% fyrir einstaklinga og 1,6% fyrir lögaðila.
Þinglýsingargjald af kaupsamningi, veðskuldabréfum, veðleyfum o.fl. Þinglýsingargjald er kr. 2.700,- fyrir hvert skjal.
Lántökugjald lánastofnunar. Um lántökugjald vísast í gjaldskrá viðkomandi lánveitanda.
Umsýsluþóknun fasteignasölu skv. gjaldskrá.
Ef um nýbyggingu er að ræða greiðir kaupandi skipulagsgjald, 0,3% af brunabótamáti, þegar það er lagt á.

Dýpri greining á Húsasjá
- Verðmat fasteignar
- Sölusaga og verðþróun
- Samanburður sambærilegra eigna





































