Tjarnarmói 15
02-0101 · 800 Selfossi



74 dagar á sölu
99.700.000 kr
673.194 kr/m²
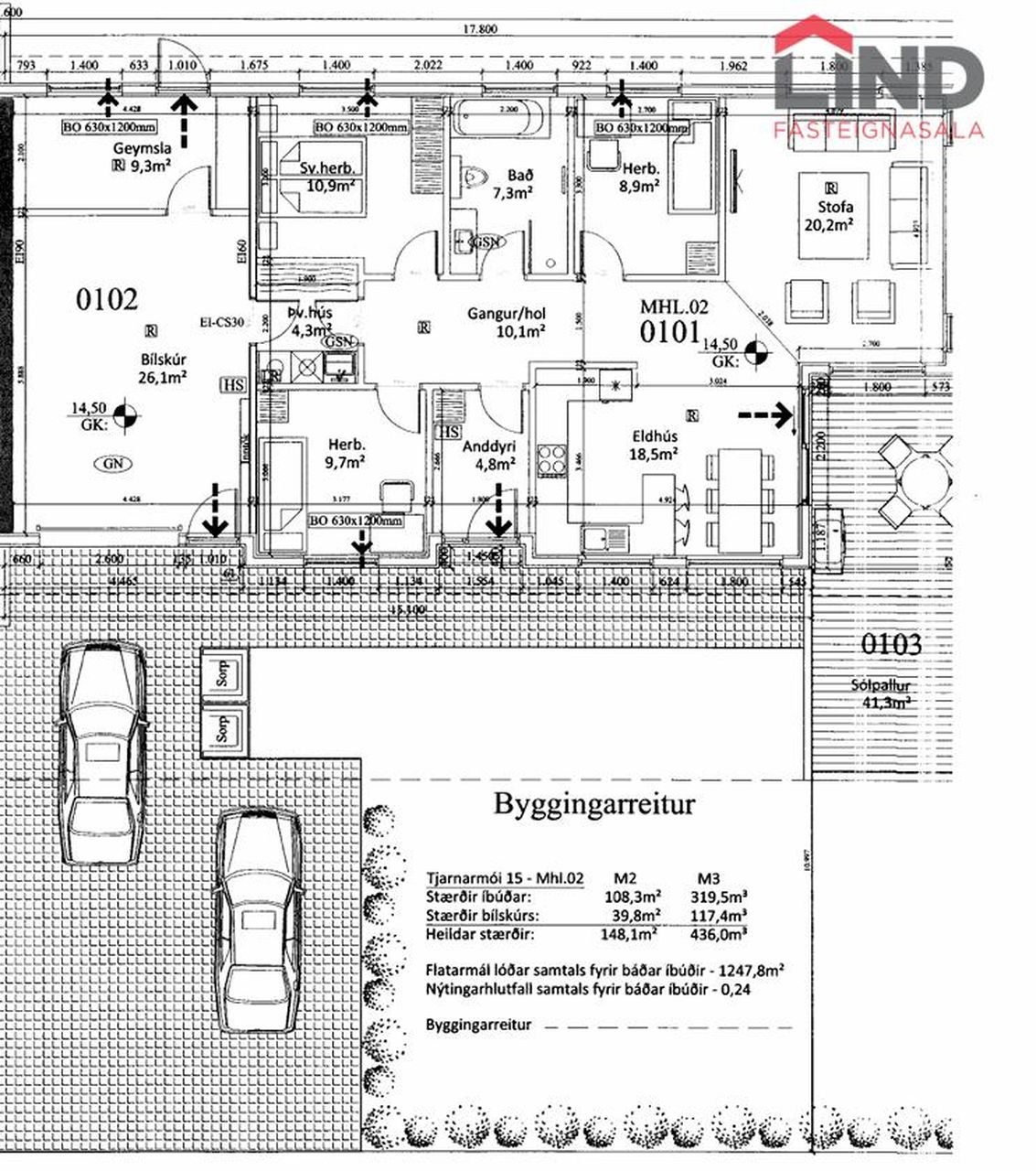
LIND fasteignasala og Helga Pálsdóttir, löggiltur fasteignasali kynnir virkilega fallegt og einstaklega vel skipulagt parhús á eftirsóttum stað í Hagalandi á Selfossi. Húsið er timburhús, klætt að utan með lituðu járni, litað járn er á þaki. Frá stofu er útgengi um rennihurð út á stóra timburverönd með skjólveggjum og heitum potti. Heildarstærð eignarinnar er 148,1 m2 og er sambyggður bílskúr 39,8 m2 þar af. Búið er að bæta við einu svefnherbergi í hluta af bílskúr. Að innan skiptist eignin í forstofu, baðherbergi, þvottahús, tvö svefnherbergi, stofu og eldhús, auk bílskúrs.
Nánari lýsing eignar
Forstofa með parketi á gólfi og fatahengi með hirslum undir.
Baðherbergið er flísalagt með fallegri innréttingu með vaski ofan á, walk-in sturta, frístandandi baðkar, opnanlegur gluggi og handklæðaofn.
Stofa og eldhús eru í rúmgóðu opnu rými, parket er á gólfi og í eldhúsi er stór og falleg innrétting með innbyggðum ísskáp með frysti ásamt innbyggðri uppþvottavél, góð eyja sem hægt er að sitja við . Rennihurð út á verönd er í eldhúsi.
Stofa-borðstofa með parketi á gólfi , mjög rúmgóð.
Tvö svefnherbergi með parketi á gólfum og fataskápum í öðru þeirra.
Þvottahús með snyrtilegri innréttingu þar sem gert er ráð fyrir tækjum í vinnuhæð, skolvaski.
Bílskúr er með epoxy á gólfi og góðum opnum fataskápum ásamt sérsniðinni innréttingu . Búið er að stúka af þriðja svefnherbergið i hluta af bílskúr.
Helstu framkvæmdir síðustu tveggja ára.
* Nýir frontar á eldhúsinnréttingu
* Nýjar borðplötur á eldhúsinnréttingu
* Nýr bakaraofn
* Innbyggður ísskápur með frysti og uppþvottavél endurnýjuð
* Nýr vaskur og blöndunartæki í eldhúsi
* Nýir frontar á þvottahúsinnréttingu
* Bætt við fataskáp í hjónaherbergi
* Aukaherbergi útbúið í hluta af bílskúr
* Fataskápar settir upp í bílskúr ásamt snyrtilegri innréttingu
* Útigeymsla byggð úti í garði fyrir sláttuvél, úti dóti og þess háttar
Í göngufæri er nýlegur skóli og leikskóli ásamt þvi að stutt er í matvörubúð og alla almenna þjónustu. Lóðin er gróin og falleg. Í heildina er um að ræða mjög smekklegt parhús í rólegu hverfi á Selfossi. Allar upplýsingar um eignina veitir Helga Pálsdóttir fasteignasali í síma 822 2123 eða helga@fastlind.is

Dýpri greining á Húsasjá
- Verðmat fasteignar
- Sölusaga og verðþróun
- Samanburður við sambærilegar eignir




































