Stórikriki 59
01-0201 · 270 Mosfellsbæ



101 dagar á sölu
115.000.000 kr
279.737 kr/m²
Fasteignasala Mosfellsbæjar kynnir: Byggingaverkefni til sölu. Stórikriki 59-61 270 Mosfellsbær. Sökklar fullbúnir undir einingar undir tveggja hæða glæsilegt parhús á stórrihornlóð (903 m2.) í grónu hverfi í Mos.Stutt í alla helstu þjónustu.
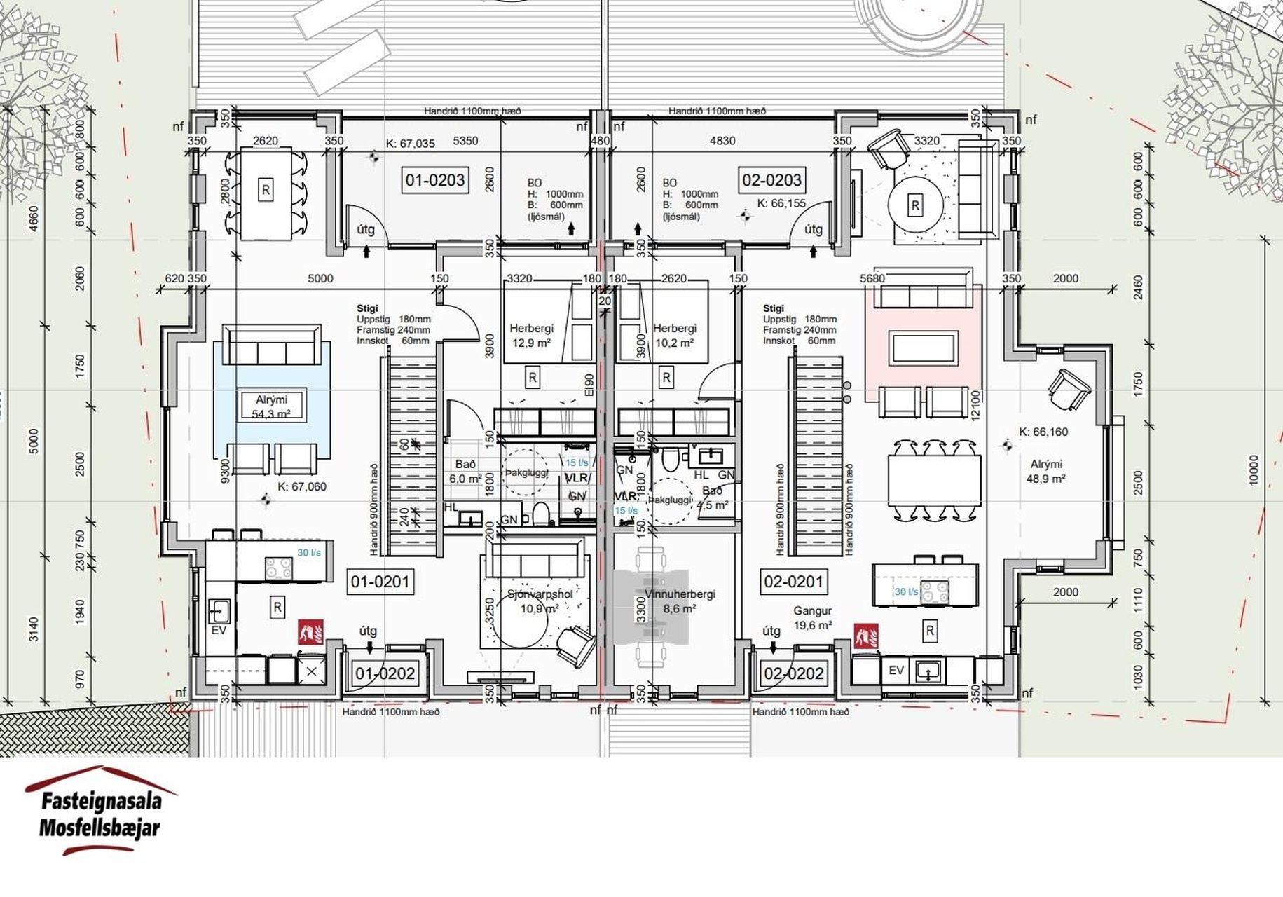
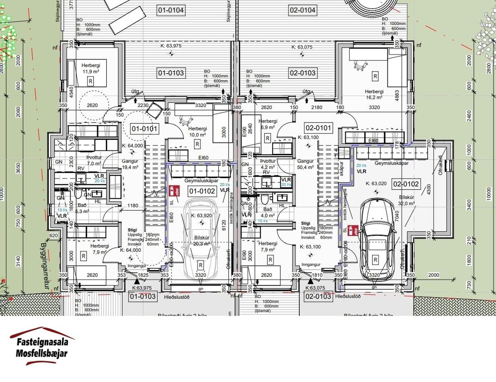
Um er að ræða parhús með innbyggðum bílskúrum við Stórakrika 59-61 í Mosfellsbæ. Stórikriki 59. er teiknað 195.9 fm2 og Stórikriki 61. 215.2 fm2. Samtals 411,1 m2.
Öll gjöld eru greidd. Lóðar og gatnagerðagjald. Arkitektateikningar ásamt öllum sérteikningum.
Búið að semja við BM/Vallá (Smellin) um verð eininga.
Sökklar fullbúnir undir einingar með öllum lögnum í grunni - Einingar eru fullhannaðar ásamt rafmagni og tilbúnar til framleiðslu.
Smelltu hér til að fá söluyfirlitið sent
Húsið er afhent og skráð á byggingarstig B1 (Byggingarleyfi). Meistaraskipti: Kaupandi skal sjá um að fá nýja meistara að verkinu frá og með afhendingardegi.
Verð kr. 115.000.000,-
Einnig er hægt að kaupa húsin samkvæmt skilalýsingu seljanda tilbúnar til innréttinga á byggingarstigi B3. Afhending innan 12 mánaða frá kaupsamningi.
Stórikriki 59 - Verð 150.000.000 kr
Stórikriki 61 - Verð 160.000.000 kr.
Einnig er hægt að kaupa framkvæmdina Tilbúna,fullbúna á byggingarstigi BS 4.
Um skoðunar- og aðgæsluskyldu:
Í lögum um fasteignakaup nr. 40/2002 er kveðið á um ríka skoðunarskyldu kaupenda á fasteignum. Fasteignasala Mosfellsbæjar skorar því á væntanlega kaupendur að kynna sér vel ástand fasteigna fyrir kauptilboðsgerð og leita til þar til bærra sérfræðinga um nánari skoðun ef með þarf.
Forsendur söluyfirlits:
Söluyfirlit er samið af fasteignasala í samræmi við ákvæði laga nr. 70/2015. Þær upplýsingar sem fram koma í söluyfirliti þessu eru sóttar í opinberar skrár, til seljanda sjálfs og eftir atvikum til húsfélags. Seljandi veitir upplýsingar um eign í samræmi við upplýsingaskyldu laga um fasteignakaup nr. 40/2002. Fasteignasali sannreynir að þær upplýsingar séu réttar með sjónskoðun á eigninni.
Fasteignasali getur ekki fullyrt um ástand og eiginleika þeirra hluta fasteigna sem ekki eru aðgengilegir og sjást ekki berum augum, t.d. lagnir, dren, skólp og þak.
Gjöld sem kaupandi þarf að greiða vegna kaupa:
1. Stimpilgjald af kaupsamningi sem er hlutfall af fasteignamati. Stimpilgjald er 0,8% fyrir einstaklinga (0,4% við fyrstu kaup) og 1,6% fyrir lögaðila.
2. Þinglýsingargjald af kaupsamningi, veðskuldabréfum, veðleyfum o.fl. Þinglýsingargjald er kr. 3.800,- fyrir hvert skjal.
3. Lántökugjald lánastofnunar - er skv. gjaldskrá viðkomandi lánastofnunar.
4. Umsýslugjald til fasteignasölu skv. kauptilboði.
5. Þegar um nýbyggingu er að ræða greiðir kaupandi skipulagsgjald, 0,3% af endanlegu brunabótamáti, þegar það er lagt á af viðkomandi sveitarfélagi.

Dýpri greining á Húsasjá
- Verðmat fasteignar
- Sölusaga og verðþróun
- Samanburður sambærilegra eigna







