Melás 7
01-0101 · 260 Reykjanesbæ



100 dagar á sölu
45.000.000 kr
147.155 kr/m²
Eignamiðlun Suðurnesja kynnir Melás 7, 260 Reykjanesbæ.
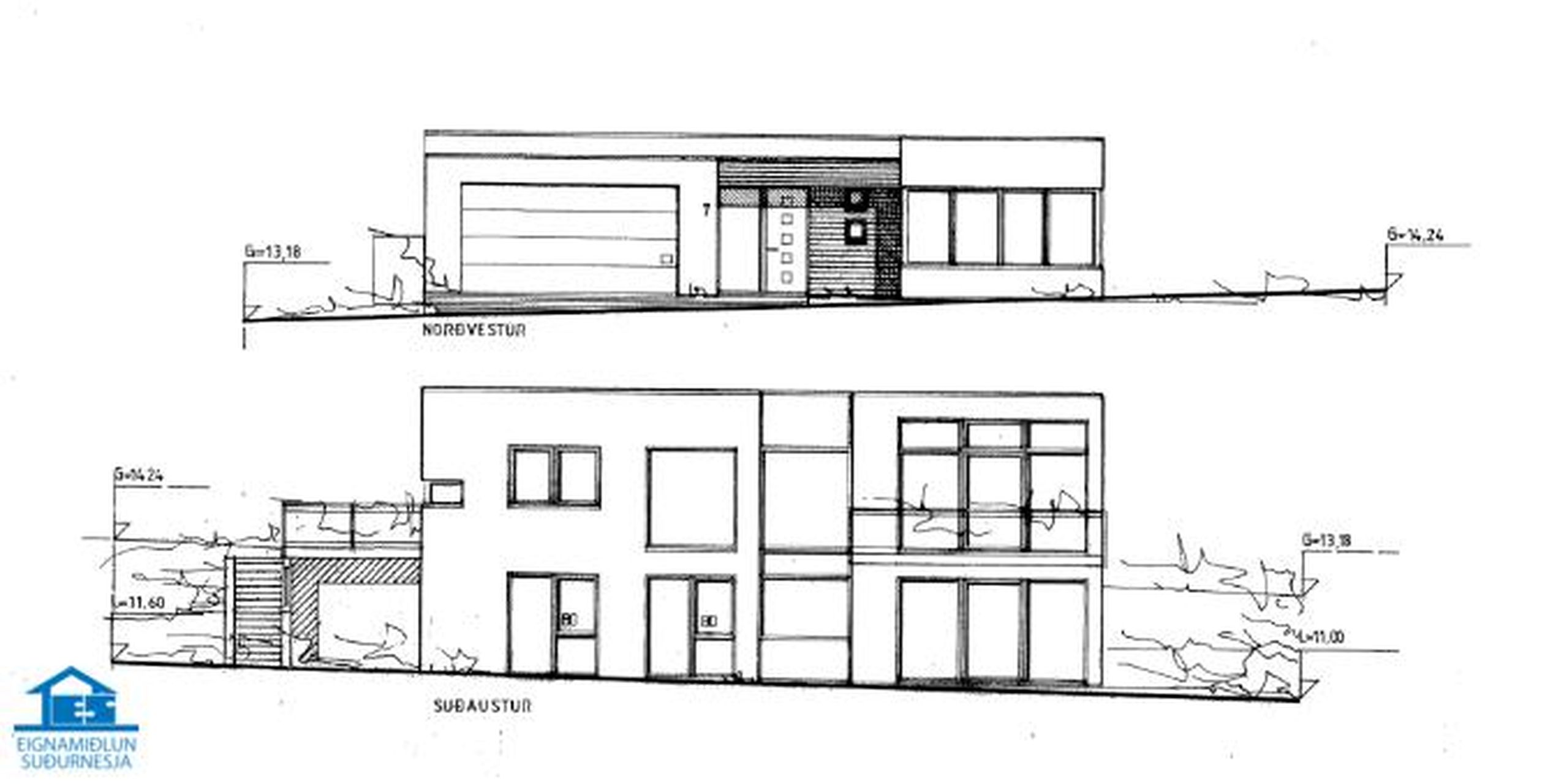
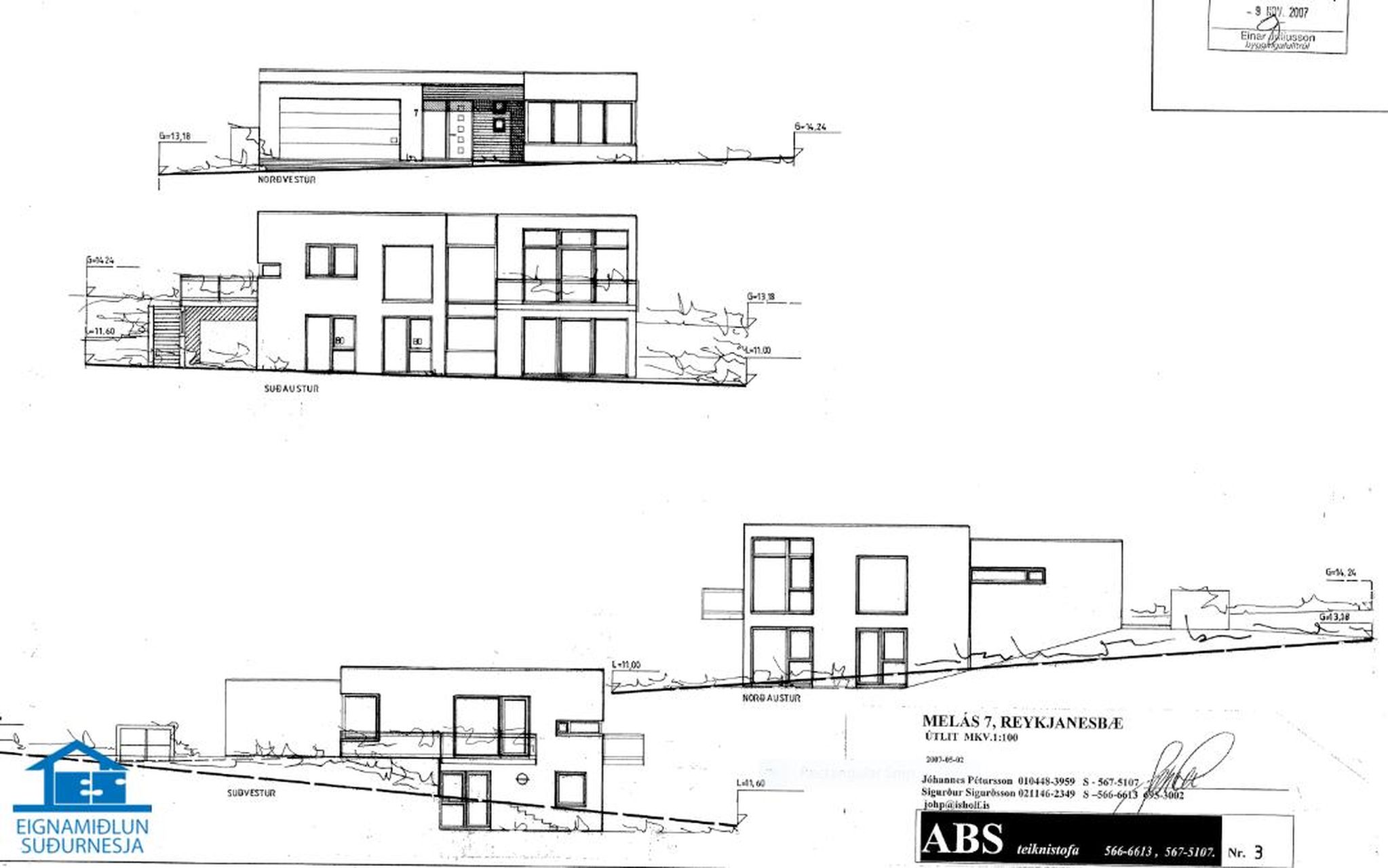
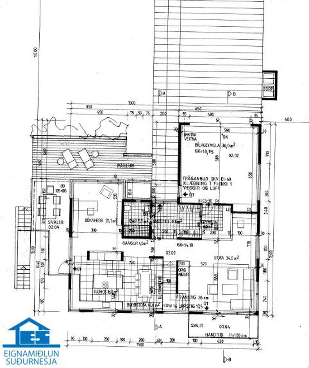
Um er að ræða virkilega vel skipulagða 305,8 m2 einbýlishús þar af er innbyggður 42,6 m2. bílgeymslu, á góðum stað í Njarðvík.
Húsið er í byggingu og er neðri hæðin tæplega fokheld. Allar teikningar nema raflagnateikningar fylgja. Húsið selst eins og það er.
Möguleiki er á aukaíbúð á neðri hæð.
Mjög falleg eign með mikla möguleika, frábær staðsetning og frábært útsýni.
Frábær staðsetning.
Áætlaður kostnaður við að gera húsið fokhelt að utan með gluggum er um 27 millj.
Allar nánari upplýsingar á skrifstofu okkar að Hafnargötu 50, Reykjanesbæ, og í síma 420-4050 eða á netfangið es@es.is
Gjöld sem kaupandi þarf að standa straum af vegna kaupa á fasteign:
1. Stimpilgjald af kaupsamningi - 0,8% af heildarfasteignamati fyrir einstaklinga (0,4% ef um er að ræða fyrstu kaup) og 1,6% fyrir lögaðila.
2. Þinglýsingargjald af kaupsamningi, veðskuldabréfi, mögulegu veðleyfi o.fl. - kr. 2.700 af hverju skjali.
3. Lántökugjald lánastofnunar – mismunandi á milli lánastofnana. Nánari upplýsingar á heimasíðum lánastofnana.
4. Umsýslugjald til fasteignasölu, sbr. kauptilboð.

Dýpri greining á Húsasjá
- Verðmat fasteignar
- Sölusaga og verðþróun
- Samanburður sambærilegra eigna






