Meltröð 2
01-0201 · 605 Akureyri



61 dagar á sölu
66.900.000 kr
689.691 kr/m²
Fasteignasalan Hvammur 466 1600
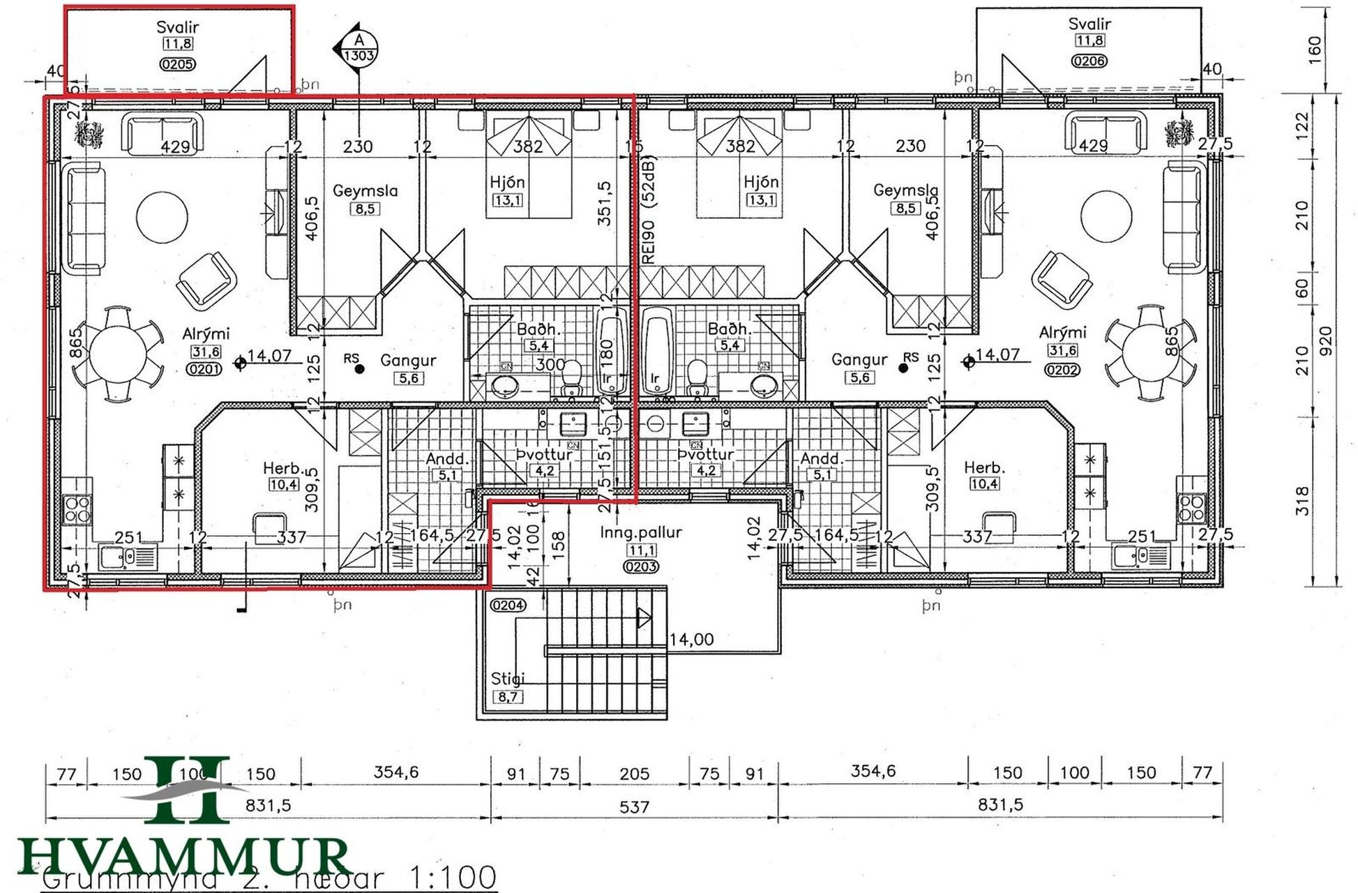
Meltröð 2 íbúð 201 - Vel skipulögð 3-4ra herbergja íbúð á efri hæð í fjórbýli á Hrafnagili í Eyjafjarðarsveit - stærð 97,0 m²
Eignin skiptist í forstofu, gang, eldhús, stofu, tvö svefnherbergi, geymslu sem nýtist sem svefnherbergi, baðherbergi og þvottahús.
Sameiginleg geymsla/tæknirými er á neðri hæðinni.
Forstofa er með flísum á gólfi og þreföldum skáp.
Þvottahús er inn af forstofu, þar eru flísar á gólfi, innrétting með skolvaska og opnanlegur gluggi.
Eldhús, tvílit innrétting, hvít og eik með flísum á milli skápa. Ísskápur og uppþvottavél fylgja með við sölu eignar. Borðkrókur með stórum glugga.
Stofa og eldhús eru í opnu rými þar sem ljóst plast parket er á gólfi. Í stofu eru gluggar til tveggja átta og hurð út á suður svalir, skráðar 11,8 m² að stærð.
Baðherbergi er með flísum á gólfi og hluta veggja og þiljum á veggjum í sturtu. Hvít innrétting, upphengt wc, walk-in sturta og handklæðaofn.
Svefnherbergin eru tvö, bæði með ljósu plast parketi á gólfi og eikarlituðum fataskápum. Stærð herbergja er skv. teikningum 10,4 og 13,1 m².
Geymsla er innréttuð sem svefnherbergi í dag með ljósu plast parketi á gólfi og þreföldum fataskáp. Stærð geymslu er skv. teikningum 8,5 m².
Annað
- Gólfhiti er í íbúðinni.
- Innfelld halogen lýsing er í lofti á ganginum, í stofu og eldhúsi.
- Húsið var klætt að utan árið 2017.
- Stigagangur var málaður árið 2025.
Um skoðunar- og aðgæsluskyldu:
Í lögum um fasteignakaup nr. 40/2002 er kveðið á um ríka skoðunarskyldu kaupenda á fasteignum. Fasteignasalan Hvammur skorar því á væntanlega kaupendur að kynna sér vel ástand fasteigna fyrir kauptilboðsgerð og leita til þar til bærra sérfræðinga um nánari skoðun ef með þarf.
Forsendur söluyfirlits:
Söluyfirlit er samið af fasteignasala í samræmi við ákvæði laga nr. 70/2015. Þær upplýsingar sem fram koma í söluyfirliti þessu eru sóttar í opinberar skrár, til seljanda sjálfs og eftir atvikum til húsfélags. Seljandi veitir upplýsingar um eign í samræmi við upplýsingaskyldu laga um fasteignakaup nr. 40/2002. Fasteignasali sannreynir að þær upplýsingar séu réttar með sjónskoðun á eigninni. Fasteignasali getur ekki fullyrt um ástand og eiginleika þeirra hluta fasteigna sem ekki eru aðgengilegir og sjást ekki berum augum, t.d. lagnir, dren, skólp og þak.

Fáðu nýja innsýn á Húsasjá
- Verðmat fasteignar
- Sölusaga og verðþróun
- Samanburður sambærilegra eigna














