Norðurhella 8
01-0106 · 221 Hafnarfirði



338 dagar á sölu
104.900.000 kr
317.494 kr/m²
Palsson Fasteignasala kynnir:
Til sölu 330,4 fm iðnaðar- og skrifstofuhúsnæði á tveimur hæðum – Norðurhella, Hafnarfjörður. Seljandi skoðar að taka ódýrari fasteign uppí.
Endabil í góðu iðnaðarhverfi á Völlunum með frábæra tengingu við stofnbrautir.
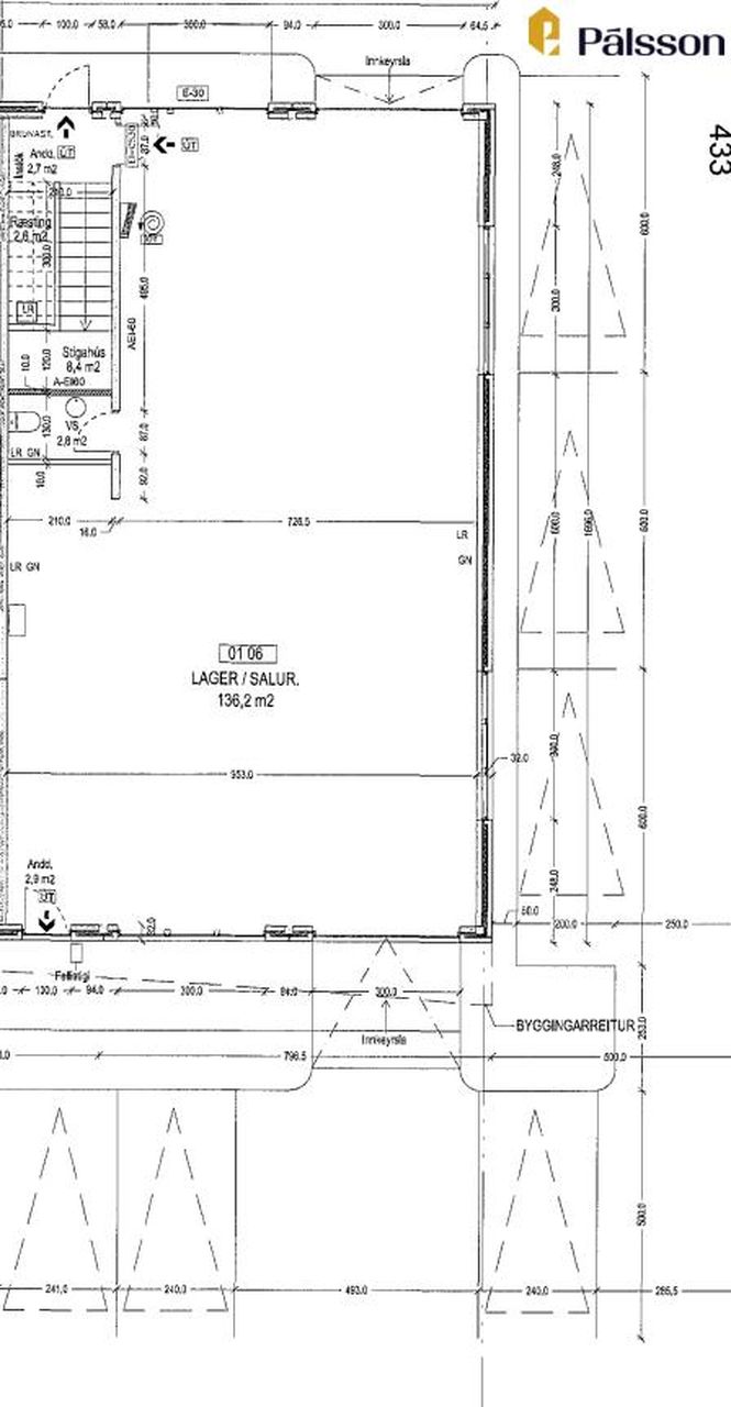
Jarðhæð: 169,6 fm iðnaðarrými með móttöku, opnum sal, tveimur geymslum og geymslulofti
Tvær stórar innkeyrsluhurðir sitthvoru megin í rýminu, hægt að keyra í gegn
Fremri hurð: 3,3 m há (op um 20 cm hærra) x 2,9 m breið
Aftari hurð: 2,9 m há x 2,9 m breið
Hæð rýmis um 3,7 m, lengd um 16,2 m og breidd um 7,2 m
Þriggja fasa rafmagn, hitablásari og ofnar, niðurföll í gólfum
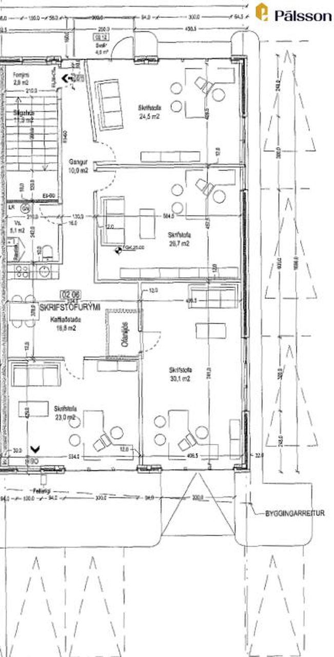
2. hæð
Fjögur rúmgóð rými, eldhús og baðherbergi með sturtu – skipulag sem opnar á margvíslega nýtingarmöguleika.
Húsnæðið er vel staðsett í iðnaðarhverfi á Völlunum í Hafnarfirði. Góð aðkoma og stutt í stofnbrautir.
VSK kvöð er á húsinu og tekur kaupandi yfir þá kvöð
Nánari upplýsingar veita:
Evert Guðmundsson Lgf. í síma nr 8233022 eða evert@palssonfasteignasala.is
Þorgeir Símonarson Lgf. í síma nr 6966580 eða thorgeir@palssonfasteignasala.is
www.eignavakt.is
www.verdmat.is
Góð ráð fyrir kaupendur / seljendur
Gjöld sem kaupandi þarf að standa straum af vegna kaupanna:
1. Stimpilgjald af kaupsamningi - 0.8% af heildarfasteignamati / 1.6% fyrir lögaðila. (0.4% við fyrstu kaup einstaklinga).
2. Þinglýsingagjald af kaupsamningi, veðskuldabréfi, veðleyfi o.fl.- kr. 3.800 af hverju skjali.
3. Lántökugjald lánastofnunar - samanber gjaldskrá viðkomandi lánastofnunar.
4. Umsýsluþóknun til fasteignasölu, sbr.kauptilboð.
Um skoðunarskyldu:
Í lögum um fasteignakaup nr. 40/2002 er kveðið á um ríka skoðunarskyldu kaupenda á fasteignum. Pálsson fasteignasala bendir væntanlegum kaupendum á að kynna sér vel ástand fasteigna við skoðun og fyrir tilboðsgerð og ef þurfa þykir að leita til sérfræðinga um nánari ástandsskoðun.

Fáðu nýja innsýn á Húsasjá
- Verðmat fasteignar
- Sölusaga og verðþróun
- Samanburður sambærilegra eigna
























