Úlfarsbraut 54
03-0101 · 113 Reykjavík



8 dagar á sölu
147.900.000 kr
810.855 kr/m²
Katla, löggiltur fasteignasali, og Háborg fasteignasala kynna:
Fallegt og vel skipulagt 6 herbergja raðhús á tveimur hæðum með innbyggðum bílskúr við Úlfarsbraut 54 í Reykjavík.
Um er að ræða rúmgóða og bjarta fjölskyldueign á barnvænum stað í Úlfarsárdal. Húsið er byggt árið 2015 og er alls 182,4 fm, þar af 26,0 fm innbyggður bílskúr. Eignin er vel skipulögð, með aukna lofthæð, gólfhita á neðri hæð og innfellda lýsingu sem setur fallegan svip á rýmin.
Neðri hæð myndar bjart og notalegt alrými með eldhúsi, stofu og borðstofu í opnu rými. Eldhús er með fallegri innréttingu og gott skápapláss. Útgengi er úr stofu á stóra afgirtða verönd til suðurs sem nýtist einstaklega vel til útiveru. Þar er einnig heitur pottur og er veröndin tengd bakgarði á skemmtilegan hátt.
Efri hæð er svefnálma fjölskyldunnar og þar eru fimm svefnherbergi, öll á efri hæð, ásamt sjónvarpsholi, baðherbergi og þvottaherbergi. Útgengi er úr einu svefnherbergjanna á svalir til suðurs sem snúa inn í bakgarð.
Lóðin er viðhaldslítil. Fyrir framan hús er hellulögð stétt með snjóbræðslu og innangengt er í bílskúr úr forstofu. Afgirt verönd til suðurs með heitum potti – einstaklega skemmtilegt útisvæði fyrir fjölskyldu og gesti.
Staðsetning eignarinnar er frábær fyrir fjölskyldur; stutt er í leikskóla, grunnskóla, verslun og þjónustu. Íþróttasvæði og sundlaug eru í næsta nágrenni auk þess sem útivistarsvæði Úlfarsárdalsins er í göngufæri.
Skráð stærð samkvæmt Þjóðskrá Íslands: 182,4 fm, þar af bílskúr 26,0 fm.
Allar nánari upplýsingar veitir: Katla Hanna Steed, löggiltur fasteignasali – 822 1661 – katla@haborg.is
Nánari lýsing
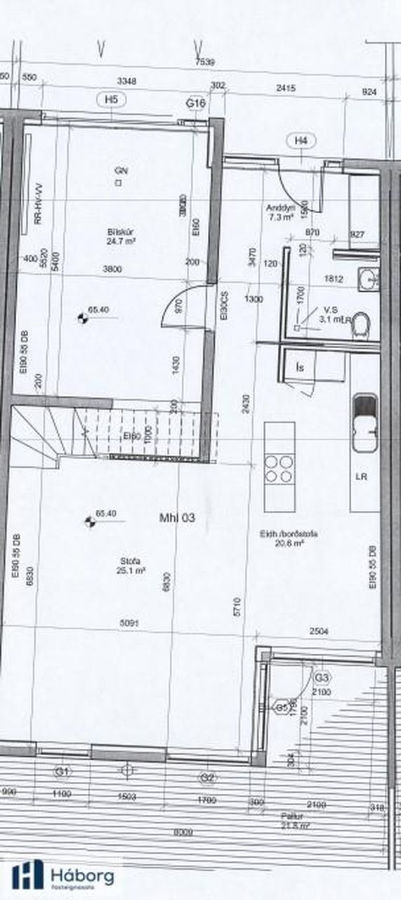
Neðri hæð
Forstofa / anddyri með flísum á gólfi og fataskáp. Innangengt í bílskúr.
Baðherbergi I er flísalagt í gólf og veggi, með upphengdu salerni, sturtu, innréttingu við vask með spegli og handklæðaofni.
Eldhús er með harðparketi á gólfi og fallegri innréttingu. Gott skápapláss. Eldhús er opið við stofu og borðstofu. Innfelld lýsing í loftum.
Stofa / borðstofa mynda bjart alrými með harðparketi á gólfi og gluggum til suðurs. Útgengi á stóra afgirtða verönd í bakgarði.
Verönd / bakgarður Afgirt verönd til suðurs með heitum potti – einstaklega skemmtilegt útisvæði fyrir fjölskyldu og gesti.
Bílskúr Innangengur bílskúr, 26,0 fm, málaður með epoxy.
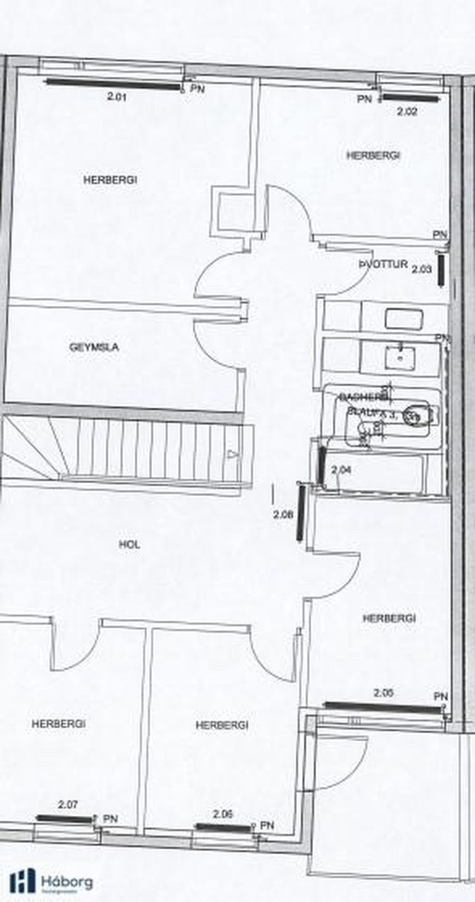
Efri hæð
Gengið er upp stiga á efri hæð.
Sjónvarpshol sem hentar vel sem fjölskyldurými.
Á efri hæð eru fimm svefnherbergi:
Hjónaherbergi með harðparketi á gólfi og aðgengi í fataherbergi.
Fataherbergi (rými sem áður var skráð sem geymsla) er í dag nýtt sem fataherbergi, gengið beint úr hjónaherbergi.
Svefnherbergi II–V eru fjögur svefnherbergi með harðparketi. Eitt herbergi er með útgengi á svalir til suðurs.
Baðherbergi II er flísalagt í gólf og veggi. Baðkar með sturtutækjum, upphengt salerni, innrétting við vask og útloftun.
Þvottaherbergi með tengjum fyrir þvottavél og þurrkara og útloftun.
Svalir til suðurs inn í bakgarð.

Fáðu nýja innsýn á Húsasjá
- Verðmat fasteignar
- Sölusaga og verðþróun
- Samanburður sambærilegra eigna





































