Urðarás 3
01-0101 · 260 Reykjanesbæ



650 dagar á sölu
19.600.000 kr
67.192 kr/m²
***Gatnagerðargjöld eru greidd***
Skeifan fasteignasala kynnir í einkasölu byggingarlóð við Urðarás 3, 260 Reykjanesbær, nánar tiltekið eign merkt 01-01, fastanúmer 229-8613 ásamt öllu því sem eigninni fylgir, þar með talið tilheyrandi lóðar og sameignarréttindi.
birt stærð 291.7 fm.
Fyrir nánari upplýsingar hafið samband við: Halldór Kristján Sigurðsson / löggiltur fasteignasali / S:618-9999 eða halldor@skeifan.is
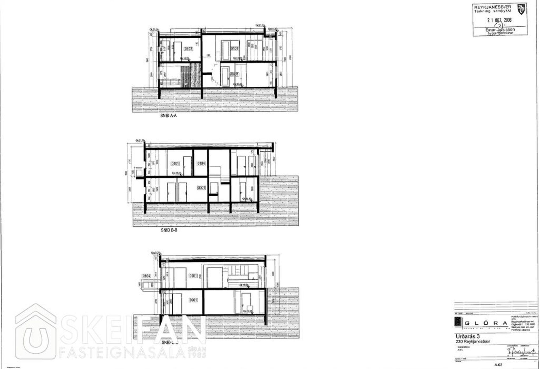
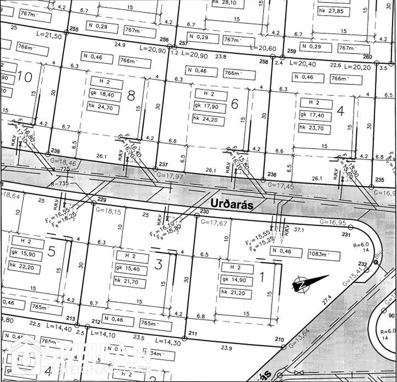
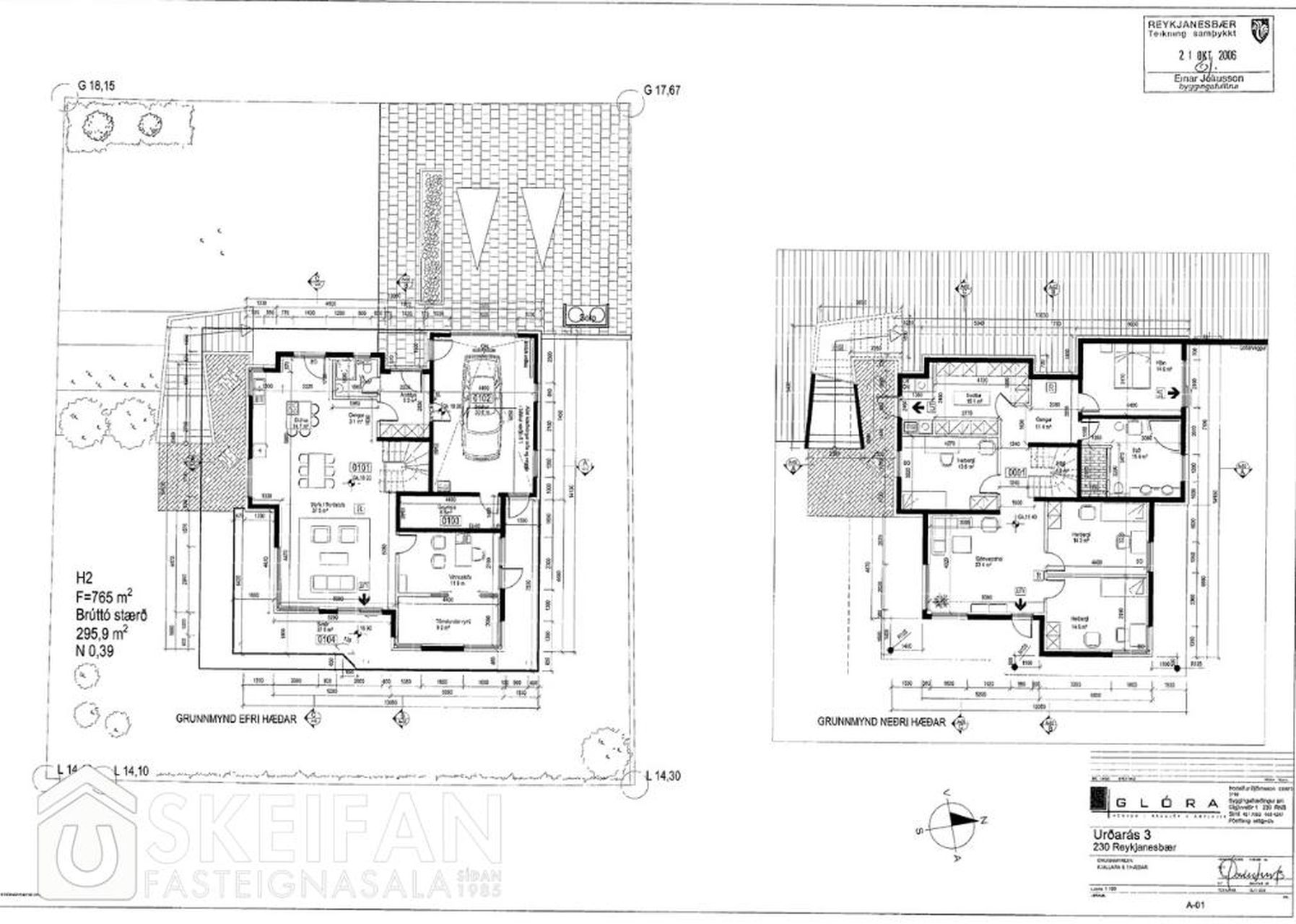
Lýsing: 765 fm byggingarlóð áætluð fyrir einbýlishús á tveimur hæðum.
Gert ráð fyrir 265.2 fm einbýlishúsi ásamt 35,3 fm bílskúr, heildarstærð hússins 291,7 fm. Búið er að jarðvegsskipta mögulega þarf að skoða.
Lóðin er tilbúin til afhendingar.
Fyrir nánari upplýsingar hafið samband við:
Halldór Kristján Sigurðsson / löggiltur fasteignasali / S:618-9999
Kostnaður kaupanda vegna kaupa: Stimpilgjald kaupsamnings einstaklinga er 0,8% og lögaðila 1,6% af fasteignamati eignar. Lántökugjald getur verið breytilegt eftir lánastofnunum, oftast 1%. Þinglýsingargjald er 2.700 kr fyrir hvert skjal. Þjónustu- og umsýslugjald til fasteignasölu skv. kauptilboði.
Um skoðunar- og aðgæsluskyldu: Í lögum um fasteignakaup nr. 40/2002 er kveðið á um ríka skoðunarskyldu kaupenda á fasteignum. ALDA fasteignasala bendir öllum sem hugsa sér að kaupa, að kynna sér vel ástand fasteignarinnar við skoðun fyrir tilboðsgerð og leita til sérfræðinga um nánari ástandsskoðun ef þörf þykir.
Forsendur söluyfirlits: Söluyfirlit er samið af fasteignasala í samræmi við ákvæði laga nr. 70/2015. Þær upplýsingar sem fram koma í söluyfirliti þessu eru sóttar í opinberar skrár, til seljanda sjálfs og eftir atvikum til húsfélags. Seljandi veitir upplýsingar um eign í samræmi við upplýsingaskyldu laga um fasteignakaup nr. 40/2002. Fasteignasali sannreynir að þær upplýsingar séu réttar með sjónskoðun á eigninni. Fasteignasali getur ekki fullyrt um ástand og eiginleika þeirra hluta fasteigna sem ekki eru aðgengilegir og sjást ekki berum augum, t.d. lagnir, dren, skólp og þak.
SKEIFAN SKILAR ÁRANGRI - SÍÐAN 1985
Skeifan fasteignasala | Suðurlandsbraut 46 | 108 Reykjavík | Opið frá kl. 9-17 mánudaga til föstudaga | www.skeifan.is
Skeifan á Facebook

Fáðu nýja innsýn á Húsasjá
- Verðmat fasteignar
- Sölusaga og verðþróun
- Samanburður sambærilegra eigna



