Fitjahraun 7
01-0101 · 851 Hellu



100 dagar á sölu
89.900.000 kr
779.705 kr/m²
NÁNARI UPPLÝSINGAR FÆRÐU HJÁ GUÐNÝJU ÞORSTEINS Í SÍMA 7715211 EÐA GUDNYTH@REMAX.IS
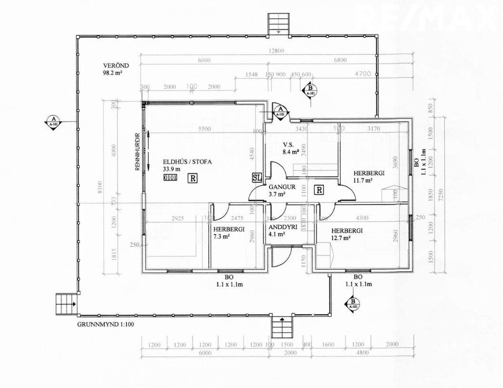
RE/MAX og GUÐNÝ ÞORSTEINS Löggiltur fasteignasali kynna í einkasölu: Fitjahraun 7 er sérlega falleg 1,5ha lóð á bökkum Ytri Rangár með einstöku útsýni yfir ánna, lóðin er fallega vaxin með trjágróðri. Á lóðinni er 95,6fm heilsárshús með steyptir plötu, 300fm sólpalli ásamt heitum potti, skjólveggir eru með hertu gleri, tröppur með lýsingu upp á pall. Húsið er klætt að utan með viðhaldsfrírri klæðningu. Vegur og bílastæði eru með bundnu slitlagi, stórt bílaplan. Einnig er 19,7fm gestahús ásamt 60fm niðurgröfnum bílskúr/vinnuskúr með rafmagni og vatni.
Eignin samanstendur af: Forstofu, 2 herbergjum, herbergisgangi, baðherbergi með þvottahúsi, stofu, eldhúsi ásamt borðstofu. Gestahúsi og stórum niðurgröfnum bílskúr/vinnuskúr.
Nánari lýsing:
Forstofa: Er með fatahengi, náttúru flísum á gólfi ásamt hita.
Eldhús: Er opið með góðu skúffu- og skápaplássi, tveimur innbyggðum skúffu ísskápum ásamt uppþvottavél. Gegnheilt parket á gólfi ásamt hita.
Sofa/borðstofa: Eru í rúmgóðu rými með gólfsíðum gluggum, stór rennihurð er út á sólpall. Gegnheilt parket á gólfi ásamt hita. Vönduð lýsing er í húsinu með fjarstýringu í stofu.
Sólpallur: Er 300fm að stærð með hertu gleri ásamt heitum og glerkúlu frá Jóni Bergs (sem þarf að setja upp eftir viðhald)
Baðherbergi/Þvottahús: Er rúmgott með þvottavél ásamt útgangi á sólpall. Náttúru flísar á gólfi ásamt hita.
Herbergi I: Er rúmgott með fataskápum.Gegnheilt parket á gólfi ásamt hita.
Herbergi II: Er með fataskápum. Gegnheilt parket á gólfi ásamt hita.
Gestahús: Er með parket á gólfum, lítilli eldhúsinnréttingu ásamt salerni með sturtu (á eftir að leggja loka hönd á frágang).
Bílskúr/Vinnuskúr: Er með hita og rafmagni, innkeyrsluhurð fyrir bíla.
Innbú getur fylgt með í kaupunum (fyrir utan persónulega muni).
Allar nánari upplýsingar og bókun á skoðun veitir Guðný Þorsteins löggiltur fasteigna- og skipasali s: 771-5211 eða á netfangið gudnyth@remax.is.
Í lögum um fasteignakaup nr. 40/2002 er kveðið á um ríka skoðunarskyldu kaupenda á fasteignum. Vill Re/Max því skora á væntanlega kaupendur að kynna sér vel ástand fasteigna fyrir kauptilboðsgerð og leita til þar til bærra sérfræðinga um nánari skoðun.
Gjöld sem kaupandi þarf að standa straum af vegna kaupanna:
1. Stimpilgjald af kaupsamningi - 0.8% af heildarfasteignamati / 1.6% fyrir lögaðila. (0.4% við fyrstu kaup einstaklinga).
2. Þinglýsingargjald af kaupsamningi, veðskuldabréfi, veðleyfi o.fl.- kr. 2.700 af hverju skjali.
3. Lántökugjald lánastofnunar - skv. gjaldskrá lánastofnunar
4. Umsýsluþóknun til fasteignasölu, 69.900 kr. m.vsk.

Dýpri greining á Húsasjá
- Verðmat fasteignar
- Sölusaga og verðþróun
- Samanburður við sambærilegar eignir


















































