Sómatún 7
01-0201 · 600 Akureyri



93 dagar á sölu
66.900.000 kr
689.691 kr/m²
Kasa fasteignir 461-2010.
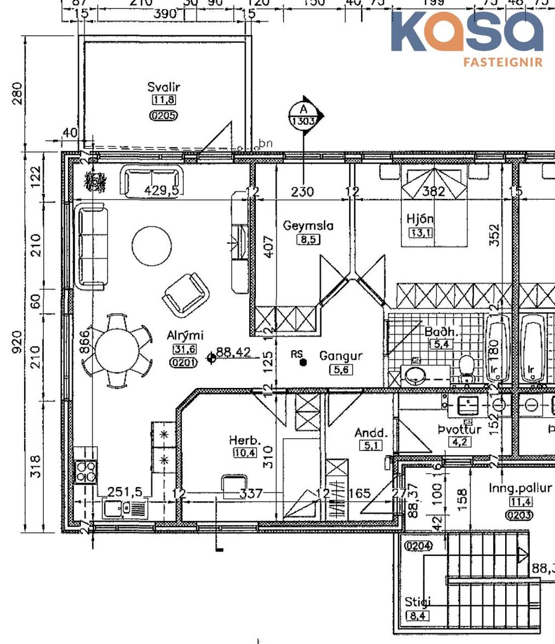
Sómatún 7 íbúð 201 - Björt og vel skipulögð 3-4 herbergja 97 fm íbúð á efri hæð í fjórbýli í Naustahverfi.
*** Eignin er laus til afhendingar við kaupsamning ***
Eignin skiptist í forstofu, gang, eldhús, stofu, þrjú svefnherbergi ( eitt skráð sem geymsla ), baðherbergi og þvottahús.
Forstofa er með flísum á gólfi og rúmgóðum fata skáp.
Eldhús er með nokkuð rúmgóðri innréttingu með plássi fyrir ísskáp og uppþvottavél, bakaraofn í vinnuhæð og ljósum flísum á milli skápa. Parket á gólfi og innfelld lýsing í lofti.
Stofa og eldhús eru saman í björtu opnu rými. Innfelld lýsing í lofti og parket á gólfi. Úr stofu er gengið út á rúmgóðar suður svalir með frábæru útsýni.
Svefnherbergin eru þrjú, öll eru þau með parketi á gólfi og fataskápum. Eitt herbergið er skráð sem geymsla á teikningu en nýtist vel sem herbergi.
Baðherbergið er með flísum á gólfi og hluta veggja, ljósri innréttingu, upphengdu salerni, handklæðaofni og baðkari með sturtugleri.
Þvottahús er inn af forstofu, það er með flísum á gólfi og bekk með stálvask.
- Eignin er öll nýmáluð að innan.
- Gólfhiti er í allri íbúðinni.
- Innfelld lýsing er í lofti í eldhúsi, stofu og á gangi.
- Uppþvottavél fylgir með við sölu.
- Eignin er laus til afhendingar við kaupsamning.
Nánari upplýsingar í síma 461-2010 eða kasa@kasafasteignir.is
------------
Skoðunarskylda:
Í lögum um fasteignakaup nr. 40/2002 er kveðið á um ríka skoðunarskyldu kaupenda á fasteignum. Kasa fasteignir benda væntanlegum kaupendum á að kynna sér vel ástand fasteigna fyrir kauptilboðsgerð og leita til þar til bærra sérfræðinga um nánari skoðun ef þurfa þykir.
Forsendur söluyfirlits:
Söluyfirlit er samið af fasteignasala í samræmi við ákvæði laga nr. 70/2015. Þær upplýsingar sem fram koma í söluyfirliti þessu eru sóttar í opinberar skrár, til seljanda sjálfs og eftir atvikum til húsfélags. Seljandi veitir upplýsingar um eign í samræmi við upplýsingaskyldu laga um fasteignakaup nr. 40/2002. Fasteignasali sannreynir að þær upplýsingar séu réttar með sjónskoðun á eigninni. Fasteignasali getur ekki fullyrt um ástand og eiginleika þeirra hluta fasteigna sem ekki eru aðgengilegir og sjást ekki berum augum, t.d. lagnir, dren, skólp og þak.
Gjöld sem kaupandi þarf að standa straum af vegna kaupanna:
1. Stimpilgjald sýslumanns af kaupsamningi, fyrstu kaup (0,4%), almenn kaup (0,8%), lögaðilar (1,6%) af heildarfasteignamati eignar.
2. Þinglýsingargjald af kaupsamningi, veðskuldabréfi, mögulegu veðleyfi o.fl. - kr. 2.700 af hverju skjali.
3. Lántökugjald lánastofnunar er skv. verðskrá viðkomandi lánastofnunar. Nánari upplýsingar á t.d. heimasíðu lánastofnana.
4. Umsýslugjald til fasteignasölu skv. kauptilboði.

Dýpri greining á Húsasjá
- Verðmat fasteignar
- Sölusaga og verðþróun
- Samanburður sambærilegra eigna





























