Norðurbakki 9B
01-0211 · 220 Hafnarfirði



172 dagar á sölu
114.900.000 kr
763.963 kr/m²
RE/MAX og Dagbjartur Willardsson löggiltur fasteignasali kynna Norðurbakka 9B - Fnr. 229-3307
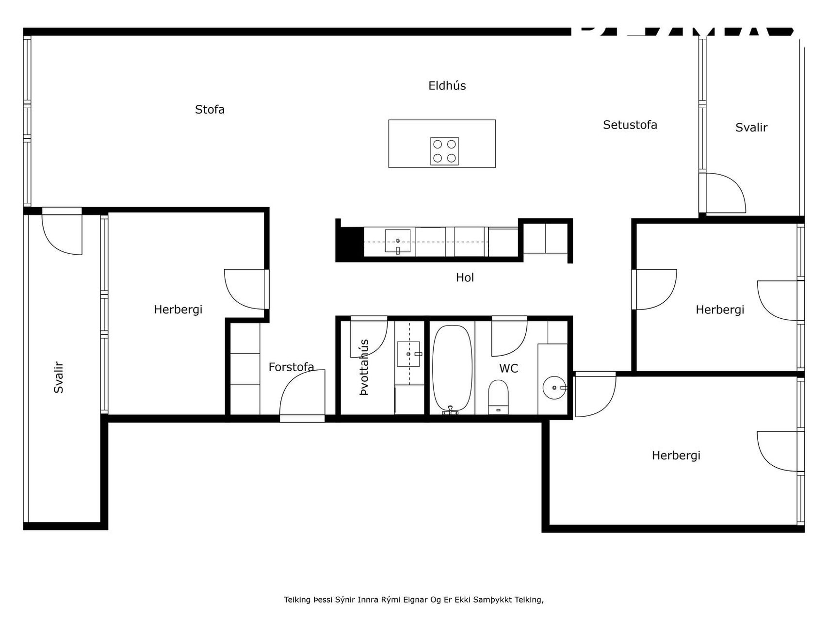
Eignin er skráð 150,4 fm 4 herbergja íbúð í fjölbýli og er skráð byggingarár 2015. Íbúðarhlutinn er skráður 131,8 fm og tvær geymslur 12,5 og 6,1 fm. Tvennar svalir eru í íbúðinni. Einnig gott að sjá skipulag íbúðarinnar á teikningu sem er þar sem ljósmyndirnar eru af eigninni. Skipta þarf út tveimur gluggum í íbúðinni en samkomulag liggur fyrir við verktakann sem byggði húsið um frágang á því. Einnig mun verktakinn laga þak á bílageymslu.
FÁÐU SENT SÖLUYFIRLIT YFIR EIGNINA HÉR.
Nánari lýsing:
Aðkoma: Malbikuð stæði eru fyrir framan húsið. Mjög snyrtileg sameign í stigaganginum.
Forstofa: Flísar á gólfi. Rúmgóður fataskápur.
Stofa/borðstofa: Parket á gólfi. Útgengt á svalir úr stofu.
Eldhús: Eikarinnrétting og eyja með Miele spansuðuhelluborði og háfi yfir. Miele bakstursofn í vinnuhæð sem er bæði með hefðbundna hitum og gufuhitun til eldunnar eða baksturs. Barstólar sem eru við eyjuna geta fylgt með.
Baðherbergi: Flísalagt í hólf og gólf. Eikarinnrétting með handlaug. Baðkar með sturtutæki og glerþili. Upphengt salerni.
Þvottahús: Flísar á gólfi. Góð hvít innrétting.
Svefnherbergi: Eru þrjú talsins og er parket á gólfum þeirra allra. Fataskápar eru í öllum herbergjunum.
Bílastæði: Merkt bílastæði er í kjallara og er rafhleðslustöð við stæðið. Önnur geymslan sem fylgir íbúðinni er beint inn af bílastæði.
Geymslur: Tvær geymslur fylgja með og er önnu þeirra 12,5 fm á geymslugangi en hin er fyrir aftan bílastæði og er skráð 6,1fm.
Lóð: Sameiginleg frágengin lóð.
Norðurbakki 9B er falleg fjögurra herbergja vönduð íbúð í fallegu fjölbýlishúsi. Á þaki hússins eru svo sameiginlegar þaksvalir með fallegu útsýni til allra átta. Frábær staðsetning og stutt i skóla og leikskóla og alla þjónustu í miðbænum. Útivistarmöguleikar í göngufæri. Kaffihús og bakarí á Norðurbakkanum og stutt í verslunarmiðstöðina Fjörð.
Allar nánari upplýsingar veitir:
Dagbjartur Willardsson lgf. í síma 861-7507 eða daddi@remax.is.
Ég býð upp á frítt söluverðmat á þinni eign og veiti góða og lipra þjónustu.
Gjöld sem kaupandi þarf að standa straum af vegna kaupanna:
1. Stimpilgjald af kaupsamningi - 0,8% af heildarfasteignamati hjá einstaklingum. (Sé um fyrstu kaup að ræða er stimpilgjald af kaupsamningi 0,4%)
2. Stimpilgjald af kaupsamningi - 1,6% af heildarfasteignamati hjá lögaðilum.
3. Þinglýsingagjald af kaupsamningi, veðskuldabréfi, veðleyfi o.fl. 2.700 kr. af hverju skjali.
4. Lántökugjald lánastofnunar - sjá heimasíður lánastofnanna.
5. Umsýslugjald til fasteignasölu 69.900. kr. m.vsk.
Í lögum um fasteignakaup nr. 40/2002 er kveðið á um ríka skoðunarskyldu kaupenda á fasteignum. Vill RE/MAX því skora á væntanlega kaupendur að kynna sér vel ástand fasteigna fyrir kauptilboðsgerð og leita til þar til bærra sérfræðinga um nánari skoðun.

Dýpri greining á Húsasjá
- Verðmat fasteignar
- Sölusaga og verðþróun
- Samanburður við sambærilegar eignir



























