Ásakór 13
01-0403 · 203 Kópavogi



574 dagar á sölu
94.900.000 kr
662.709 kr/m²
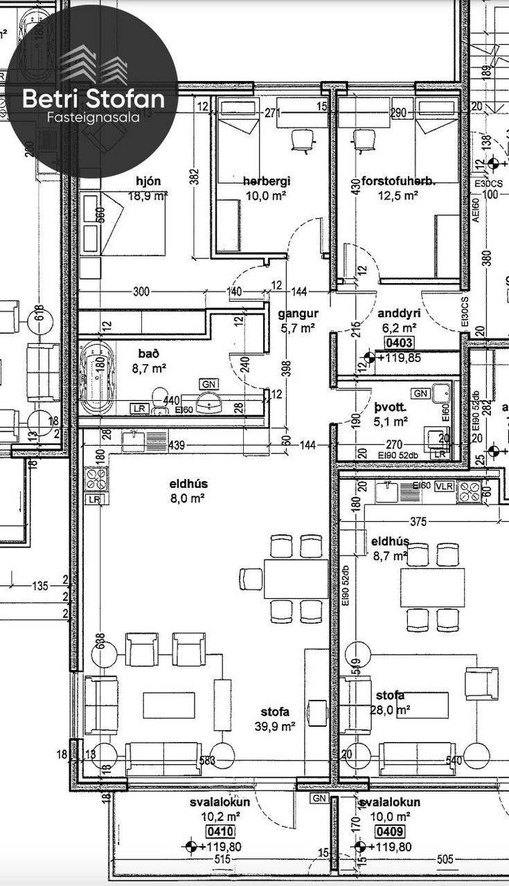
Betri Stofan og Jason Kristinn jason@betristofan.is í síma 775 1515 kynnir: Rúmgóð 143 fm, 4ra herbergja íbúð á fjórðu hæð (nr. 403) í lyftuhúsi við Ásakór 13. Eignin skiptist í þrjú svefnherbergi, baðherbergi, þvottahús, opna stofu og eldhús, sjónvarpshorn og svalir til suðurs. Þetta er rúmgóð eign með fallegu útsýni.
Nýlega hefur húsið verið endurbætt að utan.
Nánari lýsing :
Komið er inn í forstofu með góðum fataskáp.
Stofan er mjög rúmgóð og björt með parketi á gólfi, útgengt er út á stórar svalir með fallegu útsýni.
Eldhúsið sem er opið inn í stofurýmið er með góðri innréttingu.
Svefnherbergin þrjú eru öll rúmgóð með parketi á gólfi og fataskápum.
Baðherbergið er flísalagt, þar er góð innrétting og baðkar með sturtuaðstöðu.
Þvottahús er flísalagt innan íbúðar með innréttingu og skolvask.
Eigninni fylgir rúmgóð sérgeymsla í sameign sem og sameiginleg hjóla og vagnageymsla.
Skólar í göngufæri, grunn- og leikskólar.
Þetta er sérstaklega rúmgóð eign með fallegu útsýni.
Allar nánari upplýsingar: Jason Kristinn Ólafsson, sími 775 1515 jason@betristofan.is löggiltur fasteignasali
Gjöld sem kaupandi þarf að standa straum af ef að kaupum verður:
1. Stimpilgjald af fasteignamati fasteignar er 0.8%, en 0,4% fyrir fyrstu kaup og 1,6% fyrir lögaðila.
2. Þinglýsingargjald: kaupsamningi, skuldabréfi, veðleyfi, afsali o.s.frv. er kr. 3.800 af hverju skjali.
3. Lántökukostnaður samkvæmt verðskrá viðkomandi lánastofnunar.
4. Umsýslugjald til fasteignasölu skv. gjaldskrá.
Skoðunarskylda kaupanda:
Í lögum um fasteignakaup nr. 40/2002 er kveðið á um ríka skoðunarskyldu kaupenda á fasteignum. Betri Stofan fasteignasala bendir væntanlegum kaupendum á að kynna sér vel ástand fasteigna við skoðun og fyrir tilboðsgerð og ef þurfa þykir að leita til sérfræðinga um nánari ástandsskoðun.

Fáðu nýja innsýn á Húsasjá
- Verðmat fasteignar
- Sölusaga og verðþróun
- Samanburður sambærilegra eigna



























