Finnsbúð 13
01-0101 · 815 Þorlákshöfn



569 dagar á sölu
69.900.000 kr
463.528 kr/m²
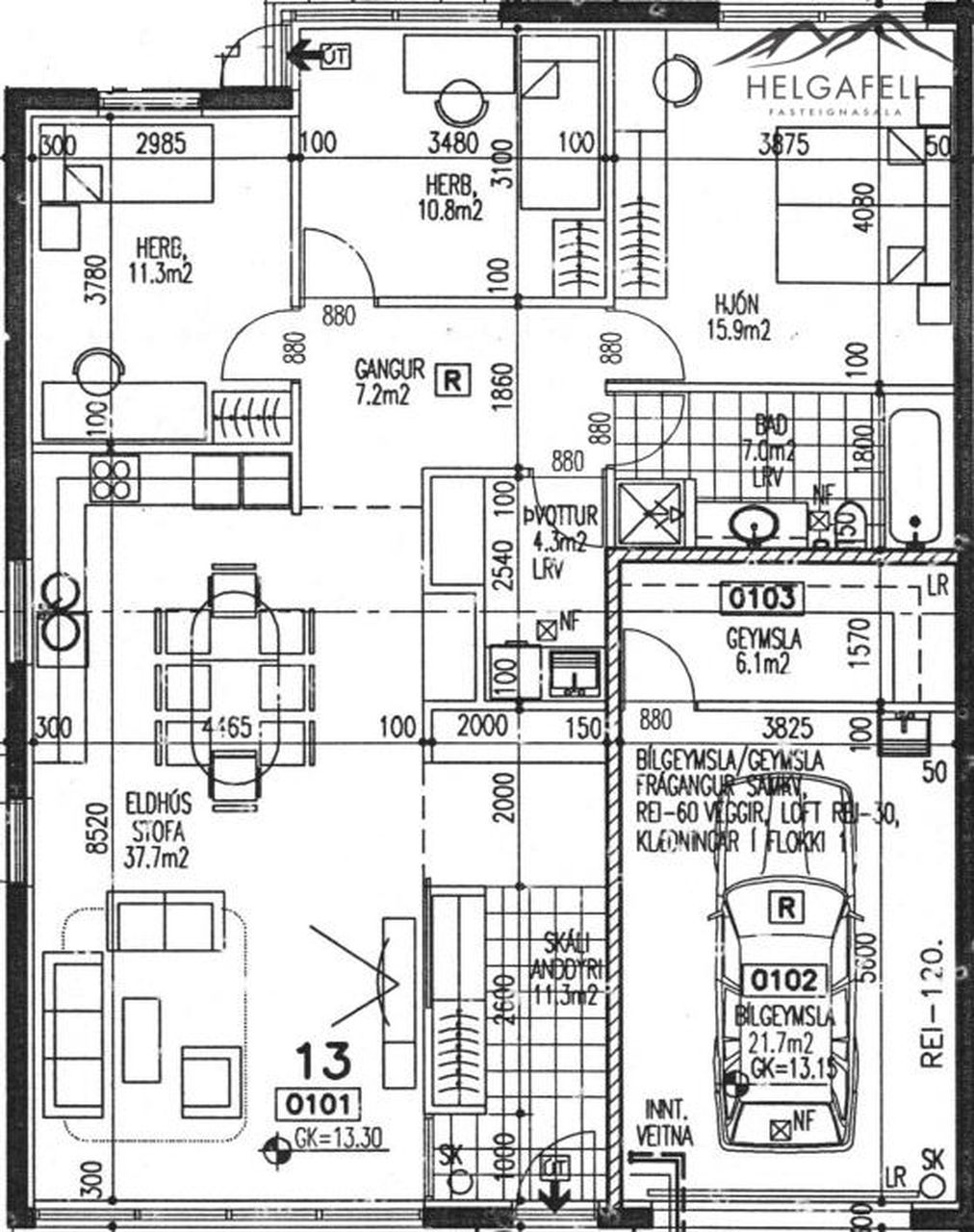
Hólmar Björn Sigþórsson löggiltur fasteignasali og Helgafell fasteignasala kynna í einkasölu mjög vel staðsett 4ra herbergja endaraðhús með innbyggðum bílskúr. Samkvæmt fasteignaskrá er eignin samtals 150.8 fm. þar af er íbúðarhluti 119.6 fm. og bílskúr og geymsla 31.2 fm. Húsið er einstaklega vel staðsett þar sem stutt er í skóla, leikskóla, íþróttamiðstöð/sundlaug og verslanir.
AFHENDING VIÐ KAUPSAMNING.
Eignin skiptist í anddyri, í alrými er eldhús / stofu og borðstofu, svefnherbergisgangur, þrjú svefnherbergi, baðherbergi, þvottahús, bílskúr og geymsla.
SMELLIÐ HÉR TIL AÐ FÁ SENT SÖLUYFIRLIT STRAX
Nánari lýsing:
Anddyri: Rúmgóð, flísar á gólfi.
Stofa / borðstofa: Í alrými, björt og rúmgóð, útgengi út á lóð, gólfsíðir gluggar, flísar á gófli.
Eldhús: Í alrými, er með góðri innrétting og eyja, eldavél, ísskápur / uppþvottavél / örbylgjuofn sem fylgja með, flísar á gólfi.
Svefnherbergisgangur: Flísar á gólfi.
Hjónaherbergi: Rúmgott, góðir skápar, parket á gólfi.
Svefnherbergi 2: Gott svefnherbergi, skápur, parket á gólfi.
Svefnherbergi 3: Gott svefnherbergi, skápur, parket á gólfi.
Baðherbergi: Með góðri hvítri innréttingu, sturta, upphengt salerni, flísar á gólfi, í sturtuklefa og við salerni.
Þvottahús: Hillur, flísar á gólfi.
Bílskúr og geymsla: Innbyggður samtals 24.2 fm. bílskúr og 7 fm. geymsla, vaskur, rafdrifin bílskúrshurðaopnari, yfir bílskúrnum er geymsluloft, ómálað gólf.
Húsið: Er steypt og byggt 2005. Húsið er steypt, kvarsaðar að utan, bárujárn er á þaki. Loft eru upptekin að hluta. Gólfhiti er í húsinu.
Lóð: Gróinn 480 fm. frágengin lóð. Framan við húsið er möl í innkeyrslu, lóð er þökulögð.
ATHUGIÐ AÐ SELJANDI HEFUR EKKI BÚIÐ Í HÚSINU OG ÞEKKIR Þ.A.L. EKKI ÁSTAND ÞESS TIL HLÍTAR. KAUPENDUR ER ÞVÍ HVATTIR TIL AÐ SKOÐA EIGNINA MEÐ ÞAÐ Í HUGA OG LEITA SÉR AÐSTOÐAR FAGMANNS.
Hér er um að ræða einstaklega vel staðsetta eign. Þar sem stutt er í leikskóla, grunnskóla, sundlaug og íþróttahús. Eign sem vert er að skoða.
Nánari upplýsingar og bókun á skoðun gefur Hólmar Björn Sigþórsson, löggiltur fasteignasali og félagsmaður í Félagi fasteignasala í s. 893 3276 eða í netfangið holmar@helgafellfasteignasala.is.
Þorlákshöfn:
Þorlákshöfn er frábær staður til að búa sér notalegt heimili og ala upp börn. Vinalegur og barnvænn bær í nálægð við aðra þéttbýliskjarna. Í dag er öll þjónusta við barnafólk og fjölskyldur í Þorlákshöfn til fyrirmyndar. Stuttar vegalengdir einfalda allar samgöngur og börnin geta gengið örugg í skóla og tómstundastarf. Skólarnir eru eitt af trompum bæjarins þar sem stutt er vel við bakið á þeim sem þess þurfa. Rúmgóður og vel búinn grunnskóli með persónulegum samskiptum á milli heimilis og skóla. Leikskólinn Bergheimar er fimm deilda leikskóli fyrir tveggja til sex ára börn. Öll íþróttaaðstaða í Þorlákshöfn er mjög góð og ákaflega vel nýtt af bæjarbúum. Margir nýir íbúar hafa nefnt að í stað þess að festa kaup á íbúð á höfuðborgarsvæðinu hafi verið hægt að fá íbúðarhús í Þorlákshöfn og búa fjölskyldunni stærra og rúmbetra heimili í barnvænu umhverfi. ----------------------------------------------------------
Heimasíða Helgafells fasteignasölu
Facebook síða Helgafells
- Hafðu samband og við gerum söluverðmat á eign þinni, þér að kostnaðarlausu -
Gjöld sem kaupandi þarf að standa straum af vegna kaupa á fasteign:
1. Stimpilgjald af kaupsamningi - 0,8% af fasteignamati fyrir einstaklinga (0,4% fyrir fyrstu kaupendur) og 1,6% fyrir lögaðila.
2. Þinglýsingargjald af kaupsamningi, veðskuldabréfi, mögulegu veðleyfi o.fl. - 2.700 kr. af hverju skjali.
3. Lántökugjald lánastofnunar - almennt í kringum 50þ., oft lægra eða ekkert lántökugjald fyrir fyrstu kaup. Nánari upplýsingar á heimasíðum lánastofnana.
4. Þjónustusamningur milli kaupanda og fasteignasölu - Kr. 92.380,- m/vsk.
Helgafell fasteignasala bendir kaupendum á ríka skoðunarskyldu sem kveðið er á í lögum um fasteignakaup nr.40/2002. Skorað er á kaupendur að kynna sér vandlega ástand fasteigna og nýta til þess aðstoð sérfræðinga. Sömuleiðis er bent á upplýsingaskyldu seljanda samanber 26.gr. Laga nr.40/2002 um fasteignakaup og 25.gr. laga nr.26/1994 um fjöleignarhús. Seljanda er bent á að kynna sér tilvitnaðar lagagreinar.

Dýpri greining á Húsasjá
- Verðmat fasteignar
- Sölusaga og verðþróun
- Samanburður við sambærilegar eignir































