Vaðlatún 6
01-0103 · 600 Akureyri



81 dagar á sölu
28.500.000 kr
232.463 kr/m²
Fasteignasalan Byggð 464-9955
Vaðlatún 6 - 103 - Búseturéttur
**Laus til afhendingar**
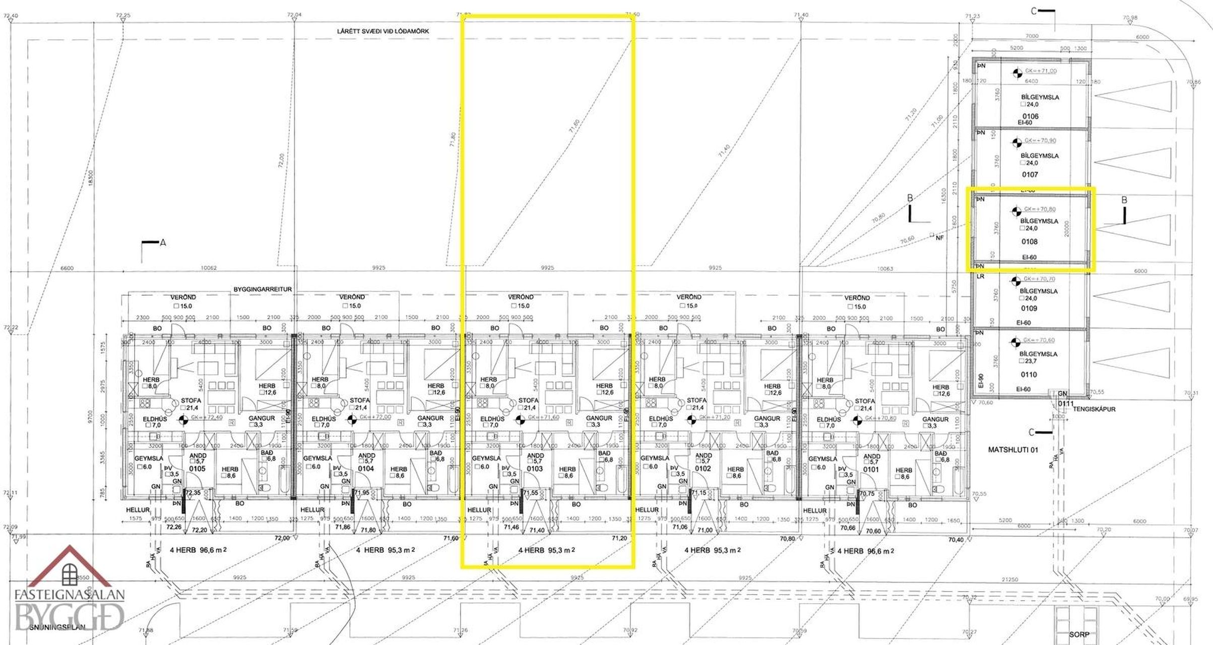
Til sölu er búseturéttur í Vaðlatúni 6 - 103, 3 herbergja raðhúsaíbúð á einni hæð með stakstæðum bílskúr. Eignin er samtals 122,6 fm. en þar af er bílskúr 27,3 fm.
Óskað er eftir 28,5 mkr. fyrir búseturéttinn og mánaðarlegt gjald er kr. 266.689 kr. miðað við 1. nóvember 2025. Innifalið í mánaðarlegu gjaldi er afborgun skuldbréfa, fasteignagjöld, tryggingar, rekstur húsfélags, viðhaldssjóður og þjónustugjald.
Frekari upplýsingar um Búmenn má finna hér.
Eignin skiptist í forstofu, stofu, eldhús, 2 svefnherbergi, baðherbergi, þvottahús og geymslu auk bílskúrs.
Forstofa er með flísar á gólfi og fataskáp.
Stofa og eldhús eru í opnu rými með parket á gólfi, úr stofu er úgengt út á verönd til vesturs. Eldhúsinnrétting er með stæði fyrir ísskáp og uppþvottavél og bakaraofn er í vinnuhæð. Á eyjum er helluborð og háfur fyrir ofan það.
Svefnherbergi eru tvö bæði með parket á gólfi og fataskápum.
Baðherbergi er með flísar á gólfi og á hluta veggja, baðkar með sturtutækjum, handklæðaofn, glugga með opnanlegu fagi og innréttingu í kringum vask.
Þvottahús er inn af forstofu og geymsla inn af þvottahúsi. Flísar eru á gólfi í báðum rýmum og hillur á veggjum í geymslu.
Bílskúr er stakstæður og er með málað gólf, rafmagnsdrifinni innkeyrsluhurð og þar er vaskur.
Annað:
-Parket er orðið lélegt
-Bílskúr ný málaður, veggir og gólf
-Nýlega búið að bera á timburverönd sem snýr til vesturs
-Veggir sparslaðir og tilbúnir undir málningu
Frekari upplýsingar:
bjorn@byggd.is
greta@byggd.is
berglind@byggd.is
olafur@byggd.is
Skipagötu 16 á 2. hæð.
S:464 9955

Dýpri greining á Húsasjá
- Verðmat fasteignar
- Sölusaga og verðþróun
- Samanburður við sambærilegar eignir





















