Pósthússtræti 3
03-0101 · 230 Reykjanesbæ



161 dagar á sölu
74.900.000 kr
737.205 kr/m²
LIND fasteignasala og Helga Pálsdóttir löggiltur fasteignasali kynnir Pósthússtræti 3, íbúð 101 ásamt stæði í bílageymslu. Um er að ræða fallega og vel skipulagða 3ja herbergja íbúð á 1. hæð í fjölbýlishúsi með rúmgóðum yfirbyggðum svölum með nokkuð góðu útsýni . Íbúðin er skráð samkvæmt þjóðskrá 101,6 m2 og þar af fylgir henni 8,2 m2 geymsla .Hiti er í gólfum. Húsið er byggt árið 2006 og er steinsteypt og klætt að utan. Sameign er snyrtileg og vel við haldið. Fjölbýlishúsið er mjög vel staðsett við sjóinn og í fallegu umhverfi. Lóðin er stór og vel frágengin, næg bílastæði.
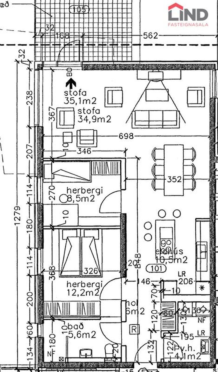
Íbúðin samanstendur af tveimur svefnherbergjum, alrými þar sem eru eldhús og stofa. Útgengt er út á svalir úr stofunni. Þvottahús innan íbúðar og baðherbergi. Sameiginlegur inngangur er í húsinu með lyftu. Geymsla er á jarðhæð og þar er einnig gengið inn í bílageymsluna.
Nánari lýsing
Forstofu gangur er rúmgóður með góðum skáp og flísalögðu gólfi.
Eldhús er parketlagt með fallegri viðarinnréttingu ásamt eldhúseyju með helluborði og viftuháf yfir. Flísar á milli skápa. Gott skápapláss og stæði er fyrir tvöfaldan ískáp. Ofn í vinnuhæð. Gert er ráð fyrir uppþvottavél í innréttingu.
Stofan er björt og rúmgóð með parketi á gólfi og útgengi út á yfirbyggðar svalir.
Svefnherbergi 1 er parketlagt með fatakskáp á heilum vegg.
Svefnherbergi 2 er parketlagt með fataskáp.
Baðherbergi er flísalagt með góðri innréttingu og walk-in sturtu, handklæðaofn og opnanlegur gluggi.
Þvottahús er flísalagt og hefur að geyma rúmgóða innréttingu með skolvaski, gert er ráð fyrir þvottavél og þurrkara í innréttingu.
Svalir eru með tréflísum á gólfi og eru yfirbyggðar.
Sérgeymsla er með hillum .
Bílastæði með rafhleðslustöð.
Sameiginlegt þrifarými fyrir bíla sem er vel við haldið og er snyrtilegt. Stutt er í allar helstu verslanir og þjónustu. Allar upplýsingar um eignina veitir Helga Pálsdóttir fasteignasali í síma 822 2123 eða helga@fastlind.is

Fáðu nýja innsýn á Húsasjá
- Verðmat fasteignar
- Sölusaga og verðþróun
- Samanburður sambærilegra eigna

































