Lækjargata 26
01-0204 · 220 Hafnarfirði



3 dagar á sölu
66.900.000 kr
896.783 kr/m²
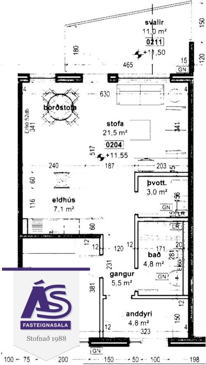
74,6 fm talsvert uppgerð 2ja herbergja íbúð á 2. hæð í vel staðsettu lyftufjölbýli við Lækjargötu 26, 220 Hafnarfirði.
Eignin skiptist í 67,0 fm íbúð og 7,6 fm geymslu á jarðhæð, samtals 74,6 fm skv. HMS.
Nánari lýsing: Anddyri með skápum. Eldhús, stofa og borðstofa í rúmgóðu alrými með útg. á lokaðar svalir með hitara og góðu útsýni yfir miðbæinn. Eldhús með góðu skápaplássi, stæði fyrir uppþvottavél, ofni og helluborði. Baðherbergi með walk-in sturtu og dökku sturtugleri, vegghengdu salerni, innréttingu og spegli með baklýsingu. Þvottahús með gólfhita og stæði fyrir þvottavél og þurrkara í vinnuhæð. Hjónaherbergi með góðu skápaplássi.
Sérgeymsla og sameiginleg hjóla- og vagnageymsla á jarðhæð.
Skv. seljanda hafa eftirfarandi framkvæmdir átt sér stað innan íbúðar:
2023:
- Baðherbergi tekið í gegn
- Nýtt parket
- Hurðar, hurðakarmar og frontar í eldhúsinnréttingu sprautaðir hjá sprautun.is
- Skipt um borðplötu á eldhúsinnréttingu
2024:
- Pallatimbur sett á svalagólf.
Um er að ræða virkilega fallega og vel staðsetta eign nálægt miðbæ Hafnarfjarðar þar sem stutt er í alla helstu þjónustu og fallegar gönguleiðir.
Allar nánari upplýsingar veitir Arnór Daði Eiríksson, löggiltur fasteignasali s. 777-0939 / arnor@as.is
Ás fasteignasala er rótgróið fyrirtæki sem hefur veitt alla almenna þjónustu í fasteignaviðskiptum frá árinu 1988.
www.facebook.com/asfasteignasala
www.instagram.com/as_fasteignasala
www.as.is

Fáðu nýja innsýn á Húsasjá
- Verðmat fasteignar
- Sölusaga og verðþróun
- Samanburður sambærilegra eigna































