Geitagerði 2
01-0101 · 551 Sauðárkróki



113 dagar á sölu
16.900.000 kr
342.105 kr/m²
Íbúð á neðri hæð í fjölbýlishúsinu við Geitagerði 2, Hólum í Hjaltadal, Skagafirði ásamt tilheyrandi hlutdeild í sameign og lóðarréttindum.
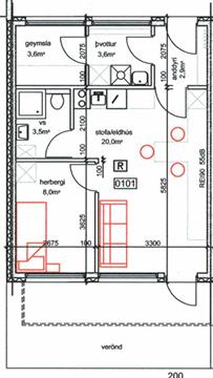
Vel skipulögð tveggja herbergja íbúð (merkt 101) með sérinngangi í fjölbýlishúsi, steyptu árið 2003. Íbúðin er 49,4 fm.
Í fjölbýlishúsinu eru alls 8 íbúðir.
Leigulóð hússins alls er 1222 fm.
Gott útsýni er frá íbúðinni.
Íbúðin skiptist í eitt svefnherbergi, eldhús og stofu í sama rými, baðherbergi, forstofu, þvottahús og geymslu.
Forstofa er með dúk á gólfi og fatahengi.
Við forstofu er þvottahús með dúk á gólfi og vaskaborði. Inn af því er geymsla með hillum á veggjum.
Svefnherbergi er dúklagt og með fataskáp.
Baðherbergi er dúklagt, upphengt salerni og sturta.
Eldhús og stofa í sama rými, dúkur á gólfi. Upprunaleg eldhúsinnréttingu með bakaraofni, helluborði, viftu og tengi fyrir ísskáp. Úr stofu er útgengi á vestursvalir.
Fasteignin afhendist í núverandi ástandi. Eigandi mælir sérstaklega með því að eignin sé skoðuð með fagmönnum.
Bílastæði er norðan við húsið.
Sérinngangur til íbúðarinnar er á austurhlið hússins.
Eignaskiptayfirlýsing var gefin út um eignina þann 30.7.2004. Hlutfallstala íbúðarinnar í húsi og lóð er 12,09%. Hlutfallstala íbúðarinnar í sameiginlegum upphitunarkostnaði er 12,63%.
Hólaskóli hefur forkaupsrétt að mannvirkjum á lóðinni við sölu þeirra, skv. lóðarleigusamningi dags. 5. apríl 2004.
Kvöð er á eigninni um fasteignin í heild er háð ákvæðum VIII kafla laga nr. 44/1998 um húsnæðismál sbr. yfirlýsingu dags. 21. september 2004.
Ekki er virkt húsfélag í húsinu.
Í lögum um fasteignakaup er lögð áhersla á skoðunarskyldu kaupanda. Væntanlegir kaupendur eru hvattir til að kynna sér ástand eignarinnar vandlega og afla sér aðstoðar sérfræðinga við frekari skoðun sé þess þörf að þeirra mati. Sú áhætta fylgir kaupum á fasteignum að ekki er hægt að átta sig á ástandi á þeim hlutum eignarinnar sem ekki sjást við venjulega skoðun svo sem fráveitu-, vatns- og miðstöðvarlögnum svo og þaki eftir atvikum.

Dýpri greining á Húsasjá
- Verðmat fasteignar
- Sölusaga og verðþróun
- Samanburður sambærilegra eigna










