Fífumói 13
01-0102 · 800 Selfossi



589 dagar á sölu
62.500.000 kr
659.283 kr/m²
Laus strax.
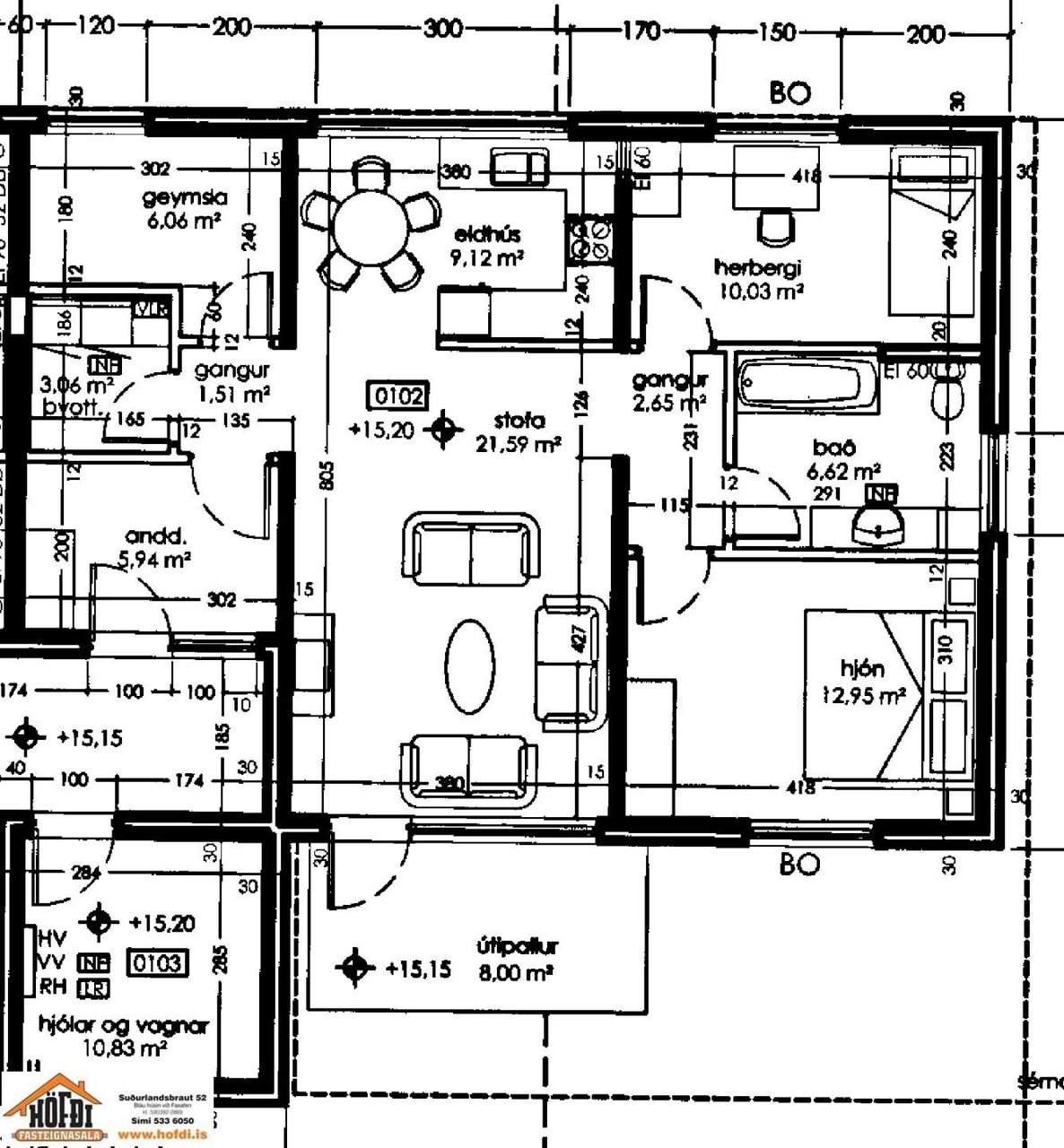
Góð 3ja - 4ra herbergja íbúð á jarðhæð með sérinngangi við Fífumóa 13-15 á Selfossi. Sér inngangur og stór verönd með skjólveggum. Sér þvottahús. Gott aðgengi, gengið er beint inn. Vel hægt að nýta sem 4 ra herbergja. Samkvæmt skráningu Þjóðskrár íslands er íbúðin 94,8 fm. Eignin er í útleigu og er hægt að yfirtaka leigusamninng. Nettó er í göngufæri sem og öll helsta þjónasta.
Forstofa : Flísar á gólfi og fataskápur
Þvottaherbergi : Flísar á gólfi og innrétting.
Geymsla : Parket á gólfi, gluggi, hægt að nýta sem herbergi ef vill.
Eldhús : Opið í stofu, parket á gólfi, góð innrétting og tæki.
Stofa : Parket á gólfi og útgangur út á stóran afgirtan sólpall.
Herbergi : Parket á gólfi og skápur.
Baðherbergi : Flísar á gólfi og veggjum, nýr rúmgóður sturtuklefi, upphengt klósett og innrétting.
Hjónaherbergi : parket á gólfi og skápar.
Annað : fyrir framan inngang er sameiginleg geymsla.
Upplýsingar veitir : Ásmundur Skeggjason fasteignasali, as@hofdi.is, Gsm 895 3000.

Dýpri greining á Húsasjá
- Verðmat fasteignar
- Sölusaga og verðþróun
- Samanburður við sambærilegar eignir




















